Здравейте, съфорумци! Пускам тази тема с цел да избера най – оптималното енергийно решение за къщата, която съм построил. Предстои да избера отоплението и начина за загряване на битова вода. За отоплението съм се спрял на водно подово с термопомпа въздух – вода (още не знам дали направена от климатик или от ebay, както е направил колегата kuuuuul). В момента имам ето този климатик от който съм много много доволен и се чудя дали ще свърши работа за термопомпа:
Mitsubishi MSZ-J22GR
Марка: Mitsubishi Electric
Година: от 2004 до 2006
Работно напрежение: 100 V
Страна произход: Japan
Хладилен агент: R410A
Работен диапазон:
Охлаждане (-10°С ~ 48°С), Отопление (-20°С ~ 24°С)
Параметри на климатизатора при 35°C външна температура (27°C в помещението)
Охлаждаща мощност:
2.2 kW (0.7 ~ 2.6), 7509 BTU (2389 ~ 8874)
Консумирана електроенергия: 420 W (155 ~ 690)
EER: 5.24 (коефициент на преобразуване – енергийна ефективност)
Energy efficiency class: A
Параметри на климатизатора при 7°С външна температура (20°C в помещението)
Отоплителна мощност: 2.5 kW (0.7 ~ 4.0), 8533 BTU (2389 ~ 13652)
Консумирана електроенергия: 470 W (125 ~ 975)
COP: 5.32 (коефициент на преобразуване – енергийна ефективност)
Energy efficiency class: A
Параметри на климатизатора при 2°С външна температура (20°C в помещението)
Отоплителна мощност: 2.9 kW, 9898 BTU
Консумирана електроенергия: 860 W
COP: 5.28 (средна стойност)
Параметри на климатизатора при -12°С външна температура (20° в помещението):
Отоплителна мощност: 2.3 kW, 7850 BTU
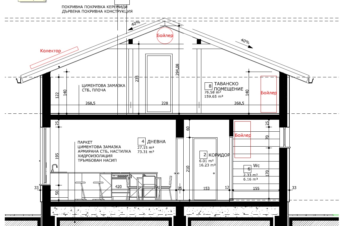
Ще пусна и тръби стаби от колекторната кутия до под прозорците евентуално ако реша да слагам конвектори или радиатори за в бъдеще. Къщата е с двускатен покрив, едноетажна с тавански етаж, който на първо време ще се използва за склад. До него ще се стига посредством падаща таванска стълба, разположена в коридора. Смятам колектора да е в малката тоалетна. За изолация съм предвидил 10 - 12см. каменна вата или стиропор, фибран 5-6см под замазката на подовото, 5-6см фибран над горната плоча, 5см. вата и гипсокартон от долната страна на горната плоча и минерална вата между ребрата на покрива, като ще я задържа с някакви тънки летви например. Таванското няма да е отопляемо, но и не искам да е съвсем студен таван. Дограмата е 5 камерна 72мм профил, троен стъкло пакет (4с/б/к). На първо време, няма да има охлаждане или най – много един конвектор във всекидневната. Идва въпроса и за топлата вода… Ще започна с малко изходни данни: В момента сме двамата с жената и бебе на 2 год. Живеем в апартамент, имаме 80литров бойлер на ток, който работи на нощна тарифа от 4 до 6 сутрин с програматор и за един час следобед и съм сметнал, че към настоящия момент средно ни отиват по 30 - 35 лв на месец енергия за топла вода. Къпем се и тримата всеки ден и нямаме миялна машина. Вярно е, че сме доста пъргави в банята и аз и жената. Аз съм за 10 мин, а тя за 15. Тенденцията предполагам ще е потреблението да се увеличава. Искам да се възползвам от слънчевата енергия и да имам топла вода в къщата. Това искам да стане по рационален начин. Не искам инвестицията ми да се избие след повече от 10 години. Единия скат на къщата е ориентиран на юг. Тъй като термопомпата за подово е доооста нискотемпературна и не мисля, че ще може да вземе участие за топлата вода зимно време. Имам две възможни места за монтаж на бойлер. Обозначил съм ги на картинката в червено. Едното е вертикален бойлер в банята, а другия вариант е стоящ бойлер в таванското над банята. Не знам колко литра ще е добре да сложа. От доста от изчетеното от форума и по – конкретно от мненията на Лазар разбрах, че е добре да е по – голям… около 200л. да речем (таванското позволява и повече). Какви съвети бихте ми дали относно системата. Затворена, отворена, дрейн бек… В началото ми се въртеше в главата термосифонна система като бойлера да е залепен за долната страна на билото, а колектора да е на долната част на ската, но като че ли се разкандардисах. Иска ми се и тази топла вода лятото някак да мога да се възползвам от нея чрез пералнята и миялната машина, но за това предлагам да говорим по – нататък. Идеята ми е да се направи сравнително евтина като инвестиция инсталация, която ще задоволява нуждите на семейството ми. Идеята за отделна термопомпа само за топла вода през зимата не ми допада особено заради възвращаемостта на инвестицията. Ако е необходимо зимата бойлера ще се дозагрява на ток с програматор и контактор, монтирани в таблото. Къщата е 90 кв.м застроена площ и 72кв.м отопляема. Височината на помещенията ще е 2,60м. Горе евентуално може и да станат още две спални по 13 кв, но на първо време не са в уравнението. Като цяло сме по – студено любиви. Температурите, които ни харесват са 21/22 за всекидневна и 18 за спални. И не на последно място искам покрива да запази някаква прилична визия (без огромни ръждиви конструкции).
Mitsubishi MSZ-J22GR
Марка: Mitsubishi Electric
Година: от 2004 до 2006
Работно напрежение: 100 V
Страна произход: Japan
Хладилен агент: R410A
Работен диапазон:
Охлаждане (-10°С ~ 48°С), Отопление (-20°С ~ 24°С)
Параметри на климатизатора при 35°C външна температура (27°C в помещението)
Охлаждаща мощност:
2.2 kW (0.7 ~ 2.6), 7509 BTU (2389 ~ 8874)
Консумирана електроенергия: 420 W (155 ~ 690)
EER: 5.24 (коефициент на преобразуване – енергийна ефективност)
Energy efficiency class: A
Параметри на климатизатора при 7°С външна температура (20°C в помещението)
Отоплителна мощност: 2.5 kW (0.7 ~ 4.0), 8533 BTU (2389 ~ 13652)
Консумирана електроенергия: 470 W (125 ~ 975)
COP: 5.32 (коефициент на преобразуване – енергийна ефективност)
Energy efficiency class: A
Параметри на климатизатора при 2°С външна температура (20°C в помещението)
Отоплителна мощност: 2.9 kW, 9898 BTU
Консумирана електроенергия: 860 W
COP: 5.28 (средна стойност)
Параметри на климатизатора при -12°С външна температура (20° в помещението):
Отоплителна мощност: 2.3 kW, 7850 BTU
Ще пусна и тръби стаби от колекторната кутия до под прозорците евентуално ако реша да слагам конвектори или радиатори за в бъдеще. Къщата е с двускатен покрив, едноетажна с тавански етаж, който на първо време ще се използва за склад. До него ще се стига посредством падаща таванска стълба, разположена в коридора. Смятам колектора да е в малката тоалетна. За изолация съм предвидил 10 - 12см. каменна вата или стиропор, фибран 5-6см под замазката на подовото, 5-6см фибран над горната плоча, 5см. вата и гипсокартон от долната страна на горната плоча и минерална вата между ребрата на покрива, като ще я задържа с някакви тънки летви например. Таванското няма да е отопляемо, но и не искам да е съвсем студен таван. Дограмата е 5 камерна 72мм профил, троен стъкло пакет (4с/б/к). На първо време, няма да има охлаждане или най – много един конвектор във всекидневната. Идва въпроса и за топлата вода… Ще започна с малко изходни данни: В момента сме двамата с жената и бебе на 2 год. Живеем в апартамент, имаме 80литров бойлер на ток, който работи на нощна тарифа от 4 до 6 сутрин с програматор и за един час следобед и съм сметнал, че към настоящия момент средно ни отиват по 30 - 35 лв на месец енергия за топла вода. Къпем се и тримата всеки ден и нямаме миялна машина. Вярно е, че сме доста пъргави в банята и аз и жената. Аз съм за 10 мин, а тя за 15. Тенденцията предполагам ще е потреблението да се увеличава. Искам да се възползвам от слънчевата енергия и да имам топла вода в къщата. Това искам да стане по рационален начин. Не искам инвестицията ми да се избие след повече от 10 години. Единия скат на къщата е ориентиран на юг. Тъй като термопомпата за подово е доооста нискотемпературна и не мисля, че ще може да вземе участие за топлата вода зимно време. Имам две възможни места за монтаж на бойлер. Обозначил съм ги на картинката в червено. Едното е вертикален бойлер в банята, а другия вариант е стоящ бойлер в таванското над банята. Не знам колко литра ще е добре да сложа. От доста от изчетеното от форума и по – конкретно от мненията на Лазар разбрах, че е добре да е по – голям… около 200л. да речем (таванското позволява и повече). Какви съвети бихте ми дали относно системата. Затворена, отворена, дрейн бек… В началото ми се въртеше в главата термосифонна система като бойлера да е залепен за долната страна на билото, а колектора да е на долната част на ската, но като че ли се разкандардисах. Иска ми се и тази топла вода лятото някак да мога да се възползвам от нея чрез пералнята и миялната машина, но за това предлагам да говорим по – нататък. Идеята ми е да се направи сравнително евтина като инвестиция инсталация, която ще задоволява нуждите на семейството ми. Идеята за отделна термопомпа само за топла вода през зимата не ми допада особено заради възвращаемостта на инвестицията. Ако е необходимо зимата бойлера ще се дозагрява на ток с програматор и контактор, монтирани в таблото. Къщата е 90 кв.м застроена площ и 72кв.м отопляема. Височината на помещенията ще е 2,60м. Горе евентуално може и да станат още две спални по 13 кв, но на първо време не са в уравнението. Като цяло сме по – студено любиви. Температурите, които ни харесват са 21/22 за всекидневна и 18 за спални. И не на последно място искам покрива да запази някаква прилична визия (без огромни ръждиви конструкции).