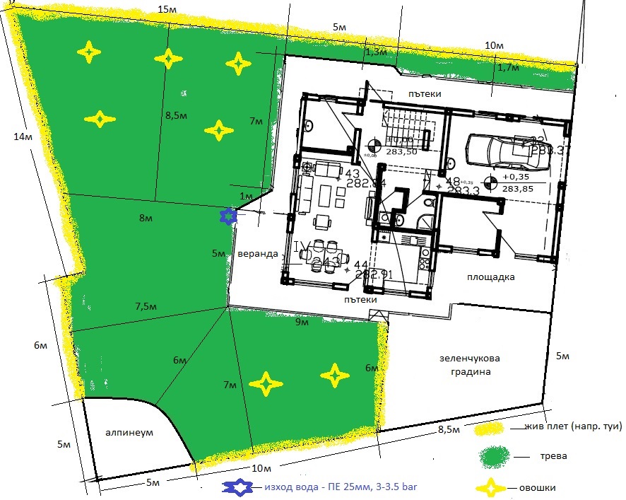
Какво ми се иска да се получи: Жив плет около 50- 66м дълъг. Вероятно от туя. Тук-там из тревата (220-240кв.м) плодни дръвчета и цветни туфи. Зеленчуковата градина ще е символична с 3-4 реда по 5-6м и 1-2 малки лехи.
Мисля да ползвам 4-зонов програматор – 1 зона за капковото(за живия плет), 2 за зеленчука и 1 за тревата.
Капково напояване за живия плет и зеленчуците и изскачащи разпръсквачи за тревата. Остава чуденето ще стига ли водата за едновременно поливане на всичката трева ( около 220-240кв.м.) или трябва и там деление на зони?
С какво разполагам: Показал съм го на картинката, но да напомня - налягането е 3-3.5 бара, „магистралната” тръба е ПЕ 25мм. Малко, но от сърце
. Тръбата за напоителната система излиза под верандата и смятам там да е колектора с програматора (отбелязано с еврейска звезда на картинката). Дотук е сигурно, че ще пусна плътно до пътеките 2 тръби 25мм към двете зони на зеленчука. Струва ми се умно и останалите магистрални тръби да вървят плътно до пътеките.
Какво не ми е ясно:
На този етап още не знам, че нищо не знам, но все пак се чудя:
-Посочил съм размери на схемата, може ли някой да се ангажира с определяне на нужните разпръсквачи ( имам вътрешно усещане, че ще са MP rotator и strip, но не знам защо ) ?
-Как се определя дълбочината на вкопаване на разпръсквача? Двора е фрезован от около 2 месеца и почвата е една пухкава и не мога да определя колко ще се слегне. Досега минаха 2 поройни дъждове и се послегна, но дали ще продължи още, не знам.
-Какво се прави зимата с тези спирателни ел.клапани, разпръсквачи и тръби – все пак са на плитко и ще замръзнат?
-При пускане на всички дюзи, дали ще има достатъчен дебит и налягане? Да не падне налягането на 1бар и да "пикаят" дюзите? Явно трябва някак да измеря тези параметри.
-Твърдата вода дали ще прецака нещо?
Благодаря предварително на всички включили се.
P.S. Според таблицата с данните за MP Rotator, разположих разни разпръсквачи, гледах да се припокриват и ориентировъчно, за 2.5 бара налягане ми излиза 18л/мин или 1,1куб.м./ч. Означава ли това, че ако успея да напълня 20л вода за 1 минута и налягането ми не пада под 2.5 бара, ще мога да захраня едновременно цялата тревна площ (пренебрегвам загубите на налягане в поливната система)?
Капково напояване за живия плет и зеленчуците и изскачащи разпръсквачи за тревата. Остава чуденето ще стига ли водата за едновременно поливане на всичката трева ( около 220-240кв.м.) или трябва и там деление на зони?
С какво разполагам: Показал съм го на картинката, но да напомня - налягането е 3-3.5 бара, „магистралната” тръба е ПЕ 25мм. Малко, но от сърце

Какво не ми е ясно:
На този етап още не знам, че нищо не знам, но все пак се чудя:
-Посочил съм размери на схемата, може ли някой да се ангажира с определяне на нужните разпръсквачи ( имам вътрешно усещане, че ще са MP rotator и strip, но не знам защо ) ?
-Как се определя дълбочината на вкопаване на разпръсквача? Двора е фрезован от около 2 месеца и почвата е една пухкава и не мога да определя колко ще се слегне. Досега минаха 2 поройни дъждове и се послегна, но дали ще продължи още, не знам.
-Какво се прави зимата с тези спирателни ел.клапани, разпръсквачи и тръби – все пак са на плитко и ще замръзнат?
-При пускане на всички дюзи, дали ще има достатъчен дебит и налягане? Да не падне налягането на 1бар и да "пикаят" дюзите? Явно трябва някак да измеря тези параметри.
-Твърдата вода дали ще прецака нещо?
Благодаря предварително на всички включили се.
P.S. Според таблицата с данните за MP Rotator, разположих разни разпръсквачи, гледах да се припокриват и ориентировъчно, за 2.5 бара налягане ми излиза 18л/мин или 1,1куб.м./ч. Означава ли това, че ако успея да напълня 20л вода за 1 минута и налягането ми не пада под 2.5 бара, ще мога да захраня едновременно цялата тревна площ (пренебрегвам загубите на налягане в поливната система)?