Здравейте,
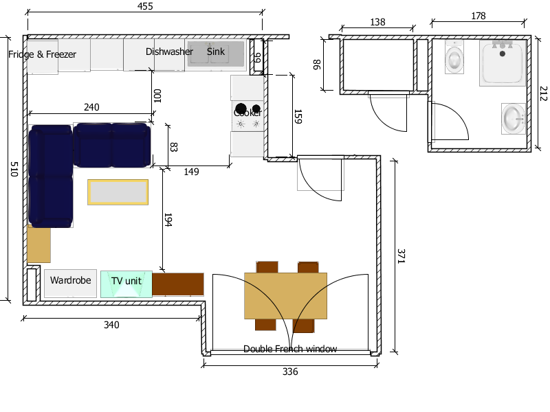
опитвам се да проектирам разпределението в новото ми жилище. Нахвърлих нещо на Sweet Home 3d, вероятно има неточности и неясноти, но няма проблем да пояснявам и да преправям. По-долу прикачам един вариант. Чуденките ми са доста, но така или иначе не бързам с реализацията. Идеи и критики са добре дошли

proekt 1.png (58.23 KиБ) Видяна 3690 пъти
опитвам се да проектирам разпределението в новото ми жилище. Нахвърлих нещо на Sweet Home 3d, вероятно има неточности и неясноти, но няма проблем да пояснявам и да преправям. По-долу прикачам един вариант. Чуденките ми са доста, но така или иначе не бързам с реализацията. Идеи и критики са добре дошли
Прикачен файл:
proekt 1.png (58.23 KиБ) Видяна 3690 пъти


