Здравейте майстори,
Правя си една баня 3х1,5м.С един сифон е близо до ъгъла и по ред причини няма възможност да се сложи втори.
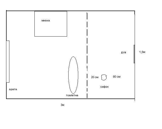
баня.JPG (16.94 KиБ) Видяна 3405 пътиСложил съм една схема дано да се вижда.На мястото на пунктираната линия искам да сложа стъклена преграда по възможност да не е с праг,защото си мисля какво би станало ако някой ден протече бойлер или друго в частта без сифон.Проблема е ,че сега като се пуска душа водата отива примерно на 10см.отвъд линията на която ще бъде преградата/нея също няма възможност да я местя/,а пък е добре там да бъде съвсем сухо.Чудя се ако увелича малко наклона в мократа част за сметка на този в сухата дали ще се реши този проблем.Да уточня-не съм майстор ,но досега си направих две бани и станаха добре тук обаче ме е страх да не направя грешка.
Правя си една баня 3х1,5м.С един сифон е близо до ъгъла и по ред причини няма възможност да се сложи втори.
Прикачен файл:
баня.JPG (16.94 KиБ) Видяна 3405 пъти