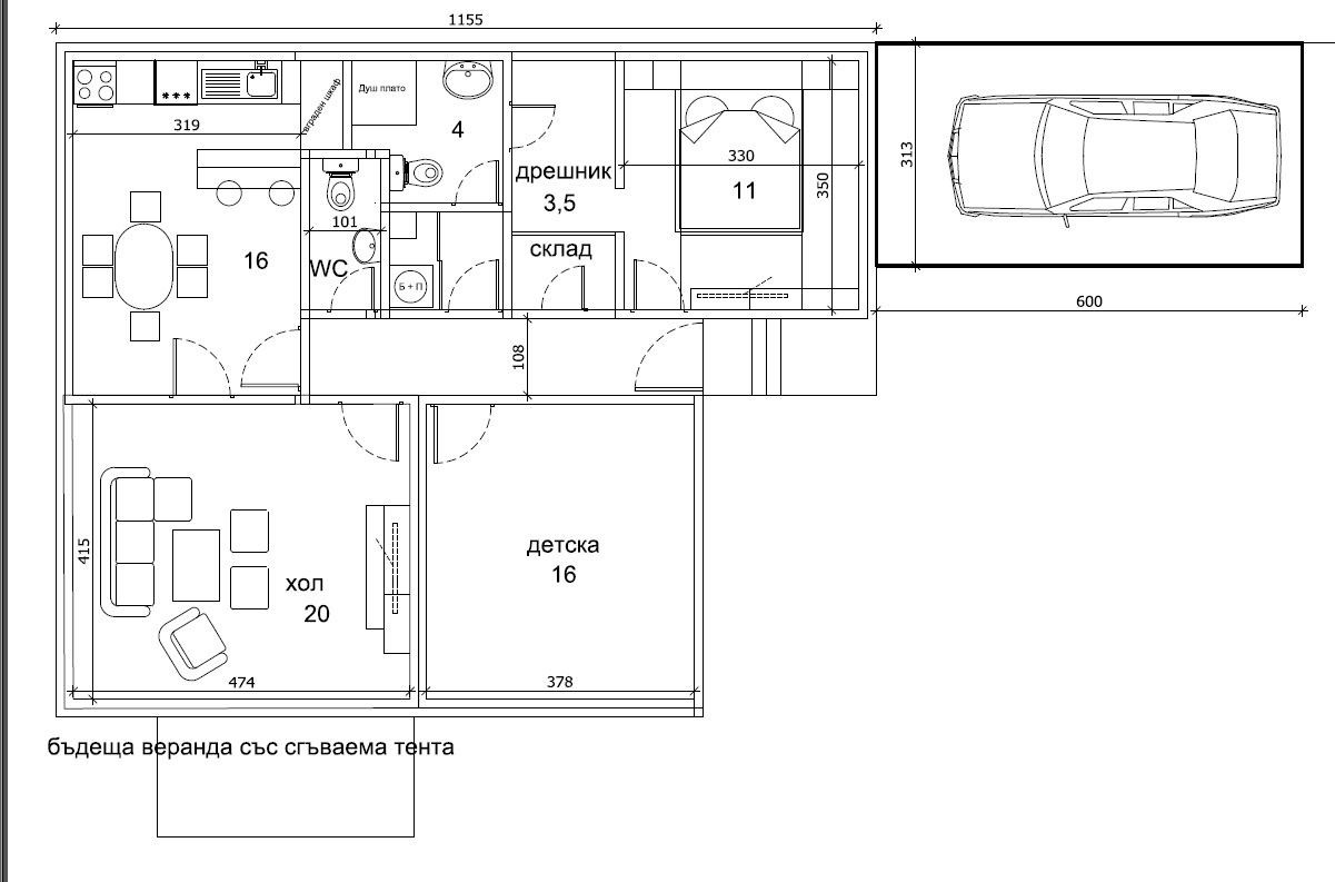
boqnkov написа:Знам, решението с банята с двете врати е доста "абстракно", но чух, че има механизми, които при влизане от едната врата, заключват другата.На дали ще има нужда чак от такава сигурност - аз лично като имам гости не ходя да е@@м в спалнята през това време, та да ме заварят през банята
Пусни няколко размера - струва ми се че на всякъде си "преиначил" нещата и размерите са под необходимия минимум (извън това което ти писаха над мен, че стаите са ти малки по принцип).
В антрето ти няма място за дрехи и обувки.
Канализацията върви нагоре в отдушник - не си я драснал(изобщо баните и те са на магия
Не се разбира какви са стените(тънички изглеждат) и няма помен от конструкция.
Кухнята ти е малка по принцип и за тоя бар просто забрави или увеличи стаята. Не виждам и смисъла на врата между кухнята и дневната - уж ги "отделяш яростно" а после слагаш една хубава врата за да прекарваш влагата и миризмите в хола.
За да ти стане къщата нормално за това което искаш (а то никак не е лошо) си трябват поне 110-120 квадрата - не я осакатявай заради спестени 15-20 кв.м.

