Здравейте. Събрах смелост вече и аз да пусна тема  
 . Става въпрос за строеж на едноетажна еднофамилна къща.
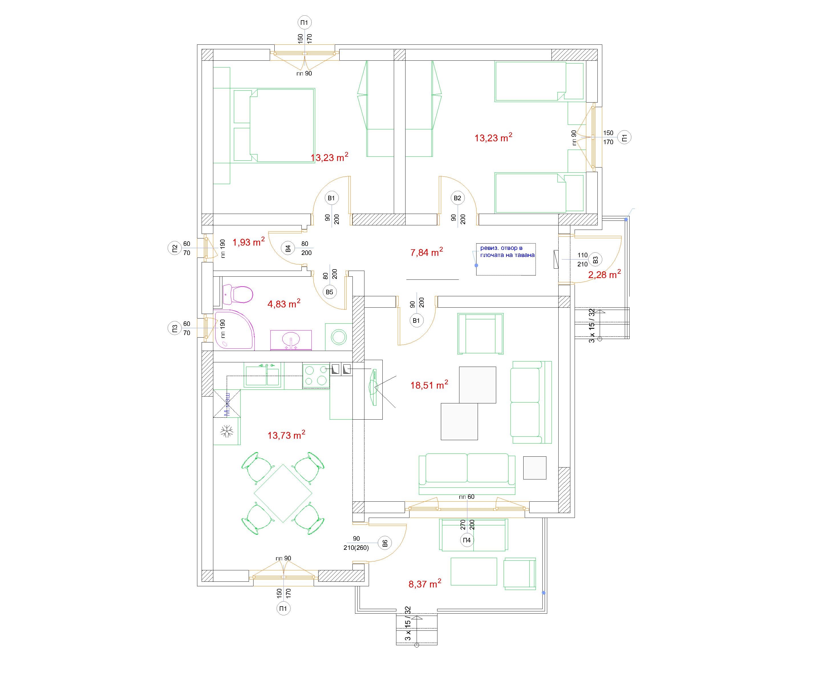
Таванското е вдигнато така, че горе е доста просторно.
Парцела е 500кв.м. Проектите са направени. Имаме разрешение за строеж.
Избрали сме и бригада, която да стори къщата. Общо взето това е етапа, който сме достигнали.
Тези дни ще се набиват колчета и ще се почва
 .
Прочетох темите подобни на моята и виждам че има доста хора с адекватни и добри идеи, които съм сигурен че ще ми помогнат.
Ще съм благодарен за всяко мнение и критика. Също така ще съм щастлив ако успея и аз да помогна на някой.
Като начало първото питане
 :
Плочите по проект са ми дадени по 10см дебелина. Армировката е мрежа с отвори 15см.
Там от където поръчах арматурата обаче нямат такава. Мрежата им е на 20см. Мислите ли че ще има някакъв проблем?
								
																	
									
															
																															
																								
															Таванското е вдигнато така, че горе е доста просторно.
Парцела е 500кв.м. Проектите са направени. Имаме разрешение за строеж.
Избрали сме и бригада, която да стори къщата. Общо взето това е етапа, който сме достигнали.
Тези дни ще се набиват колчета и ще се почва
Прочетох темите подобни на моята и виждам че има доста хора с адекватни и добри идеи, които съм сигурен че ще ми помогнат.
Ще съм благодарен за всяко мнение и критика. Също така ще съм щастлив ако успея и аз да помогна на някой.
Като начало първото питане
Плочите по проект са ми дадени по 10см дебелина. Армировката е мрежа с отвори 15см.
Там от където поръчах арматурата обаче нямат такава. Мрежата им е на 20см. Мислите ли че ще има някакъв проблем?



