Предимства, недостатъци, цени, материали, планове, пасивни къщи и т.н.
Ivastefymar - помощник
Здравейте,

Най-после се осмелих и аз да споделя темата си във форума след като изчетох доста впечатляващи и вдъхновяващи други такива.

Накратко - ние сме млади ентусиасти, които преди по-малко от година си купиха къща в околностите на София. Строена е 80-те години, но е много запазена. В момета е около 150 кв.м. (сутерен + 2 етажа) Решихме, че искаме да се впуснем в приключението разширяване на въпросната къща. (разширяване на хола + усвояване на 2 бани + още една спалня) Харесваме помещенията, които съществуват в момента, затова не искахме да я бутаме и да строим наново. Стори ни се по-добра идея да я разширим, така че да стане идеалната за нас.

Новата конструкция ще бъде метална, а не стоманобетонна поради няколко причини.
1. Смятаме, че ще бъде по-бюджетно, но НЕ за сметка на качеството.
2. По-лека е и по-подходяща за дострояванията, които ние смятаме да правим.

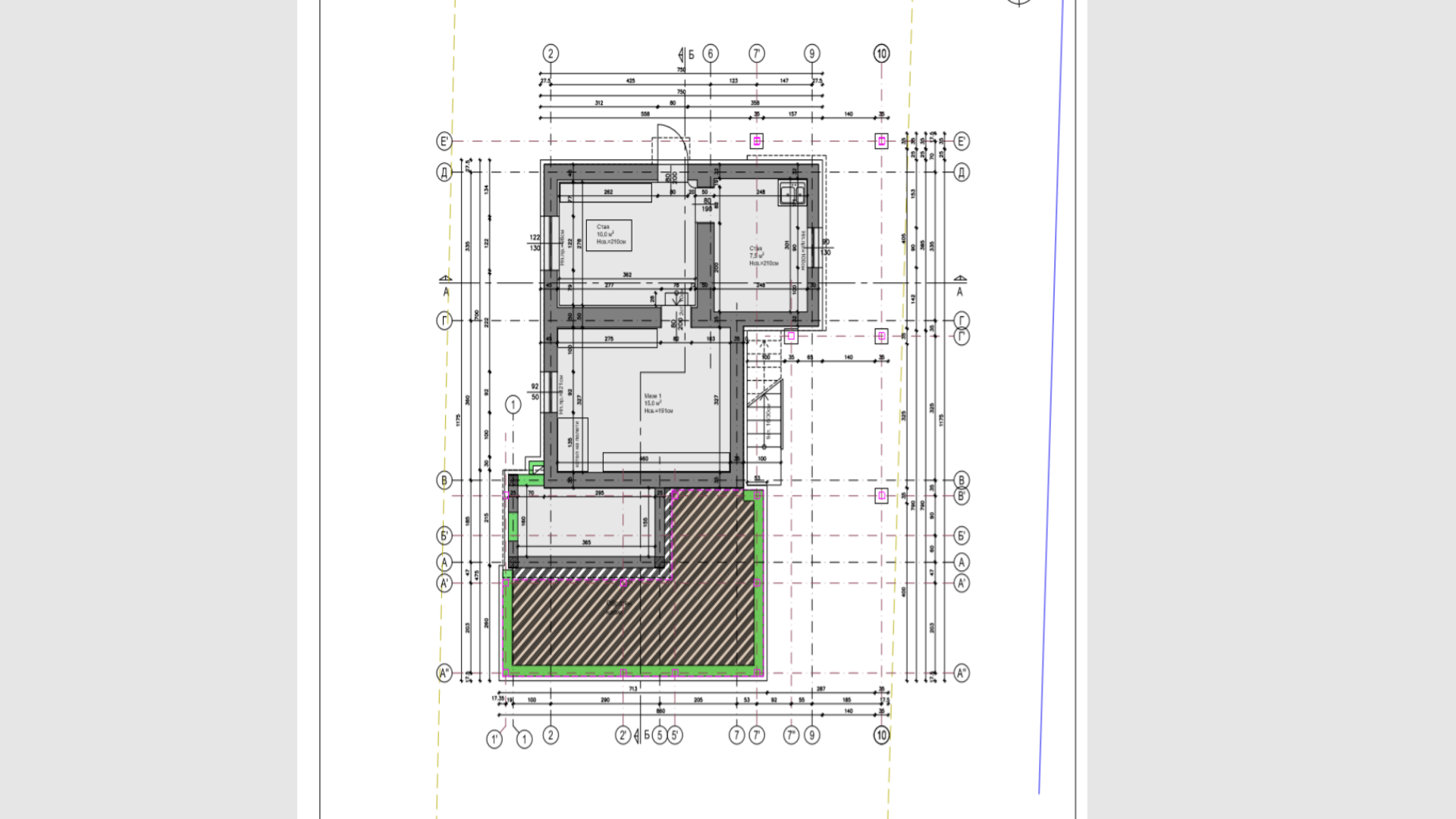
В момента сме на етап идеен проект с архитектите, които наехме. Прикачам снимки от Сутерен, 1-ви и 2-ри етаж.

Ще се радваме на мнения относно самия проект, съвети и идеи.

Ще качвам и снимки и мнения относно развитието на начинанието ни, в случай че е интересно.

Предварително благодаря на всички, които са отделили времето и съветите си!

Прикачен файл

Сутерен.png

Прикачен файл

2.png

Прикачен файл

1.png
Ivastefymar - помощник
Както сте видели се очертава да бъде по-разчупена, интересна и малко нетрадиционна къщурка.

Прилагам снимки и на фасадите:

Прикачен файл

уг.png

Прикачен файл

север.png

Прикачен файл

изток.png

Прикачен файл

запад.png
Руди - майстор
Архитектурното решение е добро, още по-важно е, че на вас ви харесва и ви устройва. Може би входът към мазето от север е малко отдалечен, може да се потърси от изток, на мястото на прозорчето с няколко стъпала, така ще е с покрив отгоре и по-близо до жилищния вход.
От картинките не става ясно много за конструкцията на къщата: има ли колони, какви са основите, дали е с плочи или гредоред? При подобни реконструкции и пристроявания е важно навреме конструкторът да вземе отношение относно възможността за събарянето на стените и пришиването на новите части от юг и изток.
Пожелавам ви успех в начинанието!
naster - майстор
Поздравления и дерзайте! Не съм запознат със ситуацията на съществуващата постройка и сигурно някои неща имат смисъл да са така. Простете откровените ми препоръки, дано не са прекалено остри:
- Аз бих увеличил малко площта на етажа над сутерена до достигане на пълноценна южна фасада, точно колкото смятате да надстроите на последния етаж. така се намаляват и еркерите и чупките, които впоследствие някой ще трябва да изолира.
- Входът може ли да е от изток; не ми се нрави и преходът през трапезария и кухня до всекидневна: така ще рационализирате много площ.
- Има и доста прозорци на запад - аз бих пренасочил на юг.

Ще има ли конструктивна фуга между металната конструкция и съществуващия стоманобетон.
BLUEPUPIL-2 - специалист
нед яну 19, 2020 11:41 pmIvastefymar написа:

Новата конструкция ще бъде метална, а не стоманобетонна поради няколко причини.
1. Смятаме, че ще бъде по-бюджетно, но НЕ за сметка на качеството.
2. По-лека е и по-подходяща за дострояванията, които ние смятаме да правим.
Поздравления! Това е възможно най-добрият избор за конкретната цел.
нед яну 19, 2020 11:41 pmIvastefymar написа:
Ще се радваме на мнения относно самия проект, съвети и идеи.
По отношение на бъдещето пристрояване и преправяне- настоящият конструктор, трябва да е сговорчив. Много е важно да начертаете бъдещите си разширения и връзките към тях да бъдат предвидени в настоящият проект.
Най-големият проблем при бъдещо пристрояване е връзката между покривите. Най-безпроблемен си остава калкана, а при двуетажни сгради могат да се получат и кокетни едноетажни пристройки с едноскатен покрив с малък наклон.
Ако трябва да бъда по-конкретен, бих си позволил да насоча инвеститорите към най-добрата комбинация за сеизмични райони, по отношение на конкретният случай. Стоманени греди със стоманени колони, работещи основно на центричен натиск. Хоризонталните сили от земетръс и вятър да се поемат от няколко ст. бет. колони, разположени, така че да си вършат ефективно работата, без да пречат на бъдещите разширения с идеята да ги улеснят.

Пожелавам Ви успех. Имайте увереността, че сте на правилният път.

Накрая едно предупреждение.
Не залитайте към крайности, като например стремежа за изцяло стоманена конструкция, с примамливата идея да си спестите мокрите процеси над кота нула (след като излеете основите). Най-изгодно и рентабилно по отношение на първоначалната инвестиция и последващите разходи за поддръжка си остава конструкция от стоманена рамка, подпомогната от малко стоманобетон. Която може да се затвори с камък, тухли, пено и газобетони, термопанели, дърво, ламарина, композитни пана и пр. и т.н.

И последно:
Стълбището към вторият етаж да е с височина на стъпалото под 17см.


Прикачен файл:
1.jpg
Прикачен файл:
2.jpg
BLUEPUPIL-2 - специалист
Прикачен файл:
1Q.jpeg
1Q.jpeg (13.27 KиБ) Видяна 4803 пъти
Прикачен файл:
2Q.jpg
2Q.jpg (54.96 KиБ) Видяна 4803 пъти
Ivastefymar - помощник
пон яну 20, 2020 10:53 amРуди написа:
Архитектурното решение е добро, още по-важно е, че на вас ви харесва и ви устройва. Може би входът към мазето от север е малко отдалечен, може да се потърси от изток, на мястото на прозорчето с няколко стъпала, така ще е с покрив отгоре и по-близо до жилищния вход.
От картинките не става ясно много за конструкцията на къщата: има ли колони, какви са основите, дали е с плочи или гредоред? При подобни реконструкции и пристроявания е важно навреме конструкторът да вземе отношение относно възможността за събарянето на стените и пришиването на новите части от юг и изток.
Пожелавам ви успех в начинанието!
Благодарим от сърце!

Входът към партера и мазето е съществувал, реално тази част от къщата няма да променя. Разширенията са на 1-вия етаж разширяване на хола + усвояване на баня 1 + коридор преди нея; на 2-рия етаж надстрояване на баня 2 + спалня 3 + тераса над хола. Всичко останало е съществуващо в момента.
Относно конструкцията на къщата - има колони по краищата. Основите са стоманобетонни и е с плочи.
Архитектите коментират всяко решение за събаряне и пришиване с конструктора, разбира се. Малко понапдупчихме вече къщата, за да сме сигурни къде какво има, тъй като не отговаря на 100% на това, което е по проект за строежа й от 80-те години, както сме и очаквали.
Ivastefymar - помощник
пон яну 20, 2020 11:44 amnaster написа:
Поздравления и дерзайте! Не съм запознат със ситуацията на съществуващата постройка и сигурно някои неща имат смисъл да са така. Простете откровените ми препоръки, дано не са прекалено остри:
- Аз бих увеличил малко площта на етажа над сутерена до достигане на пълноценна южна фасада, точно колкото смятате да надстроите на последния етаж. така се намаляват и еркерите и чупките, които впоследствие някой ще трябва да изолира.
- Входът може ли да е от изток; не ми се нрави и преходът през трапезария и кухня до всекидневна: така ще рационализирате много площ.
- Има и доста прозорци на запад - аз бих пренасочил на юг.

Ще има ли конструктивна фуга между металната конструкция и съществуващия стоманобетон.
Благодарим!

- Ако става въпрос за затварянето на стълбището, обмисляхме този вариант, но решихме, че искаме да го оставим така, като използваме горната спалня като навес над него. Ще се справим с изолирането, имаме човек с опит в тази сфера в семейството. :rock:
- Стълбището в момента съществува, като води до бетонната площадка, която реално ще усвоим, за да реализираме баня 1 + удължаване на коридора. Ще продължим да използваме същото стълбище, затова входът е поставен там.
- Повечето прозорци на запад са съществуващи, ние добавяме само този, който да осветява към вътрешното стълбище и в хола, но там ще имаме прозорец и от юг.
- Да, ще има конструктивна фуга между металната конструкция и съществуващата такава.
Ivastefymar - помощник
пон яну 20, 2020 1:31 pmBLUEPUPIL-2 написа:
нед яну 19, 2020 11:41 pmIvastefymar написа:

Новата конструкция ще бъде метална, а не стоманобетонна поради няколко причини.
1. Смятаме, че ще бъде по-бюджетно, но НЕ за сметка на качеството.
2. По-лека е и по-подходяща за дострояванията, които ние смятаме да правим.
Поздравления! Това е възможно най-добрият избор за конкретната цел.
нед яну 19, 2020 11:41 pmIvastefymar написа:
Ще се радваме на мнения относно самия проект, съвети и идеи.
По отношение на бъдещето пристрояване и преправяне- настоящият конструктор, трябва да е сговорчив. Много е важно да начертаете бъдещите си разширения и връзките към тях да бъдат предвидени в настоящият проект.
Най-големият проблем при бъдещо пристрояване е връзката между покривите. Най-безпроблемен си остава калкана, а при двуетажни сгради могат да се получат и кокетни едноетажни пристройки с едноскатен покрив с малък наклон.
Ако трябва да бъда по-конкретен, бих си позволил да насоча инвеститорите към най-добрата комбинация за сеизмични райони, по отношение на конкретният случай. Стоманени греди със стоманени колони, работещи основно на центричен натиск. Хоризонталните сили от земетръс и вятър да се поемат от няколко ст. бет. колони, разположени, така че да си вършат ефективно работата, без да пречат на бъдещите разширения с идеята да ги улеснят.

Пожелавам Ви успех. Имайте увереността, че сте на правилният път.

Накрая едно предупреждение.
Не залитайте към крайности, като например стремежа за изцяло стоманена конструкция, с примамливата идея да си спестите мокрите процеси над кота нула (след като излеете основите). Най-изгодно и рентабилно по отношение на първоначалната инвестиция и последващите разходи за поддръжка си остава конструкция от стоманена рамка, подпомогната от малко стоманобетон. Която може да се затвори с камък, тухли, пено и газобетони, термопанели, дърво, ламарина, композитни пана и пр. и т.н.

И последно:
Стълбището към вторият етаж да е с височина на стъпалото под 17см.



1.jpg2.jpg
Много благодарим за подкрепата и съветите, ще обсъдим всичко с конструктора! :)
Ivastefymar - помощник
Здравейте,

Пиша, за да се похваля, че вече сме с готов проект! (4 дебели папки с хартия #-o )
Не знам дали не е стандартен срок, но след около 4 месеца чакане за нас това е голямо събитие. :rock:
Другата седмица го внасяме в общината и оттам ще стискаме палци да се приеме по-бързо и без забележки! [-o<

Междувременно ще пуснем запитване до няколко фирми за реализацията. За тези, които са минали по нашия път вече - дали бихте могли да ни съдействате с предложения на изпитани строители? Също каквито и да е съвети са добре дошли. :) Става въпрос за район София.

И друга въпросителна към тези, които живеят в къщи без канализация - Какво е вашето решение за изгребна яма/ пречиствателна станция? Има ли значение какъв е типът на почвата? (при нас е глинеста и е доста трудоемно за копаене..) Използвали ли сте фирма или сами сте измайсторили решение?

Предварително благодаря на всички, които четат/ включват се и следят развитието на историята ни. :-D

Тема "Разширяване на къща" | Включи се в дискусията:


Сподели форума:

Бъди информиран. Следвай "Направи сам" във Facebook:

Намери изпълнител и вдъхновения за дома. Следвай MaistorPlus във Facebook: