Здравейте съфорумци,
престои ни строителство на собствен дом. Всички налични теми съм ги изчел много внимателно и бяха доста полезно, но реших да създам нова, за да не "цапам" постовете на колегите.
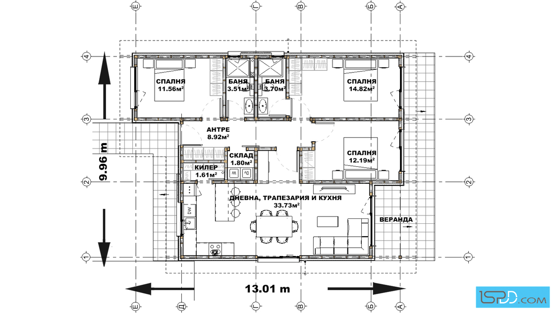
Искам да попитам за мнение и коментар относно груба цена за строеж на едноетажна къща до мазилка/шпакловка. В момента ни се изготвя проект, като основните характеристики са: 120кв.м., без покривна плоча и с двускатен прокрив. Хубавото, че парцела ни има ток, вода и канализация. За да предоставя повече яснота относно проекта ще прикрепя примерен по който се водихме. В общи линии е 1:1 с нашите изисквания
Свързахме се с няколко строителни фирми, но повече от тях искат завършен проект, а някои просто ни казаха средна цена спрямо последните им проекти. Но искам да запитам и за други коментари.
Ще бъда много благодарен за вашите коментари и мнения! Благодаря!
престои ни строителство на собствен дом. Всички налични теми съм ги изчел много внимателно и бяха доста полезно, но реших да създам нова, за да не "цапам" постовете на колегите.
Искам да попитам за мнение и коментар относно груба цена за строеж на едноетажна къща до мазилка/шпакловка. В момента ни се изготвя проект, като основните характеристики са: 120кв.м., без покривна плоча и с двускатен прокрив. Хубавото, че парцела ни има ток, вода и канализация. За да предоставя повече яснота относно проекта ще прикрепя примерен по който се водихме. В общи линии е 1:1 с нашите изисквания

Свързахме се с няколко строителни фирми, но повече от тях искат завършен проект, а някои просто ни казаха средна цена спрямо последните им проекти. Но искам да запитам и за други коментари.
Ще бъда много благодарен за вашите коментари и мнения! Благодаря!
