Здравейте, някой може ли да ми даде идея как да монтирам UD профил към тези стени на около 10см от тавана без да уцеля някой кабел?
Мазилката и шпакловката е вече направена. Ако разкъртя внимателно на две-три места за да хвана с дюбел и да намажа профила с монтажно лепило дали ще държи достатъчно
Искам да направя нещо такова:
V3_lrd_lenta.JPG (39.53 KиБ) Видяна 8211 пъти
Благодаря предварително!
Мазилката и шпакловката е вече направена. Ако разкъртя внимателно на две-три места за да хвана с дюбел и да намажа профила с монтажно лепило дали ще държи достатъчно
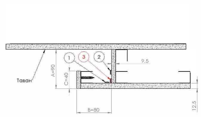
Искам да направя нещо такова:
Прикачен файл:
V3_lrd_lenta.JPG (39.53 KиБ) Видяна 8211 пъти

