Здравейте,
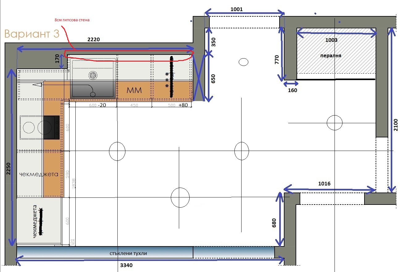
Ще започвам ремонт в кухнята и понеже една от стените ми е гръб на шахтата на блока (8см гипсова стена), ми се иска да я усиля по някакъв начин.. Прилагам схема на въпросната стена,за да се добие представа
В ляво от нея зъба е комин. Цялата ми идея е да си захвана една идея по-добре шкафовете на кухнята... Те ще са до тавана и ми се иска да се държат на нещо една идея по-добро като основа ,но да не губя и пространство от иначе малката ми кухничка. Хрумна ми за картон на гребен (просто като цялост) и хубави дюбели (фишер) за шкафовете ,които да хванат през картона и през стената. Знам че картон не се дюбелира ,но по-скоро за цялостно укрепване ми е идеята. Събирам съвети 
Поздрави
Ще започвам ремонт в кухнята и понеже една от стените ми е гръб на шахтата на блока (8см гипсова стена), ми се иска да я усиля по някакъв начин.. Прилагам схема на въпросната стена,за да се добие представа
Поздрави
