Отопление с камина с въздушна риза и въздухоотводи?
Публикувано: съб фев 06, 2016 8:35 am
Здравейте съфорумци имам една идея за отопление, което искам да реализирам в къщата си. Наявам се да ми помогнете със съвети.
По принцип съм предвидил да има котел на пелети с фодна риза, радиатори и лири за баните т.н. Но и камината си е задължителна
Та идеята ми относно камината е да е с въздушна риза и посредством въздухоотводи да отвеждам част от топлия въздух съответно в която от спалните желая.
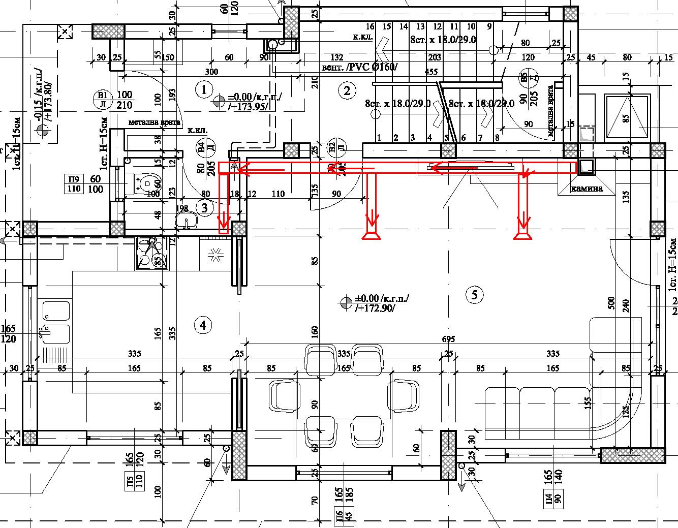
Начертал съм малка схема на това, което мисля да се реализира.
Главния въздухоотвод с раклоненията ще бъде монтиран на тавана на първия етаж, където е камината. Въздухоотводите ще бъдат скрити с гипсокартон и ще излизат съответно в спалните на втория етаж минавайки през плочата.
Първи етаж: Втори етаж: Молбата ми е да ме посъветвате и коментираме как може да бъде реализирана подобна идея.
Видове камини (горивни камери с въздухоотводи), въздухоотводи и т.н.
По принцип съм предвидил да има котел на пелети с фодна риза, радиатори и лири за баните т.н. Но и камината си е задължителна
Та идеята ми относно камината е да е с въздушна риза и посредством въздухоотводи да отвеждам част от топлия въздух съответно в която от спалните желая.
Начертал съм малка схема на това, което мисля да се реализира.
Главния въздухоотвод с раклоненията ще бъде монтиран на тавана на първия етаж, където е камината. Въздухоотводите ще бъдат скрити с гипсокартон и ще излизат съответно в спалните на втория етаж минавайки през плочата.
Първи етаж: Втори етаж: Молбата ми е да ме посъветвате и коментираме как може да бъде реализирана подобна идея.
Видове камини (горивни камери с въздухоотводи), въздухоотводи и т.н.