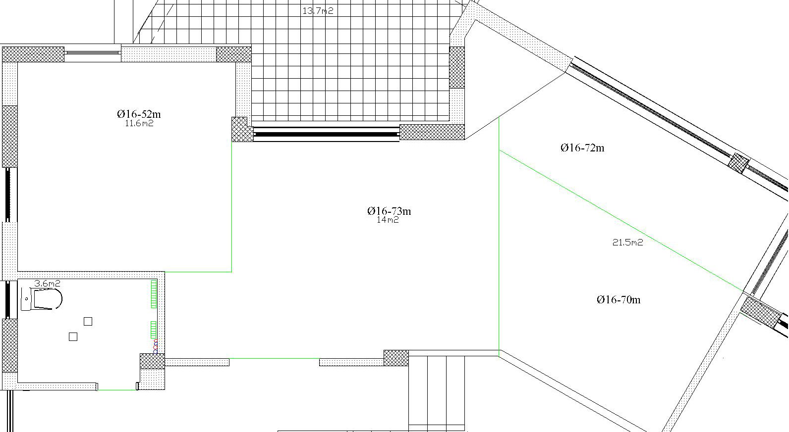
При мен подовото ще се захранва от котел на твърдо гориво, разположен в мазето. Искам да сложа и колектора там, веднага след котела, и през две дупки през плочата прокарам тръбите към горния етаж към всяка от стаите. Ще има 6 кръга общо. Мазето е под целия етаж и всичко ще е там. Въпроса ми е ще може ли да се обезвъздуши системата и къде ще е най-добре да сложа разширителния съд?
tupalka написа:При мен подовото ще се захранва от котел на твърдо гориво, разположен в мазето. Искам да сложа и колектора там, веднага след котела, и през две дупки през плочата прокарам тръбите към горния етаж към всяка от стаите. Ще има 6 кръга общо. Мазето е под целия етаж и всичко ще е там. Въпроса ми е ще може ли да се обезвъздуши системата и къде ще е най-добре да сложа разширителния съд?Поне изходящия колектор за подовите кръгове трябва да е над нивото на самите кръгове - обезвъздушаването става през него
