• 1
  • 2
Най - вълнуващия въпрос зимно време.
qkimov - помощник
Здравейте! Имам самоделна инсталация със самоделен котел в апартамента в който живея (под наем). На последен (8-ми) етаж, панелен,изцяло външен (освен на север), без изолация и без хубава дограма (дървена типична за панелка).
Инсталацията която имам се състои от 5бр панелни радятори с обща мощност малко над 8.5Kw.
Самоделния котел е с воден обем 103л., но не зная колко Kw е.
Тръбното трасе е изградено от тръба 16 PLEX-AL-PLEX, като от котела до най-крайния радиатор (в хола), върви цяла търба (16) и от нея се разклонява за всеки радиатор. Помпата е FERROLI но не знам нищо за нея.
През изминалата зима ни беше леко хладно по стаите, а радяторите и котела видимо работиха добре. Казвам че работиха понеже котела потдържаше нормално температура от 60-70градуса (понякога стигаше и до 90 ако му отпусна края),а радяторите бяха вряли. За цялата зима съм изхарчил около 4.5-5кубика дърва и около 150-200кг брикети за през ноща. топлим се само от 17ч. до 23-24ч. като последното зареждане го правих с брикети и дърва. На сутринта си имаше жар (в повечето случаи) и водата в котела държеше 35-40г. а до 17ч. падаше на 20-25г.
След дългото обяснение като ученичка, искам да питам колко и какви(Kw) трябва да са радиаторите или трасето за да повиша температурата в помещенията с около 3-5г? Какво трябва да направя като цяло?
Пропуснах да напиша че апартамента е висок 2.57м. и под нас никой не живее.
Немога да направя изолация и да сменя дограмата (хазаите се дърпат).
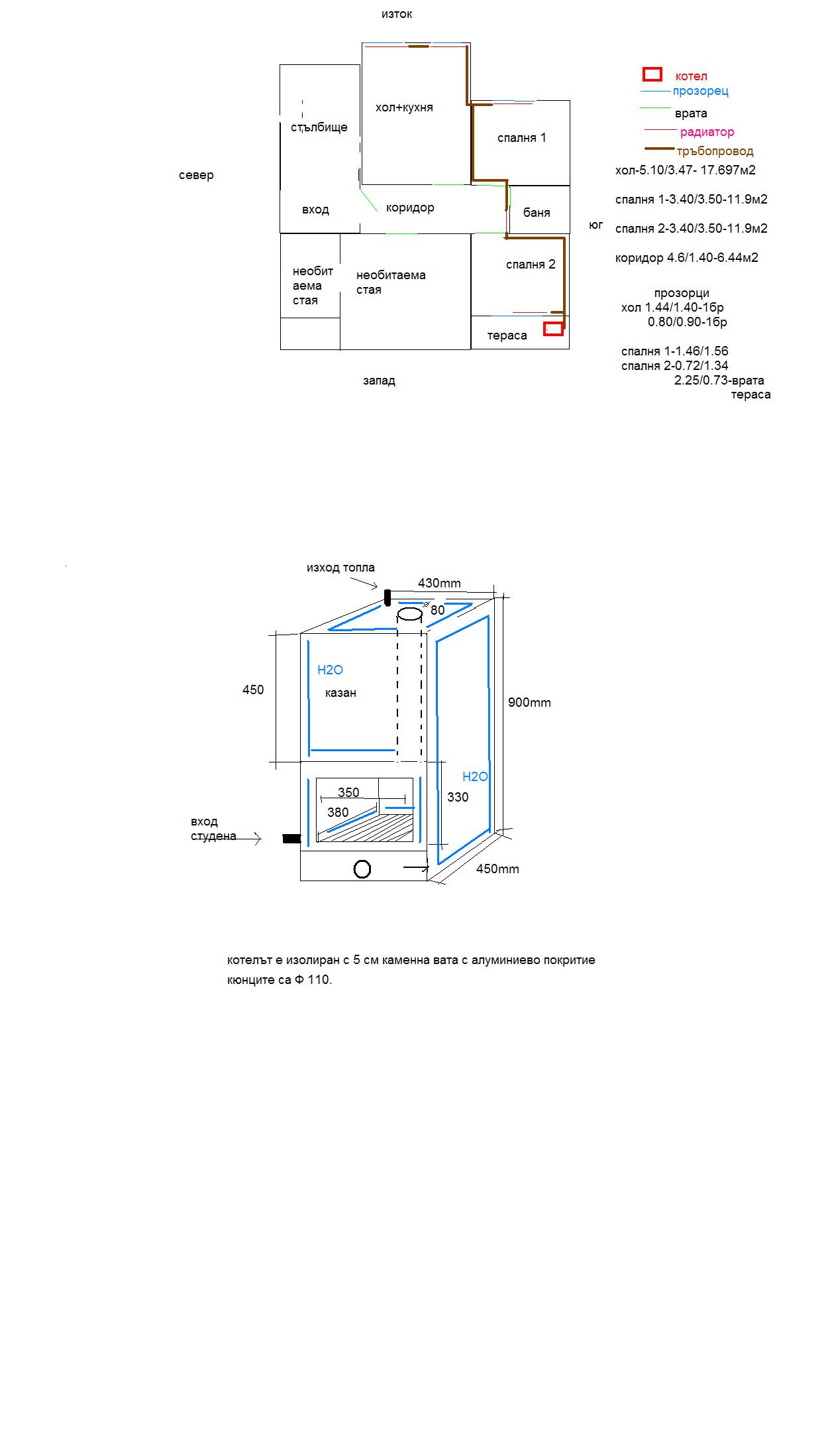
Качвам чертеж на апартамента с размери на стаите и разположение на системата и прозорците.

Ще съм наистина благодарен на всички взели участие по темата. :goodman:

Прикачен файл

скица 2.JPG
Последна промяна от qkimov на чет сеп 25, 2014 3:46 pm, променено общо 1 път.
jorkataG - специалист
Магистралата е с ф16 а е хубаво да е с ф 20 а за всеки радиатор от магистралата да отива ф 16. При положение че под вас никой не живее няма как да се стопли /пода излъчва студ/ и за хола радиатора не би следвало да е под 3.2 kW. Отделно за времето през което гори котела не очаквай да се стопли.
Така си приел всичко а на хазаите не им се влагат пари за дограма или изолация.
Правилото е такова че докато си под наем при всеки ремонт/подобрение е редно да ти приспаднат разходите от наема но на тях това не им харесва явно и затова се дърпат.
И още нещо понамали размера на картината.
qkimov - помощник
Със сигурност нямам възможност да направя санировка, но мога да се понапъна за дограмата а и да понатисна хазаите.
Ако при това положение подменя във всяка стая радиаторите с такива от по 2500w, а в хола сложа 2X2500w. дали ще има положителен резултат или по-скоро тормоз над котела?
Мисля да прасна и един чертеж на котела ако е от значение.
Съжалявам за размера на скицата.Ще видя какво мога да направя по въпроса.
Благодаря!
joro_vn - специалист
Тъй като на хазаите не им пука дали ти е студено, минималното с максимална ефективност което може да направиш за своя сметка е да изолираш тавана и стената към стълбището.
Вата 10 см. с гипсокартон е най добре, но може да минеш и със стиропор или фибран.
Не се набутвай с радиатори и дограми, остават си за хазаите.
И си уплътни входната врата да не те проветрява излишно.
Т.е. намали загубите, а не увеличавай разходите.
И постави някакви накакви дебели килими или мокети където може, ако няма все още.
qkimov - помощник
Входната врата съм я изолирал сравнително добре и от нея не духа.
Вътрешна изолация мога да направя евентуално със стиропор.
Дори и да сменя радиаторите, след време когато се махнем от този апартамент, мога спокойно да си ги взема с мен и да си ги монтирам на етажа в къщата ми или на вилата(все ще влезат в употреба).
Ако подменя прозорците, мисля че ще са съгласни да ги поемат като намалим по малко сметката за наема но това са си мои проблеми с преговора.
Благодаря за съветите и идеите ви! :prayer: :partyman:

П.П. И все пак ако подменя радиаторите ще има ли полза (задоволителна)? Крематориума дали ще им смогне? Или какво друго да подменя по системата?
tysonlkr - специалист
Сложи си конвектори с тях помещението се загрява по бързо, но при теб (с толкова топлозагуби) и ще изстива по бързо.
Просто при тях се затопля по бързо въздуха в стаята.

Да не изстива бързо трябва да сложите изолация :wink:
jorkataG - специалист
Варианта с вентилаторни водни конвектори е добър, също така става и с вътрешни тела на климатик. Към съществуващите радиатори можеш да добавиш по едно вътрешно тяло от климатик примерно по една 9-ка.
Ако сложиш само тела да не са по малки от 12-ки, тогава и 14 и 18 да сложиш все става. По евтиния вариант е с тела от климатик, конвекторите почват от 450-500 лв нагоре.
qkimov - помощник
Благодаря за идеите!
За сега съм решил да сменя дограмата и да изолирам външните стени с 3 см стУдУпор :-D , както и да сменя тръбното трасе с тръба 20.
Нямам място да сложа тела от климатици иначе е доста ефективно (баща ми си монтира едно на етажа миналата година и разликата е драстична).
Спорен ден!
Energyx - специалист
Особено тавана с не по-малко от 8-10 см. И за външните стени 3 см. е малко, не си струва целия масраф-поне 5 см. Сложи от твърдия фибран и отгоре с мрежа, шпакловка и т.н.
  • 1
  • 2

Тема "самоделна парна система-мнения и съвети" | Включи се в дискусията:


Сподели форума:

Бъди информиран. Следвай "Направи сам" във Facebook:

Намери изпълнител и вдъхновения за дома. Следвай MaistorPlus във Facebook: