• 1
  • 14
  • 15
  • 16
  • 17
  • 18
  • 460
Най - вълнуващия въпрос зимно време.
filmatoplo - майстор
В момента псувам едни дървесни , на 3та степен горелката гори по слабо от клипа който гледам в Ютуб с слънчогледови , остъй го клипа -нали гледам колко температура развива с тях -така че от пелети до пелети има разлика колкото Ню Йорк и Карнобат :-D .
manobg - специалист
filmatoplo написа:
То е ясно че иска стаен термостат , и малко намаляне на мощността , ако може от настройките , намаля се дозите в секунди и малко въздуха .
Да, има възможност да се намали времето за подаване на пелети, паузата между подаванията и силата на вентилатора. Ще пробвам да ги намаля малко, а термостат на всички такива камини ли може да се слага и ако да, какъв трябва да е ?

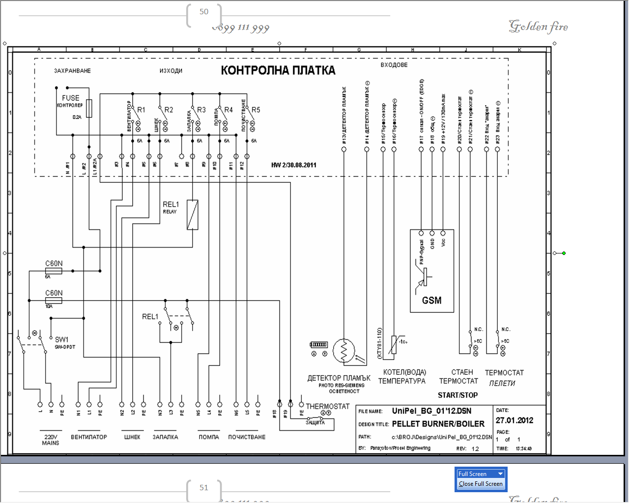
В схемата, която са ми изпратили виждам, че има за стаен термостат, но май трябва да отворя кутията с платката за управление и да проверя дали съответства.

Препоръчайте ми марка, модел.

Прикачен файл

Screenshot 2014-11-04 09.37.00.png
geniya - специалист
manobg написа:
filmatoplo написа:
То е ясно че иска стаен термостат , и малко намаляне на мощността , ако може от настройките , намаля се дозите в секунди и малко въздуха .
Да, има възможност да се намали времето за подаване на пелети, паузата между подаванията и силата на вентилатора. Ще пробвам да ги намаля малко, а термостат на всички такива камини ли може да се слага и ако да, какъв трябва да е ?

В схемата, която са ми изпратили виждам, че има за стаен термостат, но май трябва да отворя кутията с платката за управление и да проверя дали съответства.

Препоръчайте ми марка, модел.
Най-вероятно на платката ще имаш клема на която има монтиран мост.Трябва да го махнеш и на негово място да дойде кабела от термостата.Щом камината ти топли едната стая, в друга стая трябва да е сложен термостата, било жичен или безжичен.Схемата на свързване е проста в упътването на термостата има различни варианти.Настройваш термостата на желаната температура и си :drinkers:
manobg - специалист
Този ще ми свърши ли работа ?
geniya - специалист
Да, ще ти свърши работа.Всеки термостат ще свърши, този от линка е със седмично програмиране.Слагай смело, пускаш едно каблече от горелката до другата стая връзваш термостата.
syncho - майстор
Не се занимавай с глупости, ами си сложи термостатични вентили по радиаторите. Така ще си определяш температурата във всяка стая и камината пак ще ти модулира. Тоя стаен термостат като го шибнеш в северната стая познай какво става в хола, където ти се намира камината... ще ти подскажа - пак ще си по бельо. Недей да намаляш температурата на водата на по-малко от 65С. След като си сложиш термовентилите по радиаторите просто ги използвай - настрой си ги на желаната температура и си готов.
geniya - специалист
syncho написа:
Недей да намаляш температурата на водата на по-малко от 65С.
Намаляй си Т на водата колкото искаш, това да не са ти донбаски въглища.
ДА, при температура 65оС КПД е по-голямо, ама ако си с преоразмерени радиатори горелката пак ще почива много.Тези твърдения за 65оС винаги ми се струват ... :axe: Моята горелка съм я пускал да работи на 65оС и разхода е 30кг/ден при външни температури 15оС.Еми когато стане студено трябва да е 50-60кг/ден, тогава ще се обадя на тези даващи такива съвети да ми доставят пелети за тяхна сметка. :проба:
syncho - майстор
geniya ти май изобщо не четеш. Тук не става въпрос за котел с горелка, а за камина. Така като гледам как раздаваш съвети наляво надясно сигурно имаш поне 10г опит с тези неща. Тези 65С са за да се гарантира липсата на конденз в камината/котела, както и в комина. Ти, ако искаш си го настрой и на 40С. Никой не те спира.
geniya - специалист
syncho написа:
geniya ти май изобщо не четеш. Тук не става въпрос за котел с горелка, а за камина. Така като гледам как раздаваш съвети наляво надясно сигурно имаш поне 10г опит с тези неща. Тези 65С са за да се гарантира липсата на конденз в камината/котела, както и в комина. Ти, ако искаш си го настрой и на 40С. Никой не те спира.
Това че е камина на пелети, каква е разликата освен че е изработена от стомана, а не чугун?Знам, че 65oC ти гарантират липсата на конденз в комина, корозия по стените на водната риза, образуване на агресивни съединения и отлагания, но това също така ти бърка поне с 50% отгоре в джоба.В дългосрочен план за мен е по-добре да ми са по-малки разходите за гориво ежегодно, отколкото да съм платил камината 3пъти само и само да и удължа живота.Това са моите възгледи.
Нали тук manobg пита за камина на пелети?
manobg написа:
filmatoplo написа:
То е ясно че иска стаен термостат , и малко намаляне на мощността , ако може от настройките , намаля се дозите в секунди и малко въздуха .
Да, има възможност да се намали времето за подаване на пелети, паузата между подаванията и силата на вентилатора. Ще пробвам да ги намаля малко, а термостат на всички такива камини ли може да се слага и ако да, какъв трябва да е ?

В схемата, която са ми изпратили виждам, че има за стаен термостат, но май трябва да отворя кутията с платката за управление и да проверя дали съответства.

Препоръчайте ми марка, модел.
syncho - майстор
Това, което току що написа, че ти бърка в джоба с 50% повече, е абсолютна глупост.

Аз не съм казал, че не е питал за термостат, а да не се занимава с такива глупости, защото няма да му свърши реално работа. И разлика има м/у котел и камина, но няма да се занимавам сега да обяснявам каква е.
  • 1
  • 14
  • 15
  • 16
  • 17
  • 18
  • 460

Тема "Разход на пелети!" | Включи се в дискусията:


Сподели форума:

Бъди информиран. Следвай "Направи сам" във Facebook:

Намери изпълнител и вдъхновения за дома. Следвай MaistorPlus във Facebook: