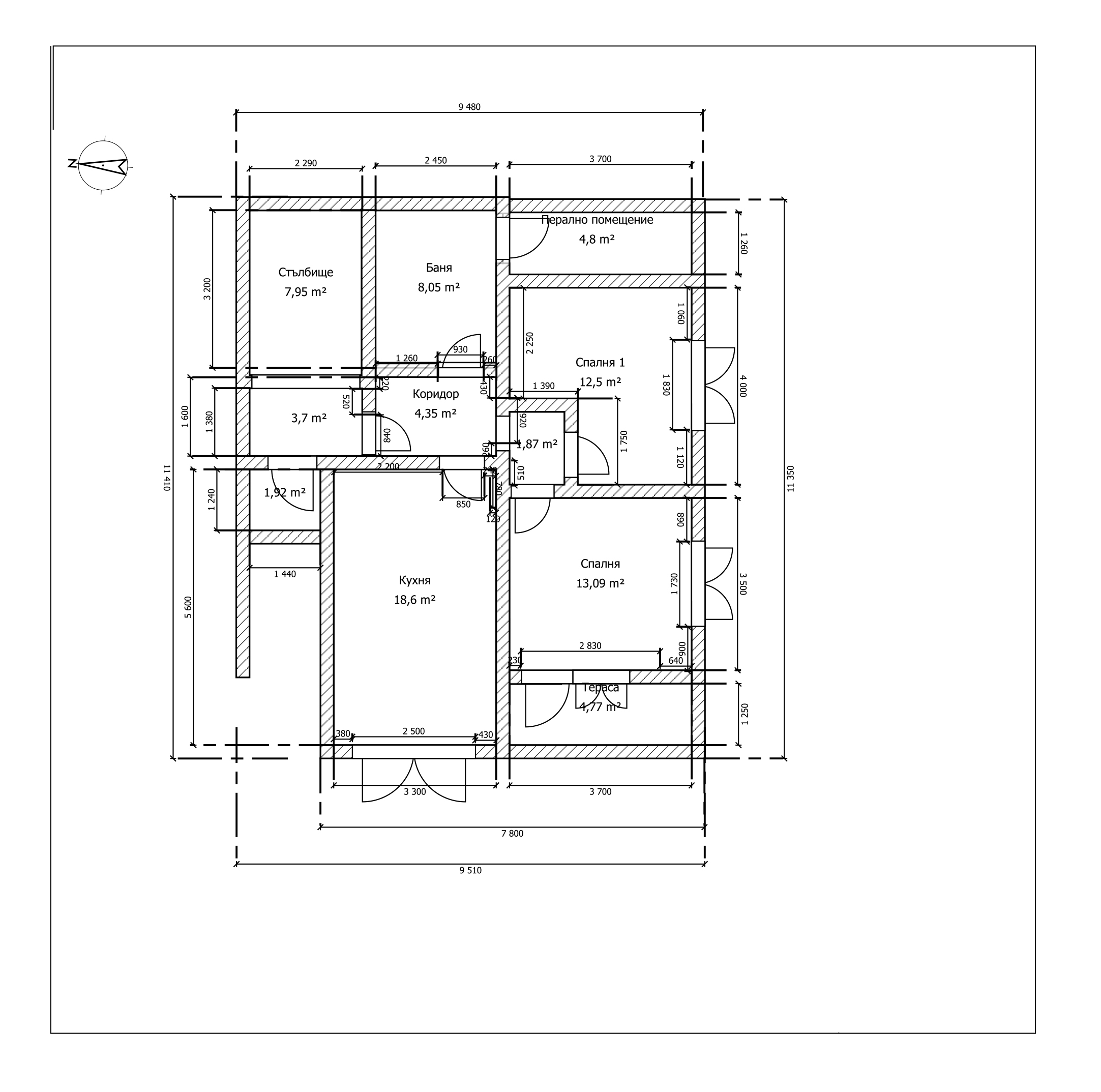
Здравейте! Предстои ми ремонт на новозакупена къща, та в момента съм в процес разучаване отностно отопление,топлоизолаций и т.н
Някой би ли ми казал дали грубо съм се справил със сметките за топлозагуби
(смятал съм с изолация на стените 10см.ESP) Използвал съм калкулатора на марисан както и доста изчетено от фотума, но не съм сигурен дали съм във вярната посока.След като определя топлозагубите ще се умува и какво отопление и.тн ичетох и темата за подовото тотално се омотах и там.
прилгам снимка с опитните ми изчисления.Благодаря предварително!
Някой би ли ми казал дали грубо съм се справил със сметките за топлозагуби
прилгам снимка с опитните ми изчисления.Благодаря предварително!
