Най - вълнуващия въпрос зимно време.
Б.Дяков - помощник
Привет на всички съфорумци!
Съвсем нов съм тук, причината е ясна- напролет ми предстои строителство на собствена къща. От един месец вечерите ми минават в събиране на информация- нещо много ценно за лаици като мен, затова благодаря сърдечно на всички вас, за всеки ваш пост.
В момента съм на етап проектиране и тук изникна първият проблем.
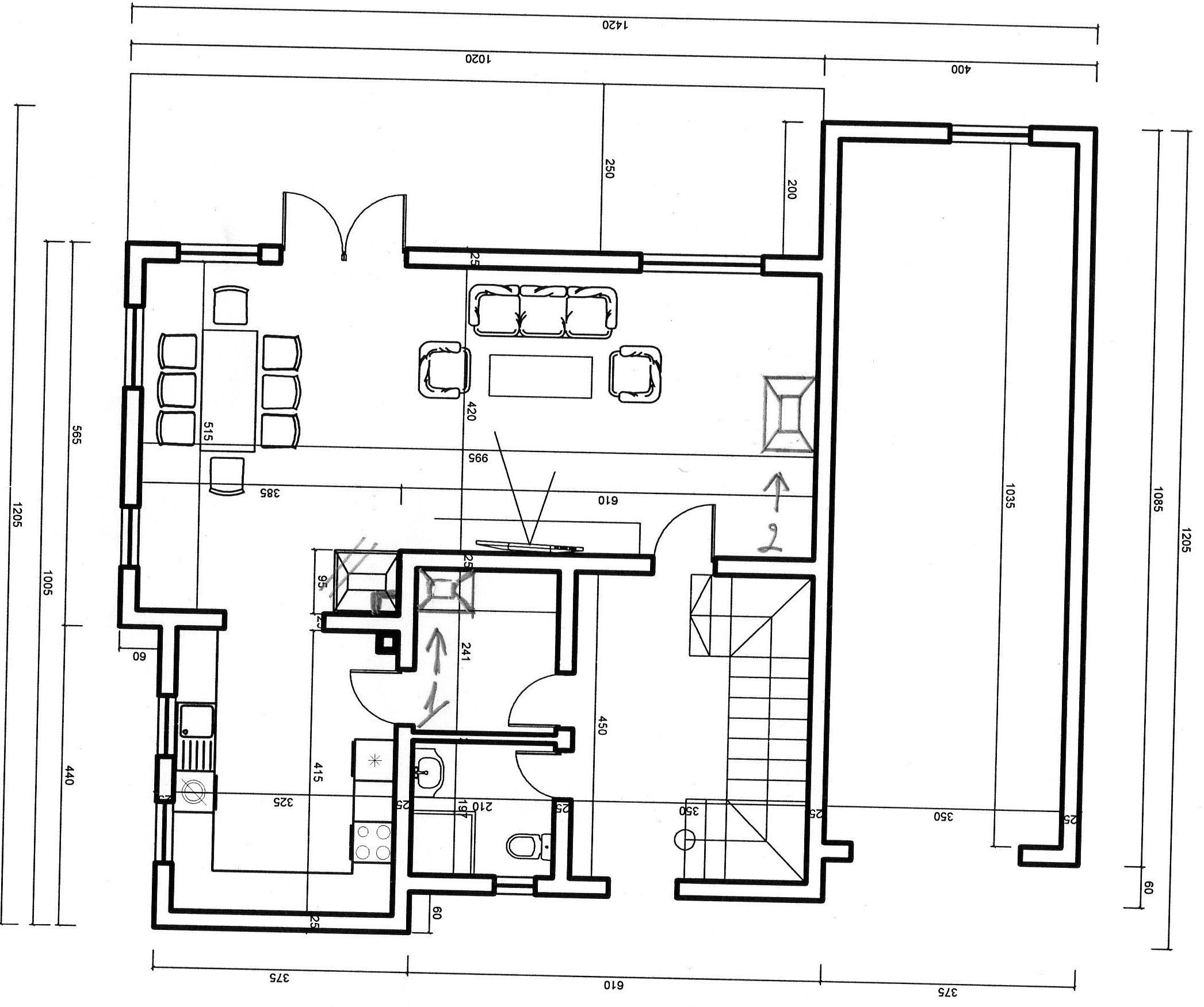
С 1. съм упоменал мястото, където да бъде разположена камината по мое желание, с 2. определих втори вариант- камината да стои централно на стената( помещението от другата страна е предвидено за склад).
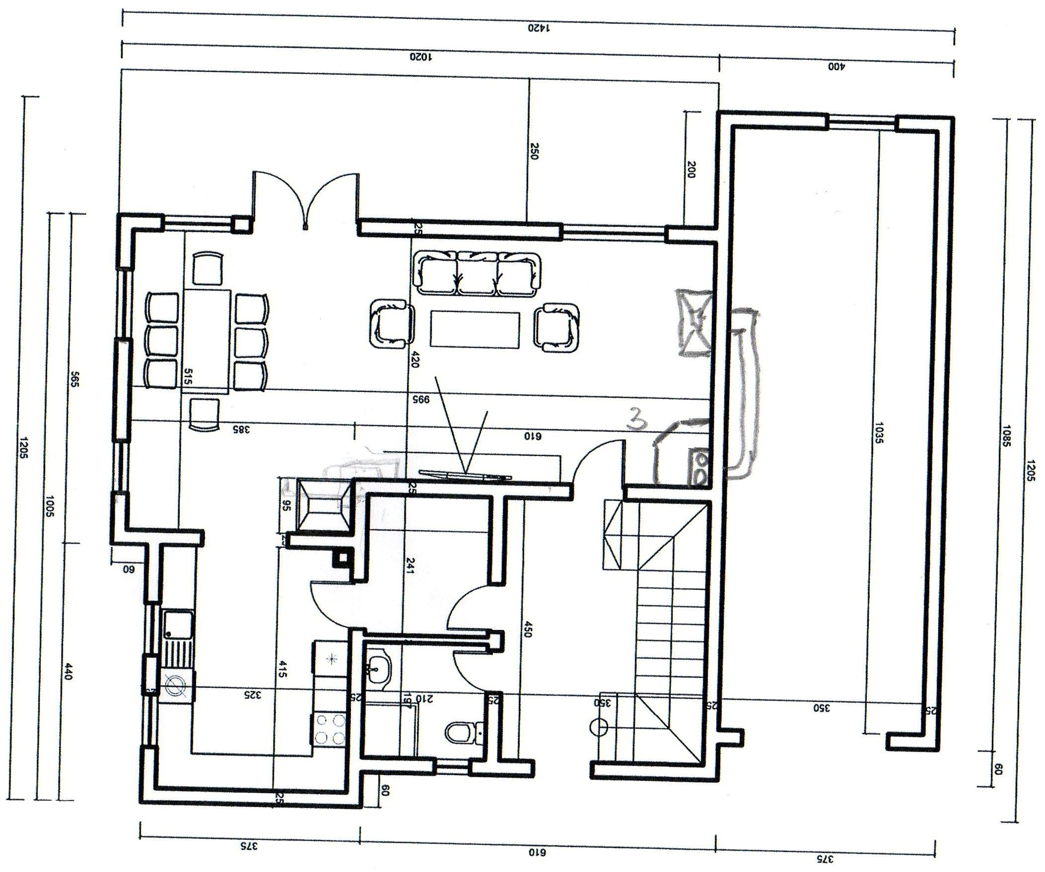
Получих отказ от конструктора и за двата варианта, като неговото решение е камината да бъде зад вратата към хола, надясно по същата стена ( 2.), вариант в който, според мен, красотата на камината се губи.
Въпросът ми е, ако камината се сложи централно на стената, как да организирам димоотвеждането от камината до комина, който се намира в ъгъла зад вратата?
Друг въпрос :? – възможно ли е коминното тяло да бъде вградено в носеща стена, къщата е двуетажна, над хола ще има спалня?
И относно отоплението– повечето прозорци на първия етаж са от земята, тип френски, планирам подово отопление, НО доколко по-скъп вариант е то от класическия, с радиатори под прозорците?

Благодаря предварително на всички, решили да помислят върху моя проблем!

Прикачен файл

img012.jpg Това бяха двата варианта, които аз бих желал.

Прикачен файл

img013.jpg Това е отговорът на конструктора, камината в ъгъла зад вратата.
marmoz - специалист
Mного яко :)

Прикачен файл

00038030.jpg
00038030.jpg (45.44 KиБ) Видяна 2882 пъти
VLADO66 - майстор
Помисли за вариант камината да бъде вградена на мястото на телевизора.
Б.Дяков - помощник
Точно този вариянт бе отхвърлен от конструктора,иначе и на нас този вариянт ни бе фаворит.Пак ще опитам да поговоря с архитекта.
igt - специалист
Помисли за котелно извън къщата, че с тази камина ще ти трябват два тира с дърва за сезон, както и слушай конструктура, предложил ти е добро решение.
Успех в начинанието.
VLADO66 - майстор
Ако това е шайба може да се направи отвор след становище и детайл за укрепване дадено от конструктора.
AntonBM - специалист
Какъв е този крив конструктор! Работя с над 15 колеги конструктори и никога съм нямал проблем с избрано от мен място за камината. Тоя явно се вживява, като архитект или ОВК специалист. Я го сменяй! Не е негова работа да казва къде ще е камината. Може само да премести с 10-15 см. отвора на комина, но не и повече.
Работата на конструктора е да намери начин как да стане, а не да ти казва как на него му е удобно. Ако трябва ще слага обърнати или скрити греди, но начини за монтаж на камината, където си поискаш винаги има.
Кажи му името на този гений? Само един път работих с такъв и не съм повтарял. Стои си без работа. Инициалите му са П.Л. твоя дa не е със същите? Ако е така по-добре го сменяй, само грижи ще имаш.
idunno - специалист
Колега Дяков,
сложи си камината където ти харесва- да се вижда най- малкото.До комина може да стигнеш с комини тела от неръждавейка- има всякакви размери.Ако ти се наложи да преминаваш през носеща стена ( не колона) и си на стъпка "проект" просто се оставят отвори които се усилват.Нищо особено.
Не, че конструктора е неграмотен, може да не му се чертае излишно :)

Тема "Проблем с позициониране на камина!" | Включи се в дискусията:


Сподели форума:

Бъди информиран. Следвай "Направи сам" във Facebook:

Намери изпълнител и вдъхновения за дома. Следвай MaistorPlus във Facebook: