• 1
  • 2
Най - вълнуващия въпрос зимно време.
deadman - помощник
Здравейте предстои ми преместване на парното на къща и се налага изграждане на комин.
За къщата:
Къщата е 64кв.м, външен размер(52кв.м без стени) на един етаж и "лятна" кухня 32кв.м(15кв.м без коридор+3кв баня+wc).Къщата е с лоша изолация, стари прозорци и градоред
До момента се е отопляваше от етажно парно с камина Прити в къщата и печка на дърва в лятната кухня

Идеята ми е да сложа печка АЛФА ТЕРМ 20 в лятната кухня и да захраня и къщата, като отоплението на лятната кухня ще е от самата печка и лира в банятана останалото е за етажа. КАто след време ще включа и боилер със серпентина.
Налична е помпа двуили трискоростна (паднал е етикета-май е грундфос с 2-3 скоростна от 2000 године е за етажа с разширителен съд елби 8 литра.
Въпросите:
1. Ще стигнат ли за новата печка помпата и разширителя или трябва да се купуват нови?(височината от новата печка до е тажа е 2 метра)
2. ще стигне ли за отопление печката (смятал съм 52*200в=10 400в + 600в за лира +3000в за боилер=14кв водната риза е 15кв( не обръщаите внимание на етажа над лятната кухня -това са будещи планове)

За комина:
Трябва да се премести комина и да се изгради на ново:
Идеята ми е да се изгради с двоино коминно тяло бетонно, едната кухина за комина другата за абсорбатора.Вътре в коминното тяло мисля да сложа огъваем въздухопровод-иноксов и да го изолирам с вата без да го подпълвам с мазилка около него.
Та моля за съвет за следните неща за комина:
1. едностенен огъваем ще е добре ли или двустенен
2. каква вата да сложа около въздуховода
3. за въдуховода за абсорбатора да слагам ли алуминиев въздуховод в коминното тяло или да го оставя така
4. да измазвам ли комина от вън ако д с каква мазилка
5.комина на достатъчна ли височина ще е

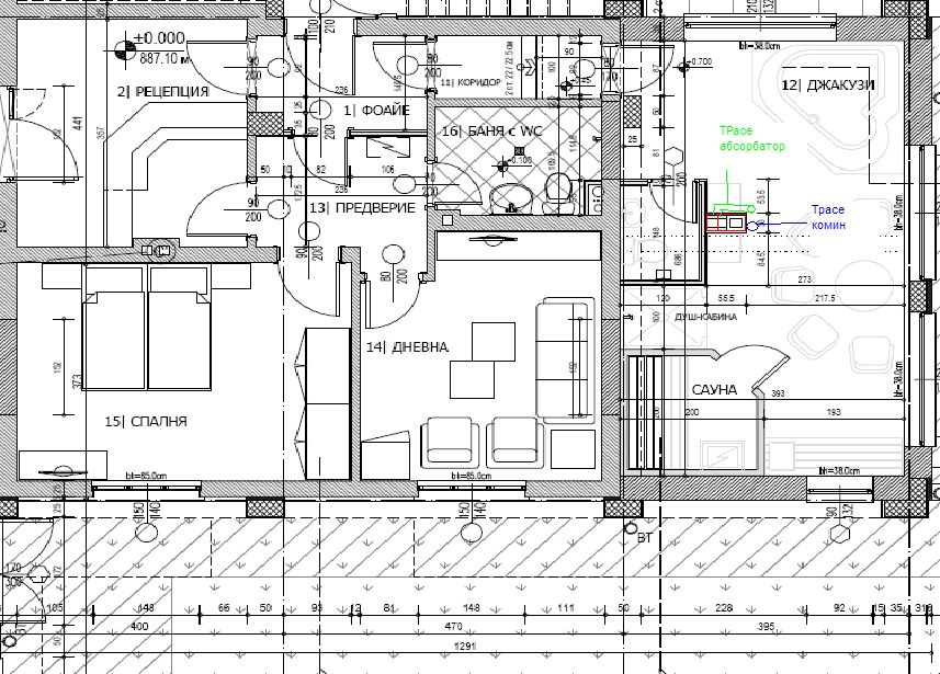
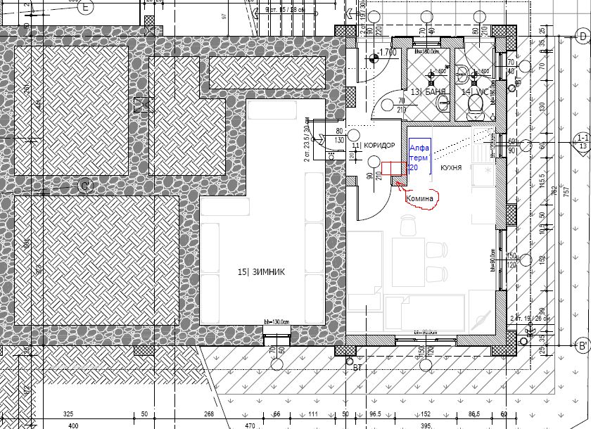
Прикачен файл

трасета комини абс.jpg

Прикачен файл

поглед отгоре.jpg

Прикачен файл

Фасада изток.jpg
Фасада изток.jpg (72.25 KиБ) Видяна 4683 пъти
шоп - майстор
С този нарисуван от теб комин ще си запалиш стрехата и покрива. Удължи го до кота било.

Помпата ще върши работа. Това е циркулационна помпа, а не напорна и нивото няма значение.

Каменна вата за изолация на комина е Ок
deadman - помощник
Да за комина ще го пусна поне 60см над стехата и ще го удължа с две керамични тела нагоре , а на различни нива ли трябва да са това за абсорбатора и това на комина?
шоп - майстор
ще имаш проблеми с тягата. До кота било за да ти е сигурна работата.
Svezar - специалист
За мен правилния начин е този /така е направено и у нас/,единственото затруднение е че трябва да се прекара комина през стрехата което е свързано с повече средства и майсторлък ! Като залепиш комина за стената няма опасност при някой лек трус да го намериш в лятната кухня,все пак се очаква да стане към 6 метра :mrgreen:
Изображение
deadman - помощник
Svezar, проблема е че за бъдещите планове там трябва да е отдушника за помещението и за стаята над него, та малко съм ограничен. Ако го армирам комина с винкели или с арматура в коминните тела не би ли трябвало да държи на трус?
Трябва ли да увелича отвора на комина от печката излиза на ф150 и след това на ф180 или ф 200

За ватата ако не е измазана между нея и коминото тяло дали ще е проблeм, от горе ще е затворено с метален капак между коминното тяло и гъвкавия димоотвод.
Дойде ми идея да я "облека" гъвкавия комин с керамична вата-60см/12.6мм(12лв/м) и след това да я обвия с алуминиево фолио дали ще е добре- целта е да се се събере гъвкавия комин в коминното тяло ако се увеличи цолажа от 150 на 180 -200

Ако направя коминното тяло без чупка над печката дали ще се събира конденза в печка, или е по добре да е с чупка над лятната кухня и там да е ревизионния отвор. Трябва ли да му слагам кондензни плочи или няма нужда.
mir4oto - специалист
Може да е по - скъпо, но като че ли най-добрият вариант за теб са готови изолирани коминни тела от неръждаема ламарина. Бързо изграждане, малка маса поради, която имат много добра трусоустойчивост и много ниско съпротивление за изходящите газове, единственият недостатък е цената. Ако имаш желание и възможности може да опиташ сам да си ги направиш.
deadman - помощник
За момента направих временно решение като включих печката в стария отвор, проблема беше че е ф130 а от печката е 150. Взех прав 1м ф 150(10лв) кривка ф150(10лв) и гофриран иноксов на 2 метра(48лв) редукторф150-ф130(5лв), кривка т образна 130 с тапа(10лв), розетка ф130(1.5лв), вата каменна на 4см 2 листа(8лв) и 2х1м кюнци на ф200 . над покрива облякох ф130-ките с вата и нахлузих ф200 отгоре след което сложих шапка (9лв) но на ф 180 че нямаше на ф200 ама ще я сменям, сложих азбестово въже за уплътнение на някой места 2 метра (2лв). Стана много добре, ще направя снимки и ще пусна да се види как е станало.
deadman - помощник
Малко късно но ето и снимката на комина
Прикачен файл:
komin1.jpg
crez - майстор
Според мен това е най-доброто решение. Стабилизираш комина за стената, стъпил в/у здрава основа. Керамични коминни тела,Ф30 и до него циментови за отдушника, отвън изолация итонг 5см. е достатъчно.
Прикачен файл:
Фасада изток.jpg
Фасада изток.jpg (106.5 KиБ) Видяна 3313 пъти
  • 1
  • 2

Тема "Преместване на парно и изграждане на комин - моля за съвет" | Включи се в дискусията:


Сподели форума:

Бъди информиран. Следвай "Направи сам" във Facebook:

Намери изпълнител и вдъхновения за дома. Следвай MaistorPlus във Facebook: