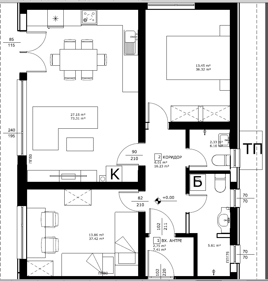
Здравейте, съфорумци! В този форум съм получил много полезни съвети и сега дойде ред да се мисли за инсталацията (тръби) за отопление на къщата (на фаза груб строеж). По принцип съм замислил къщата да е на климатици, но искам и да оставя тръби евентуално за камина на пелети с водна риза или термо помпа с конвектори. Възможно ли е да оставя тръби и за двата варианта. Местата на камината и на термпомпата съм ги отбелязал на приложения чертеж. Знам, че отоплението на климатици е компромис, но в близко бъдеще то ще ми е най - изгодно. Смятам един ден, ако реша лесно да мога да сложа радиатори (конвектори) и алтернативен източник на топлина (камина на пелети в хола или термопомпа на показаното място извън къщата. Имам няколко въпроса относно тръбите и радиаторите.
1. Да ги сложа (тръбите) върху плочата и по тях да режа фибрана под замазката или да си сложа фибрана и те да останат в замазката (така май ще се вдигне нивото много)?
2. В спалнята може ли радиатора да не под прозореца (защото ми се дава да знам, че там ще има някакъв малък скрин...)
или най - добре си е да си е под прозореца?
3. Алуминиеви или панелни радиатори?
Проблем ли е за радиаторите, че прозорците в хола и детската ще са на 62см от готовия под?
Въобще много ще се радвам на съвети от всякакво естество относно инсталацията.
1. Да ги сложа (тръбите) върху плочата и по тях да режа фибрана под замазката или да си сложа фибрана и те да останат в замазката (така май ще се вдигне нивото много)?
2. В спалнята може ли радиатора да не под прозореца (защото ми се дава да знам, че там ще има някакъв малък скрин...)
3. Алуминиеви или панелни радиатори?
Проблем ли е за радиаторите, че прозорците в хола и детската ще са на 62см от готовия под?
Въобще много ще се радвам на съвети от всякакво естество относно инсталацията.
