Здравейте, предстои ми изкраждането на локално парно и след доста четене мисля, че е време да помоля за малко помощ. Някои от нещата ми се изясниха, други станаха още по неясни. Ще ви запозная накратко с моето начинание и ще съм ви безкрайно благодарен за всякакви съвети и насоки.
Става въпрос за втори етаж от къща 77кв.м + 35кв.м пристройка към нея. Цялата къща и пристройката са с външна изолация 5см стиропор и обикновена ПВЦ дограма. Предстой изграждане на окачени тавани на всички помещения с 5см каменна вата.
Спрял съм се на отопление с едноконтурен газов котел и панелни радиатори като въпростите ми са свързани прървоначално с изграждането на самата тръбна система и мощностите на радиаторите и предполагам ще стане ясно и от какъв котел имам нужда.
Направил съм някои сметки за топлозагубите на помещенията по отделно и тук изникват и първите въпроси:
1. Ако например стая има топлозагуби 2500 вата, значи и трябва радиатор с тази мощност. При температурен режим на водата 60/40С обаче ще са нужни грубо два такива радиатора. Въпроса ми е тръбата която захранва тези радиатори трабва ли да може да пренесе 5000вата енергия или 2500 колкото е нужно на стаята?
2. Поради невъзможност да се изгради колекторна схема, ще пускам двутръбна по стените на стайте. Какви са недостатъците на тази схема спрямо колекторната, освен че се балансира по трудно и последователното затопляне на стаите от най близката към най далечната?
3. Изчисленията за топлозагубите съм ги правил по отделно за всяко помещение, така прочетох, че се смятало. По този начин обаче топлозагубите през вътрешните стени са особено големи а реално те ще са доста по малки. Ако по този начин събера мощностите на всички радиатори при 90/70/20 се получава доста сериозна мощност котел който ще ми е нужен. Тук ми се струва, че бъркам сериозно?
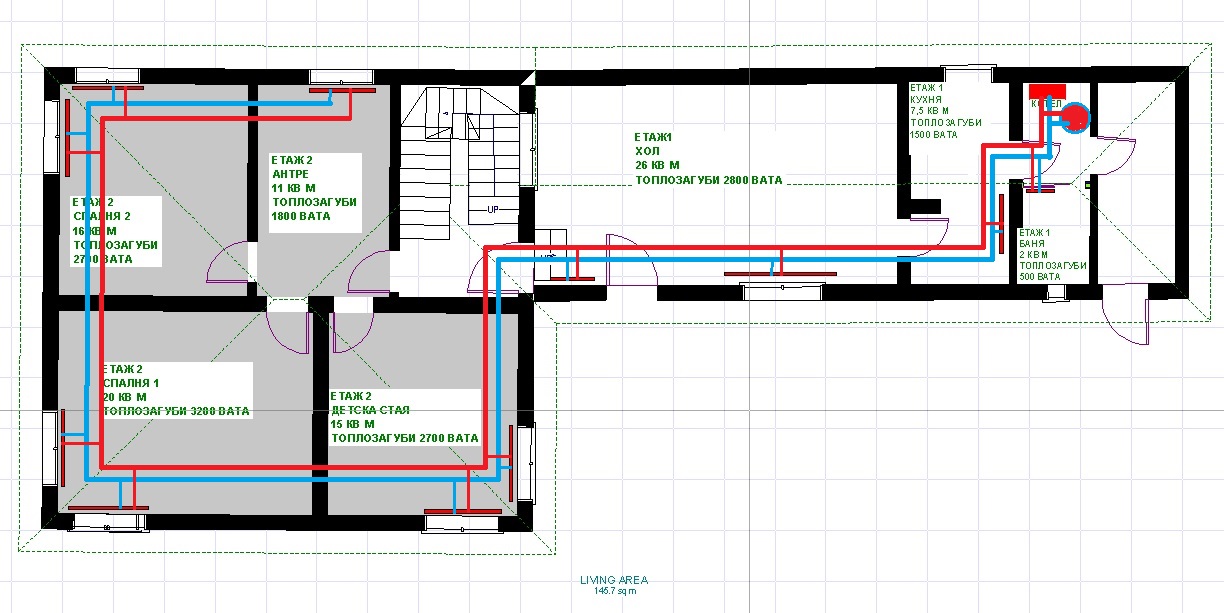
Прилагам и схема на къщата с някои данни на нея, за да добиете по добра представа с какво съм се захванал.
Приемам всякакви съвети, критики и напътствия с благодарности!
Става въпрос за втори етаж от къща 77кв.м + 35кв.м пристройка към нея. Цялата къща и пристройката са с външна изолация 5см стиропор и обикновена ПВЦ дограма. Предстой изграждане на окачени тавани на всички помещения с 5см каменна вата.
Спрял съм се на отопление с едноконтурен газов котел и панелни радиатори като въпростите ми са свързани прървоначално с изграждането на самата тръбна система и мощностите на радиаторите и предполагам ще стане ясно и от какъв котел имам нужда.
Направил съм някои сметки за топлозагубите на помещенията по отделно и тук изникват и първите въпроси:
1. Ако например стая има топлозагуби 2500 вата, значи и трябва радиатор с тази мощност. При температурен режим на водата 60/40С обаче ще са нужни грубо два такива радиатора. Въпроса ми е тръбата която захранва тези радиатори трабва ли да може да пренесе 5000вата енергия или 2500 колкото е нужно на стаята?
2. Поради невъзможност да се изгради колекторна схема, ще пускам двутръбна по стените на стайте. Какви са недостатъците на тази схема спрямо колекторната, освен че се балансира по трудно и последователното затопляне на стаите от най близката към най далечната?
3. Изчисленията за топлозагубите съм ги правил по отделно за всяко помещение, така прочетох, че се смятало. По този начин обаче топлозагубите през вътрешните стени са особено големи а реално те ще са доста по малки. Ако по този начин събера мощностите на всички радиатори при 90/70/20 се получава доста сериозна мощност котел който ще ми е нужен. Тук ми се струва, че бъркам сериозно?
Прилагам и схема на къщата с някои данни на нея, за да добиете по добра представа с какво съм се захванал.
Приемам всякакви съвети, критики и напътствия с благодарности!
