• 1
  • 15
  • 16
  • 17
  • 18
  • 19
  • 27
Всичко свързано с тоците ми е слабост, опитайте се да ме затрудните.
stedima - напреднал
все още не виждам теоретично обяснение на моте практични факти iliya_i ,формулата е от германски учебник ,но ти като гледам се учиш от българските ,сигурно имат по добри лаборатории или по добри ДТЗта,

ако не сте забелязали не се опитвам да споря ,говоря неща от моята практика,а това че някой неможе да си го обясни (не означава че не е вярно нали),свършиха теориите сигурно и започнахте с общите приказки,или се изказвайте докрай или не заблуждавайте колегите,все пак се опитваме да се осъвършенстваме в крайна сметка
nikolov333 - майстор
Формулата мисля е същата, която е в руския клип от ютуб, които пуснах..

Прикачен файл

IMG_20200211_204704.jpg
IMG_20200211_204704.jpg (75.71 KиБ) Видяна 1866 пъти

Прикачен файл

IMG_20200211_135845.jpg
Tarkalan - специалист
Здравейте на всички.
Явно дискусията се разраства😉
Първо: Благодаря на всички за коментарите.
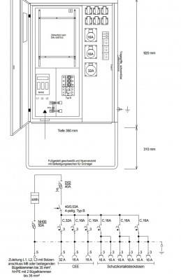
И сега ще ви покажа "изворът на вдъхновението ми" :

1. Схема на такова табло, в което се ползва 3фДТЗ за монофазни и 3фконтакти.
2. Снимка от табло, в което "рових" днес.

Прикачен файл

Screenshot_20200211_194509.jpg

Прикачен файл

Screenshot_20200211_194421.jpg
stedima - напреднал
вт фев 11, 2020 6:25 pmdrastar написа:
вт фев 11, 2020 5:43 pmnikolov333 написа:
Кое са одобрили.. Трифазна ДТЗ е за трифазни консуматори. Напълно е възможно, това да е част от обяснението на проблема в случая.
Разгледай схемата на предпоследната страница.
https://download.schneider-electric.com ... D_guide_BG

:partyman:
аз поне виждам 3фДТЗ за трифазни контакти,ако това имаш за цел
stedima - напреднал
вт фев 11, 2020 8:49 pmnikolov333 написа:
Формулата мисля е същата, която е в руския клип от ютуб, които пуснах..
имая и в германски учебник който имам но в момента за съжаление немога да снимам за да докажа
iliya_i - майстор
вт фев 11, 2020 8:43 pmstedima написа:
все още не виждам теоретично обяснение на моте практични факти iliya_i ,формулата е от германски учебник ,но ти като гледам се учиш от българските ,сигурно имат по добри лаборатории или по добри ДТЗта,
Ами аз вече ти обясних наколко пъти и ако ти имаше елементарни познания, по материята дето пишеш, щеше да схванеш. Но явно предпочиташ да си преповтаряш твоите глупости. Дадох ти и няколко материала за четене, но ти не ги погледна.
iliya_i написа:
Тези, тези или тези,
Щото явно се смяташ за връХТА на компетенцията, ама това ти самомнение е явен признак на неграмотност.
Цитат от подписа на една колежка по форум:
Ако някой действително е тъп, то това няма как да му бъде обяснено.....
Tarkalan - специалист
drastar, виж си личните, моля....
iliya_i - майстор
вт фев 11, 2020 8:49 pmnikolov333 написа:
Формулата мисля е същата, която е в руския клип от ютуб, които пуснах..
Ами тук ДТЗ няма да изключи, защото утечката е в рамките на безопасния ток…
Кое те тревожи?
Последна промяна от iliya_i на вт фев 11, 2020 9:02 pm, променено общо 1 път.
nikolov333 - майстор
Германците ми падат в очите с тези схеми, ако ги приемат за безопасни.. Даже и Руснаците са много по-напред от тях..

Последна промяна от nikolov333 на вт фев 11, 2020 9:07 pm, променено общо 1 път.
stedima - напреднал
вт фев 11, 2020 9:01 pmnikolov333 написа:
Германците ми падат в очите с тези схеми, ако ги приемат за безопасни.. Даже и Руснаците са много по-напред от тях
точно ,но и там някой проектант не си е свършил работата като тук,а по принцип нали германците учат руснаците като си презентират продуктите ,но вече от първо лице на инжинерите на фирми като ABB примерно
  • 1
  • 15
  • 16
  • 17
  • 18
  • 19
  • 27

Тема "ДТЗ не изключва" | Включи се в дискусията:


Сподели форума:

Бъди информиран. Следвай "Направи сам" във Facebook:

Намери изпълнител и вдъхновения за дома. Следвай MaistorPlus във Facebook: