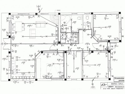
Никой не се плаши от връзки. Тези четири контакта в една рамка ще са на една стена. А другите контакти на същата стена? А на другите стени? И навсякъде нацвъкани разклонителни кутии. Определено е по-добре да имаш едно малко табло на подходящо и небиещо на очи място отколкото 5-6 дразнещи кутии на неподходящи места.
P.S. Благодаря на jekasus за уточненията. Значи съм познал за прахосмукачката.
Пък питането за ламбите в банята беше малко на майтап. Предположих че са му обърнали специално внимание и е на отделен чертеж.
P.S. Благодаря на jekasus за уточненията. Значи съм познал за прахосмукачката.

