valyodalgia написа:... щом всичко е нацвръкано от хлебарки те съветвам да го изхвърлиш защото тази гад нацвръка ли някъде яйца после трудно се отървава човек.Хигиена и препарати му е майката. То и паркета е нацвъкан
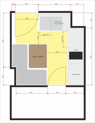
Направих и някакво предварително разпределение на кухнята...какво мислите? Има ли вариант за по добро разпределение?
П.П. Празния правоъгълник е балкон, който ще се остъкли, но ще се ползва като такъв.
