Водни помпи, хидровори, ВИК, канали зация и др.
NeLyTo - помощник
ср сеп 28, 2022 8:30 pmjekasus написа:
Лазар позна - връщане на налягането при клапан 3 в 1, дори при студен бойлер е вероятно...


Смени клапана и се оправи!
Много благодаря на всички!!!
kozl - майстор
ср сеп 28, 2022 8:25 pmkrasi92 написа:
Ако клапана си е в комплект с бойлера просто трябва да се монтира вертикално. Този тип клапани се монтират само вертикално. И кабелите да си оправи майстора
Изглежда не позна :-D
Но все пак
NeLyTo написа:
ср сеп 28, 2022 8:30 pmjekasus написа:
Лазар позна - връщане на налягането при клапан 3 в 1, дори при студен бойлер е вероятно...
Смени клапана и се оправи!
Много благодаря на всички!!!
Нели, моля покажи сменения клапан как стои. И ако може да покажеш и инструкцията за монтаж на клапана.
Рових в нета. Намерих инструкция за монтаж на подобен Аристон, но не я цитирах, защото тази инструкция ме обърка. Може би съм попаднал на неточен превод :?
Аз основно съм имал досег с бойлери Елдом. При тях в инструкцията е вписано комбинирания клапан да се монтира непосредствено на тръбата за студена вода на бойлера. Даже бойлерите под 150 литра дето купувах за лични нужди бяха с монтиран комб.клапан.

Краси защо този тип клапани трябва да се монтират вертикално. Пък и ако е 3в1 или 2в1 няма как всите клапани в комбинацията да са вертикални.
Каква е логиката за вертикално положение на клапана?
Всичките клапани в комбинирания предпазен клапан са разчетени на пружинно действие.
Гравитацията не е съществена за действието на тези клапани, така че посоката им на монтаж може да бъде не само вертикална за разлика от гравитачно действащите такива.
iliya_i - майстор
чет сеп 29, 2022 7:26 amkozl написа:
Аз основно съм имал досег с бойлери Елдом. При тях в инструкцията е вписано комбинирания клапан да се монтира непосредствено на тръбата за студена вода на бойлера. Даже бойлерите под 150 литра дето купувах за лични нужди бяха с монтиран комб.клапан.
kozl, точно във фирмения магазин на Елдом във Варна ми показаха, че техния малък бойлер под мивка са го монтирали с хоризонтален клапан. Предполагам, е монтиран от фирмения сервиз, дето е в другата врата на същата сграда. Техен (ТЕХНОСЕРВИЗ ЕЛДОМ), а не някой със сключен договор. При малките модели с изводи нагоре няма как клапана да е веднага на входа на бойлера. Монтира се преди меката връзка. Но при тях баланса беше обърнат надолу, а не както тук настрани. Аз все пак си го монтирах вертикално, с цената на по-дълга мека връзка.
kozl - майстор
А любопитен съм какво е вписано в инструкцията за бойлери с тръби отгоре?
iliya_i - майстор
чет сеп 29, 2022 9:10 amkozl написа:
А любопитен съм какво е вписано в инструкцията за бойлери с тръби отгоре?
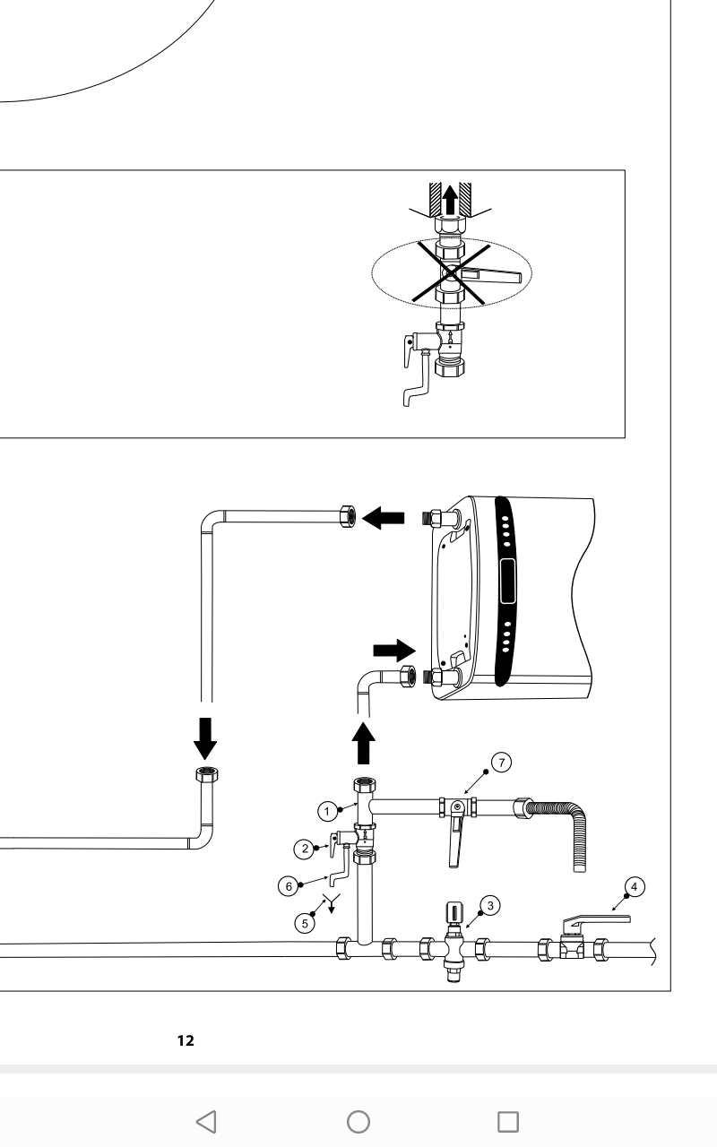
https://eldominvest.com/download/7-15_M ... -07-12.pdf
Втора страница.
kozl - майстор
На стр.2 картинки на стр.5 текста. Има съвпадение м-у текста и картинките. Даже в текста в вписано:
ЗАБРАНЕНО е монтирането на комбинирания вентил в
пространството над уреда!
То логично ако прокапе ще се се наводни корпуса.
iliya_i - майстор
Ама виж на схемата как е показано. Надолу чучурката е правилно, обратно е задраскано. За странично не казват.
И още:
При необходимост може да се изгради система за отвеждане
на евентуално прокапалата през страничния отвор на
комбинирания вентил вода. Отвеждащата водата тръба да
има постоянен наклон надолу, да е разположена в среда,
осигурена против замръзване и краищата ѝ да бъдат
постоянно свързани с атмосферата.
krasi92 - майстор
Прикачен файл:
Screenshot_20220929_170123_cn.wps.moffice_i18n.jpg
Screenshot_20220929_170123_cn.wps.moffice_i18n.jpg (100.45 KиБ) Видяна 1363 пъти
Ето
kozl - майстор
чет сеп 29, 2022 5:21 pmkrasi92 написа:
ИзображениеЕто
Това не доказва, че комбинирания клапан трябва да е обезателно вертикален. Но пък съвпада с описанието, което четох за Аристон в тази си част за тройника и изпускателния кран, но това де четох нямаше картинка.

Моето мнение е, че няма значение положението на комбинирания клапан.
Съжалявам, че не снимах една комбинация, която срещнах на немски повреден бойлер. В еднин продълговат корпус бяха "нанизани" - редуцир вентил, обратен клапан, предпазен клапан и две места за манометър със завинтени към тях тапи.
Много ме впечатли изхода на предпазния клапан. Направен със щуцер за маркуч, обаче струята прекъсната от изхода с въздух към 5 см и после към фуния, свързана с щуцера. И цялата тази фуниеста джаджа можеше да се завърта. Т.е. целия този блок може да стои и вертикално и хоризонтално и фунията да е във вертикално положение, та водата от предпазния клапан да пада в нея и от там в щуцера.
krasi92 - майстор
Вертикалният монтаж намалява вероятноста от натрупване на боклучета от самата вода. Всички от този тип се монтират вертикално за да работят правилно. Аиначе всеки може да си го монтира както иска. Някои даже го слагат изхода.

Тема "Шум като от бормашина от бойлер" | Включи се в дискусията:


Сподели форума:

Бъди информиран. Следвай "Направи сам" във Facebook:

Намери изпълнител и вдъхновения за дома. Следвай MaistorPlus във Facebook: