А бе по-добре, ама ППР, че полиетиенът се мачка от вакуума и помпата засмуква въздух от съединенията
Водни помпи, хидровори, ВИК, канали зация и др.
LazarGanev
- "Велик майстор"
46 мнения в "Казус с водна помпа"
nobreak
- специалист
- Мнения: 415
шоп написа:Не знам, не зависи ли от надморската височина? По принцип тази е с вграден ежектор, а аз изхождам от марката, че едва ли заявените параметри не отговарят:?![]()
![]()
мен са ме учили, че физически не съществува центробежна помпа, която да засмуква повече от 8 метра...
какво се е променило във физиката?
шоп
- майстор
- Мнения: 9920
Зависи, тези 8 метра са на морското равнище.
прочетох за ежектора и ми стана интересно. Със сигурност от него идва увеличената дълбочина на засмукване. Не съм се сблъсквал с помпа с вграден ежектор. Нека колеги с опит споделят.
По принцип с ежектор може и от 20-30-50 метра да се засмуче, но сериозно спада ефективността на помпата.
прочетох за ежектора и ми стана интересно. Със сигурност от него идва увеличената дълбочина на засмукване. Не съм се сблъсквал с помпа с вграден ежектор. Нека колеги с опит споделят.
По принцип с ежектор може и от 20-30-50 метра да се засмуче, но сериозно спада ефективността на помпата.
dragozow
- майстор
- Мнения: 2659
Аз продавам ежекторни, имам клиент около Ихтиман, който засмуква от 17 метра и я ползва за триетажна къща, твърди че има дебит, максималната дълбочина на помпата е 23 метра. Има загуби, такава е технологията, обезвъздушаването на системата е малко трудно първия път. В много случаи не може да се сложи сондажна. Диаметъра на самия ежектор е 98 мм.
lov
- майстор
- Мнения: 6263
шоп написа:Зависи, тези 8 метра са на морското равнище.И да се изпомпва вода от много плитко.
прочетох за ежектора и ми стана интересно. Със сигурност от него идва увеличената дълбочина на засмукване. Не съм се сблъсквал с помпа с вграден ежектор. Нека колеги с опит споделят.
По принцип с ежектор може и от 20-30-50 метра да се засмуче, но сериозно спада ефективността на помпата.

Питай бойците за плиткосмукател.

Аха намерих един
http://www.water-technic.com/ezhektor-z ... -e30-p437/
шоп
- майстор
- Мнения: 9920
@lov, аз съм в бойните смени:-)
От много време не ги ползваме плиткосмукачите, возим си ги в камионите, но не са ефективни. Подаваш им да кажем вода с дебит 500 литра/минута за да изпомпа вода с дебит 500 литра/минута. Имаме и дълбокосмукачи, те вършат работа за дълбоки кладенци. За плитко отводняване има много ефективни плаващи помпи.
Сега по темата: ежектори има много, дори и в практикер съм виждал. Но не съм виждал циркулационна помпа с ВГРАДЕН ежектор
От много време не ги ползваме плиткосмукачите, возим си ги в камионите, но не са ефективни. Подаваш им да кажем вода с дебит 500 литра/минута за да изпомпа вода с дебит 500 литра/минута. Имаме и дълбокосмукачи, те вършат работа за дълбоки кладенци. За плитко отводняване има много ефективни плаващи помпи.
Сега по темата: ежектори има много, дори и в практикер съм виждал. Но не съм виждал циркулационна помпа с ВГРАДЕН ежектор
lov
- майстор
- Мнения: 6263
Не знам на времето ми се наложи да ти викам колегите да спасявате една техника тогава го видях това за първи път. Ма си бачкаше перфектно и дет се вика и грам вода не остана.
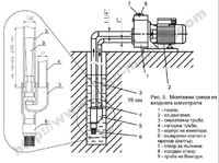
А иначе и на мен не ми е ясно как ще работи този ежектор вграден в помпата. Нали целта му е точно да промени водния стълб да не се къса и да вади от по дълбоко. А имаше един руски само засмукващи и те бяха нещо подобно като на картинката. Но това им беше единственото предимство че не се обезвъздушаваха. Има ли вода в нея тръгва. Та май ми се струва малко маркетингов трик.
А иначе и на мен не ми е ясно как ще работи този ежектор вграден в помпата. Нали целта му е точно да промени водния стълб да не се къса и да вади от по дълбоко. А имаше един руски само засмукващи и те бяха нещо подобно като на картинката. Но това им беше единственото предимство че не се обезвъздушаваха. Има ли вода в нея тръгва. Та май ми се струва малко маркетингов трик.
Последна промяна от lov на нед апр 16, 2017 11:23 pm, променено общо 1 път.
Тема "Казус с водна помпа" | Включи се в дискусията:
Сподели форума:
Бъди информиран. Следвай "Направи сам" във Facebook:
Намери изпълнител и вдъхновения за дома. Следвай MaistorPlus във Facebook:
Имаш нужда от подходящ професионалист за дома?
- Преустройство, ремонт и реновиране
- ↳ Вашите ремонти
- ↳ Кухня
- ↳ Баня
- ↳ Дневна
- ↳ Спалня
- ↳ Детска
- ↳ Градина
- ↳ Коридор
- ↳ Тераса и балкон
- Направи сам
- ↳ Направи сам
- ↳ Ремонтирай сам
- ↳ Къде е по-евтино?
- ↳ Дърводелство
- ↳ Ел. инструменти
- ↳ Металообработване
- ↳ Конкурс "Направи сам 2012"
- Строителство
- ↳ Всичко за вилата
- ↳ Къщи
- ↳ Саниране
- ↳ Хидроизолация
- ↳ Пасивни и нискоенергийни сгради
- Сухо строителство
- ↳ Окачени тавани
- ↳ Преградни стени и предстенни обшивки
- ↳ Сухи и повдигнати подове
- ↳ Декоративни елементи - колони, трегери, сводове и др.
- ↳ Всичко за гипскартона и гипсфазера
- Въпроси и Отговори
- ↳ Полезни съвети
- ↳ Автомобили
- ↳ Партньори
- ↳ Боядисване и Декориране
- ↳ Вентилация, климатици и термопомпи
- ↳ Водоснабдяване и канализация.
- ↳ Всичко за ремонта
- ↳ Електротехника
- ↳ Отопление
- ↳ Газификация
- ↳ Електроника и Схеми
- ↳ Газобетон
- ↳ От всичко по малко
- ↳ Компютри и периферия
- ↳ Уеб дизайн, PHP, MySQL, JavaScript, HTML..
- ↳ Мобилни устройства, GSM-и
- ↳ Нека се запознаем
- ↳ Recycle Bin
- Статии
- ↳ Практични решения
- ↳ Качване на снимки
- ↳ Какви статии искате?
- ↳ Готварство, туршии и зимнина
- ↳ Отмора и шеги
- ↳ От нищо нещо
- ↳ Не е за вярване
- ↳ Литература
- ↳ Връзки към Интересни сайтове
- Магазин
- ↳ Препоръки и Мнения за он-лайн магазина
- ↳ Крадeни инструменти !!!