Здравейте,
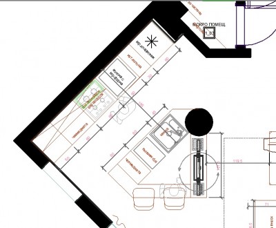
Правиме жилище и майстори в момента работят по промяна на ВиК и електро. Имам следното питане и моля за помощ: решихме да направим остров с мивка и не сме сигурни дали е възможно. Въпросът е дали може да се изкарат изводите до острова (разстоянието от стената до там, където трябва да бъде мивката е около 2 м.), като височината на замазката ще е около 10 см? Прилагам снимка както и план от архитект, така че да се добие представа за желания резултат. Много благодаря предварително за помощта
Правиме жилище и майстори в момента работят по промяна на ВиК и електро. Имам следното питане и моля за помощ: решихме да направим остров с мивка и не сме сигурни дали е възможно. Въпросът е дали може да се изкарат изводите до острова (разстоянието от стената до там, където трябва да бъде мивката е около 2 м.), като височината на замазката ще е около 10 см? Прилагам снимка както и план от архитект, така че да се добие представа за желания резултат. Много благодаря предварително за помощта