Здравейте!
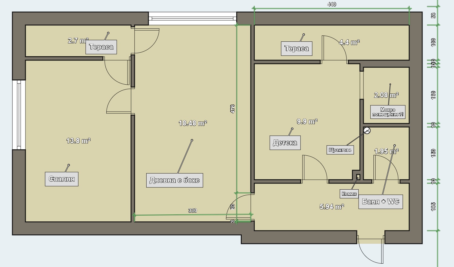
Предстои ми закупуване на апартамент, който се състои от спалня, хол + балкон (общ за хола и спалнята) и кухня + балкон. Блока е старо строителство - тухла. Апартамента е 3 ет. Идеята е апартамента да се преустрои на спалня, детска и дневна с бокс.Прилагам скица на апартамента.
Би ли могло, съществуващият хол да се преустрои на дневна с бокс, както е отбелязано на скицата?
Съществен проблем ще бъде тръбата за мръсната вода! Какво решение ще предложите?
П.С. Ако някой има предложение за друго разпределение, нека предложи!
Благодаря!
Предстои ми закупуване на апартамент, който се състои от спалня, хол + балкон (общ за хола и спалнята) и кухня + балкон. Блока е старо строителство - тухла. Апартамента е 3 ет. Идеята е апартамента да се преустрои на спалня, детска и дневна с бокс.Прилагам скица на апартамента.
Би ли могло, съществуващият хол да се преустрои на дневна с бокс, както е отбелязано на скицата?
Съществен проблем ще бъде тръбата за мръсната вода! Какво решение ще предложите?
П.С. Ако някой има предложение за друго разпределение, нека предложи!
Благодаря!
