голям труд е да си играеш да го направиш на машина
рамка с изолация, двата вентиалтора, филтри които трябва да се обслужват, (опция ПЖР на смесителната секция + пресосастати зада може да се не обледява), автоматики и т.н.
но и самия рекууператор ще ти е сякъш малък.
100м2 жилище, предполагам има поне 3 стаи, във всяка стая трябва различко количество въздух, вентилаторите 7ци нямат кой знае колко налягане, ще трябва да направиш по големи въздуховоди зада може да ги оползотвориш, или да сложиш по мощни вентилатори, но тогава шума ще е невероятен. то не че и със 7ците ще е по малко дразнещ.
препоръчително е да имаш тераса където да го монтираш.
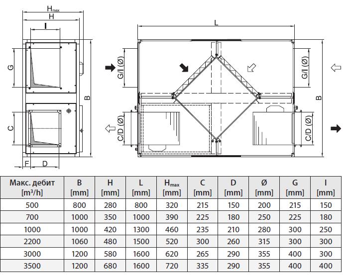
слагам снимка на това както представлява машината като чертеж
за твоя рек. първия ред гледаш.
ако има нещо пиши на лс

rek.JPG (70.8 KиБ) Видяна 3461 пъти
рамка с изолация, двата вентиалтора, филтри които трябва да се обслужват, (опция ПЖР на смесителната секция + пресосастати зада може да се не обледява), автоматики и т.н.
но и самия рекууператор ще ти е сякъш малък.
100м2 жилище, предполагам има поне 3 стаи, във всяка стая трябва различко количество въздух, вентилаторите 7ци нямат кой знае колко налягане, ще трябва да направиш по големи въздуховоди зада може да ги оползотвориш, или да сложиш по мощни вентилатори, но тогава шума ще е невероятен. то не че и със 7ците ще е по малко дразнещ.
препоръчително е да имаш тераса където да го монтираш.
слагам снимка на това както представлява машината като чертеж
за твоя рек. първия ред гледаш.
ако има нещо пиши на лс
Прикачен файл:
rek.JPG (70.8 KиБ) Видяна 3461 пъти