Здравейте,
Сам се занимавам с проектирането и изграждането на автоматична поливна система вкъщи и ще съм благодарен, ако някой по-опитен може да коментира идеята ми, за да не допусна някаква детинска грешка. За референция съм ползвал статии от сайта http://www.water4irrigation.com/, но най-вече тази и други подобни теми във форума, които бяха много полезни!
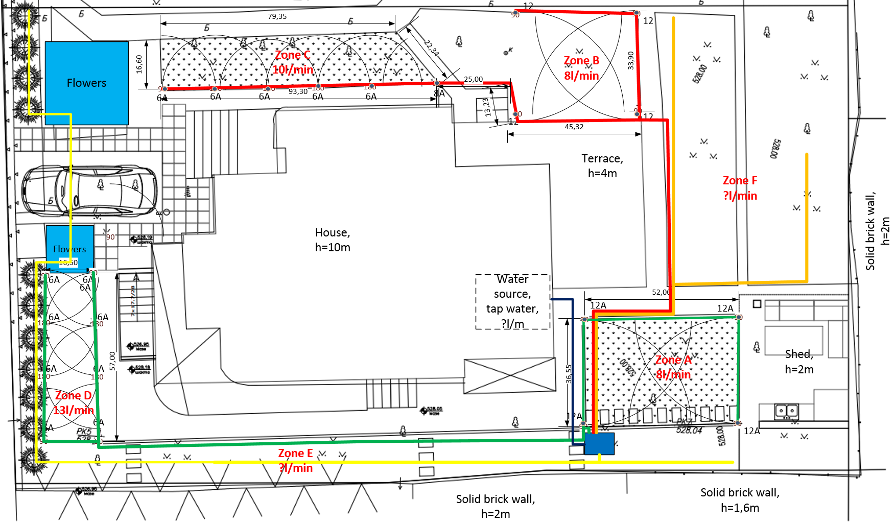
Дворът обикаля къщата от вскички страни и се обособяват 4 (за сега) зони с тревно покритие, които ще се поливат с пръскачи - зони А,B,C и D на схемата, и две зони с капково напояване - зони E и F. На този етап ще се изпълняват само зони А и може би B за пръскачки. Другите зони ще се изпълняват по-късно тази година или в бъдеще.
Ще се полива от водопровода(тъмно син на четежа), нощем и само един клон в даден момент. Разделил съм зоните в 4 клона(зелен, червен, жълт и оранжев), които смятам да управлявам с клапани в шахта (тъмно синя на чертежа) - 2 клона с пръскачи(зелен, червен) и 2 с капково напояване(жълт, оранжев), понеже разбирам че не може да има смесено напояване в един и същи клон. За разпръсквачи съм предвидил Hunter PROS-04 с дюзи 12А за квдратните(А,B) и 6А за правоъгълните зони(C,D). Ето описание на зоните, дюзите и сметнатата консумацията на вода от всеки клон зона при налягане 1.5-2 бара.
Клон; Дебит на клон, l/m; Зона; Дебит на зонa, l/m; Разпръсквачи; Дюзи; Брой;
Зелен (A+D), юг, трева; 21; А; 8; PROS-04; 12А; 4;
Зелен (A+D), юг, трева; 21; D; 13; PROS-04; 6А; 8;
Червен( B+C), север, трева; 18; B; 8; PROS-04; 12А; 4;
Червен( B+C), север, трева; 18; C; 10; PROS-04; 6А; 6;
Жълт(Е), Ю/З, малини, овошки, туи, цветя; ?; Е; ?; Капково;
Оранжев(F), И, домати, краставици, пипер; ?; F; ?; Капково;
Не съм замервал налягане и дебит на водопровода, но предполагам, че ще е поне 1.5-2 бара и поне 20-25 l/min ( днес ще измеря дебита). Подземните тръби ще са HDPE PM10 ф25мм, като вече имам 100м ролка, за да полагам част от тръбите, понеже двора е разкопан за редене на тротоарни плочи. За шахта съм се спрял на 20" Jumbo на Rain S.p.a., където мисля да има 4 пътен 1" колектор за клапани с клапани Hunter 1" 24V AC. До шахтата има PPE Ф32 и 8х0.75кв. мм кабел от мазето, където ще има контролер, който още не съм избрал. Планирам след всеки AC клапан да има тройник с дренажен клапан, за отичане на водата от системата. Пръскачите ще се свързват с колена 1/2" Hunter HSBE-050 към PE Flex Ф16 тръба, отново същото коляно и водовземни скоби 1/2" към Ф25. Дюзите са регилиращи се и са избрани една идея по-големи от необходимите, за да се регулират и обхванат цялата площ.
Зоните А и D са с южно изложение, както е отбелязано на чережа и в момента не са затревени, докато зоните B и C са от северната страна на къщата, затревени са и са почти винаги в сянка от къщата или дръветата, особено зона C. Затова в зона C предвиждам разпръсквачи само от едната страна. От другата страна има бетонна пътека.
Освен коментари за проекта като цяло, ще съм благодарен, ако някой може да отговори и на следните въпроси:
1. Добре ли са разпределени зоните за пръскачки спрямо клоновете за поливане или всяка зона трябва да е на отделен клон? Например на зеления клон имам 12 - 8х6А+4х12А.
2. Как да завърша тръбите за зоните, които няма да се изпълнпват сега? Достатъчно ли е да сложа тапа на HDPE тръбите, понеже те няма да са прекарани изцяло, и след това там да сложа муфа, която да заровя и да продължа тръбата към пръскачите?
3. Каква е разликата между 24V AC клапани и 9V DC клапани, освен, че последните могат да се управляват с батерия? Разликата в цената е почти двойна.
4. Има ли смисъл да взимам решетка за закрепване на колектора и клапаните в шахтата?
5. Колко дълбок дренажен слой да има под/в шахтата и от какво да е съставен - пясък, чакъл, дребен камък, едър камък?
6. При полагането на HDPE тръбите в почвата, има ли някакво по-специално изискване към дълбочината на изкопа и леглото на тръбата - пясък, глина?
7. Дренажния клапан за всеки клон добре ли е да остане в шахтата или трябва да се изнесе извън нея?
8. Ф16 тръбите за мека в комбинация с коничните колена и водовземните скоби добро решение ли са?
9. Къде да предвидя кранове за източване и т.н.?
10. Калчища или тефлонова лента да ползвам за всичките фитинги в шахтата и извън нея?
11. Сензорите за дъжд съвметими ли са със всички контролери или трябва да са Hunter сензор с Hunter контролер и т.н.?
12. Някакви препоръки за Smart контролер, който да може да се управлява и да дава информация през WiFi?
Благодаря!
Сам се занимавам с проектирането и изграждането на автоматична поливна система вкъщи и ще съм благодарен, ако някой по-опитен може да коментира идеята ми, за да не допусна някаква детинска грешка. За референция съм ползвал статии от сайта http://www.water4irrigation.com/, но най-вече тази и други подобни теми във форума, които бяха много полезни!
Дворът обикаля къщата от вскички страни и се обособяват 4 (за сега) зони с тревно покритие, които ще се поливат с пръскачи - зони А,B,C и D на схемата, и две зони с капково напояване - зони E и F. На този етап ще се изпълняват само зони А и може би B за пръскачки. Другите зони ще се изпълняват по-късно тази година или в бъдеще.
Ще се полива от водопровода(тъмно син на четежа), нощем и само един клон в даден момент. Разделил съм зоните в 4 клона(зелен, червен, жълт и оранжев), които смятам да управлявам с клапани в шахта (тъмно синя на чертежа) - 2 клона с пръскачи(зелен, червен) и 2 с капково напояване(жълт, оранжев), понеже разбирам че не може да има смесено напояване в един и същи клон. За разпръсквачи съм предвидил Hunter PROS-04 с дюзи 12А за квдратните(А,B) и 6А за правоъгълните зони(C,D). Ето описание на зоните, дюзите и сметнатата консумацията на вода от всеки клон зона при налягане 1.5-2 бара.
Клон; Дебит на клон, l/m; Зона; Дебит на зонa, l/m; Разпръсквачи; Дюзи; Брой;
Зелен (A+D), юг, трева; 21; А; 8; PROS-04; 12А; 4;
Зелен (A+D), юг, трева; 21; D; 13; PROS-04; 6А; 8;
Червен( B+C), север, трева; 18; B; 8; PROS-04; 12А; 4;
Червен( B+C), север, трева; 18; C; 10; PROS-04; 6А; 6;
Жълт(Е), Ю/З, малини, овошки, туи, цветя; ?; Е; ?; Капково;
Оранжев(F), И, домати, краставици, пипер; ?; F; ?; Капково;
Не съм замервал налягане и дебит на водопровода, но предполагам, че ще е поне 1.5-2 бара и поне 20-25 l/min ( днес ще измеря дебита). Подземните тръби ще са HDPE PM10 ф25мм, като вече имам 100м ролка, за да полагам част от тръбите, понеже двора е разкопан за редене на тротоарни плочи. За шахта съм се спрял на 20" Jumbo на Rain S.p.a., където мисля да има 4 пътен 1" колектор за клапани с клапани Hunter 1" 24V AC. До шахтата има PPE Ф32 и 8х0.75кв. мм кабел от мазето, където ще има контролер, който още не съм избрал. Планирам след всеки AC клапан да има тройник с дренажен клапан, за отичане на водата от системата. Пръскачите ще се свързват с колена 1/2" Hunter HSBE-050 към PE Flex Ф16 тръба, отново същото коляно и водовземни скоби 1/2" към Ф25. Дюзите са регилиращи се и са избрани една идея по-големи от необходимите, за да се регулират и обхванат цялата площ.
Зоните А и D са с южно изложение, както е отбелязано на чережа и в момента не са затревени, докато зоните B и C са от северната страна на къщата, затревени са и са почти винаги в сянка от къщата или дръветата, особено зона C. Затова в зона C предвиждам разпръсквачи само от едната страна. От другата страна има бетонна пътека.
Освен коментари за проекта като цяло, ще съм благодарен, ако някой може да отговори и на следните въпроси:
1. Добре ли са разпределени зоните за пръскачки спрямо клоновете за поливане или всяка зона трябва да е на отделен клон? Например на зеления клон имам 12 - 8х6А+4х12А.
2. Как да завърша тръбите за зоните, които няма да се изпълнпват сега? Достатъчно ли е да сложа тапа на HDPE тръбите, понеже те няма да са прекарани изцяло, и след това там да сложа муфа, която да заровя и да продължа тръбата към пръскачите?
3. Каква е разликата между 24V AC клапани и 9V DC клапани, освен, че последните могат да се управляват с батерия? Разликата в цената е почти двойна.
4. Има ли смисъл да взимам решетка за закрепване на колектора и клапаните в шахтата?
5. Колко дълбок дренажен слой да има под/в шахтата и от какво да е съставен - пясък, чакъл, дребен камък, едър камък?
6. При полагането на HDPE тръбите в почвата, има ли някакво по-специално изискване към дълбочината на изкопа и леглото на тръбата - пясък, глина?
7. Дренажния клапан за всеки клон добре ли е да остане в шахтата или трябва да се изнесе извън нея?
8. Ф16 тръбите за мека в комбинация с коничните колена и водовземните скоби добро решение ли са?
9. Къде да предвидя кранове за източване и т.н.?
10. Калчища или тефлонова лента да ползвам за всичките фитинги в шахтата и извън нея?
11. Сензорите за дъжд съвметими ли са със всички контролери или трябва да са Hunter сензор с Hunter контролер и т.н.?
12. Някакви препоръки за Smart контролер, който да може да се управлява и да дава информация през WiFi?
Благодаря!