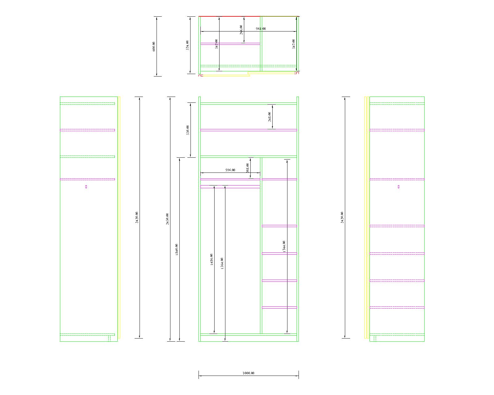
Здравейте решил съм да си правя два гардероба (за спалня и антре) с плъзгащи врати. Направил съм си чертежи на аутокад и съм извадил от тях необходимите плоскости и къде да се кантират. Спрял съм се на този механизъм : https://balkanyug.bg/bg/Wardrobe-slidin ... MPV-04-new Решил съм да е с горно водене и респективно вратите да са отпред. Въпросите ми са:
1. Необходимо ли е гардероба да има крачета и ако да какви да използвам или може и без тях? Мога да кажа че пода на спалнята е ламината а на антрето плочки.
2.Сглобките с конфирмат или обикновена видя да ги правя като смятам и да има такива с минификс?
Предвидил съм да си взема и ъглова стяга, фрезери за отвори, свредло с фрезенк и шаблон за отвори.
Благодаря предварително прилагам и двата чертежа на гардеробите:
Garderob Antre-Model.jpg (102.35 KиБ) Видяна 5727 пъти
1. Необходимо ли е гардероба да има крачета и ако да какви да използвам или може и без тях? Мога да кажа че пода на спалнята е ламината а на антрето плочки.
2.Сглобките с конфирмат или обикновена видя да ги правя като смятам и да има такива с минификс?
Предвидил съм да си взема и ъглова стяга, фрезери за отвори, свредло с фрезенк и шаблон за отвори.
Благодаря предварително прилагам и двата чертежа на гардеробите:
Прикачен файл:
Garderob Antre-Model.jpg (102.35 KиБ) Видяна 5727 пъти