Здравейте,
Планирам ремонт на банята ми, за което съм прикачил схема. Банята е в панелка.
От двете страни на шахтата с щранговете има две по-малки шахти по около 30см широки, които предполагам, че са оставени за вентилация (не съм наясно защо са 2?). През лявата шахта в момента минават тръбите за душа, а в дясната не минава нищо до колкото мога да видя през отвора оставен за вентилатора.
Иска ми се да сложа моноблока в засека до вратата с ширина 57 см. Проблем ли е каналната тръба ф110 да мине през дясната шахта, за да се свърже към щранга? В момента мивката и моноблокът са на стената с рамер 118, където са щранговете.
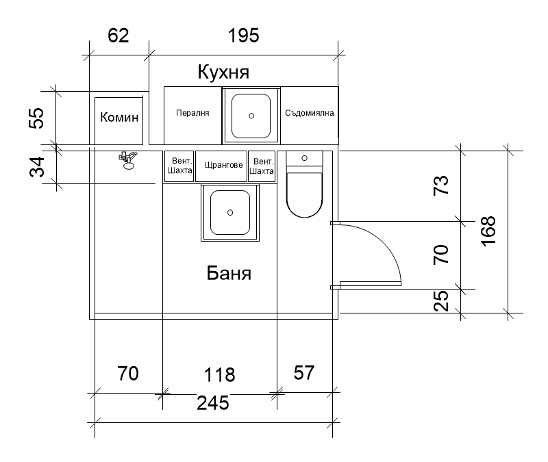
Планирам ремонт на банята ми, за което съм прикачил схема. Банята е в панелка.
От двете страни на шахтата с щранговете има две по-малки шахти по около 30см широки, които предполагам, че са оставени за вентилация (не съм наясно защо са 2?). През лявата шахта в момента минават тръбите за душа, а в дясната не минава нищо до колкото мога да видя през отвора оставен за вентилатора.
Иска ми се да сложа моноблока в засека до вратата с ширина 57 см. Проблем ли е каналната тръба ф110 да мине през дясната шахта, за да се свърже към щранга? В момента мивката и моноблокът са на стената с рамер 118, където са щранговете.
Прикачен файл
bathroom.png (29.65 KиБ) Видяна 3056 пъти
