ето и нещо българско
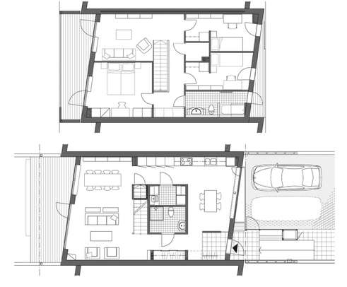
за съжаление твърде малки дворчетата изглеждат, Явно целта е била парцела да се използва на макс, обаче са се получили едни многоетажни тясни къщи с около 20-30 кв. дворче
Прикачен файл
add02_property00000119.jpg (34.58 KиБ) Видяна 1912 пъти
Прикачен файл
2513787.jpg (100.52 KиБ) Видяна 1912 пъти
Прикачен файл
img_property00000119.jpg (9.43 KиБ) Видяна 1912 пъти
