Всичко зависи от ПУП-а който имаш за района.
Аз имах друг проблем, лицето на къщата което гледа към оградата на комшията е на 3 метра отстояние, но не може да е повече от 16метра дължина.
за изолация не се изхвърляй толкова, в изкопа заложи на хубаво хидро, и 5 или 8 XPS, а XPS лепи много добре към битумна изолация без посипка. Аз лично сложих 3мм SBS и с лек пламък от отгоре му, колкото да отпусне битума и притискаш XPSа, механична защита нямам, защото за обратния насип си ползвах пръста която изкопах.
Топлоизолацията на къщата - има си пределна норма, например каменна вата максимум 120мм; След 120мм се обезмисля, защото няма проникване. Въпроса е да сложиш точния размер дебелина от правилната изолация и да е наредена така, че да няма фуги. По добре две по 60мм EPS на размината фуга, отколкото 200мм плочи.
Покривната площ задължително изолация; обикновено на стена 120мм, на покрив 200мм; и вече зависи от покривът, ако е плосък слагаш 2х100мм на размината фуга; ако е скатен - слагаш по ската и на плочата(ако имаш плоча)
и забрави за тези XPS изолации по покривът, най добре вата (каменна или стъклена) защото през нея може да диша.
Предимства, недостатъци, цени, материали, планове, пасивни къщи и т.н.
VLADO66
- майстор
321 мнения в "Строителство на къща - стъпка по стъпка"
nikopld
- помощник
- Мнения: 14
VLADO66 написа:Вътрешната врата в коридора я махни/стават там много врати и се карат/ и външната да се отваря навътре.
Тая врата сигурно я е сложил за ветробран, ама няма смисъл да е двойна като преди нея е единична - дивана като заклини на първата втората и 10 метра да е файдата никваВътрешната врата не е излишна.Тя разделя помещението на 2 и така се получава като топла връзка (като входните врати по големите магазини .От друга страна vlado66 е прав,много врати една до друга почват да се карат .Tsilkov също е прав.Аз бих е направил 2-на хармоника и да се отваря към към входната врата и лятно време да е отворена ,а зимата да се затваря.
За банята 6+ предверието(При мен е така проектирано и така изпълнено,в момента само на конструкция за ГК).За кухнята махни бар плота ,някак прегражда помещението.В началото е хубаво,но сега жена ми иска в апартамента да го махам...защо ли
Ще следя с интерс - нали всеки луд бил с номера си ако бях аз тая стена м/у кухнята/трапезарията и дневната я махам от разтрудно за отопление...и двете помещения са достатъчно големи и спокойно може да посреща гости и във всекидневната(например).
За строителите които ще работят е въпрос на лична преценка дали имаш време да им доставяш ти материалите или не.При мен какво се получи лятото....На работа от 7.30 до 18.00..няма време за материали да купувам,но пък има телефони...казват ми какво им трябва за другия ден,звъня и склада ги доставя на адреса.Първоначално работеха 3 човека на обекта но работат зацикли в определен момент.Обадих се на приятел от Асеновград ,дойде с още 2 и за месец всичко си бе на мястото.Работеше само 4 месеца от юни до септември и грубия стоеж на 120квм къща завърши.Така че всичко е относително,дали ще е на квадрат ,на надница и на какво ли още не.Да не забравяме и факта че има и маистори и майстори.И пусни някоя снимка и ако може в кое село е парцела,сега имам малко време и може да намина било за идеи или съвети
muhtarov
- специалист
- Мнения: 103
nikopld написа:Малко странно звучи това трудно е за отопление, така или иначе и на двете помещения ще трябва отоплително/охладително тяло; и на двете помещения ще се прави настилка, и на двете помещения ще се прави осветление, ... какво има едното помещение в повече което другото го няма и може да се спести ?!Ще следя с интерс - нали всеки луд бил с номера си ако бях аз тая стена м/у кухнята/трапезарията и дневната я махам от разтрудно за отопление...и двете помещения са достатъчно големи и спокойно може да посреща гости и във всекидневната(например).
За строителите които ще работят е въпрос на лична преценка дали имаш време да им доставяш ти материалите или не.При мен какво се получи лятото....На работа от 7.30 до 18.00..няма време за материали да купувам,но пък има телефони...казват ми какво им трябва за другия ден,звъня и склада ги доставя на адреса.Първоначално работеха 3 човека на обекта но работат зацикли в определен момент.Обадих се на приятел от Асеновград ,дойде с още 2 и за месец всичко си бе на мястото.Работеше само 4 месеца от юни до септември и грубия стоеж на 120квм къща завърши.Така че всичко е относително,дали ще е на квадрат ,на надница и на какво ли още не.Да не забравяме и факта че има и маистори и майстори.И пусни някоя снимка и ако може в кое село е парцела,сега имам малко време и може да намина било за идеи или съвети
Не е ли по добре да има поне проход, и ест да е широк; Така или иначе дневната е мястото където се прекарва почти целия ден и семейство, деца и т.н. щъкат наляво и надясно.
Понеже съм живял с широко помещение и имам практически опит; определено е по добре.
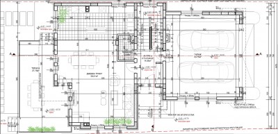
пускам ви картинка и на това което сега правя.
muhtarov
- специалист
- Мнения: 103
Tsilkov написа:muhtarov читаво ти е станало разпределението само кажи на проектанта ти да вземе да махне тия два прозореца зад телевизораПрозорците не ги чети, дограмата е пълна промяна. Само разпределението се гледа тука![]()
. Визията не знам как ти е отвън но тия прозорци широки 70 см са малко непрактични за дневна - много пари за профили и малко светлина.
За жалост тия двата малките, не мога да ги обединя е един защото ги разделя колона; иначе не знам къде ми бъркат
като направя зидовете, ще кача снимки
Tsilkov
- майстор
- Мнения: 2175
На мен мисълта ми беше тия зад телевизора да ги зазидаш направо защото от една страна ще советяваш гърба на ТВ-то безмислено, от друга ще ти пече в очите като го гледаш денем, а вечер ще гледаш джам зад ТВ
Иначе там където ти идват на колона ги махаш и слагаш на друго място/прибавяш към друг прозорец.
muhtarov
- специалист
- Мнения: 103
Tsilkov написа:На мен мисълта ми беше тия зад телевизора да ги зазидаш направо защото от една страна ще советяваш гърба на ТВ-то безмислено, от друга ще ти пече в очите като го гледаш денем, а вечер ще гледаш джам зад ТВИма си пердета за тая работаИначе там където ти идват на колона ги махаш и слагаш на друго място/прибавяш към друг прозорец.
boqnkov
- специалист
- Мнения: 402
Какво ви е мнението за този производител относно тухли и керемиди? Някой строил ли е с тях? Разбрах, че цената им била наполовина на поротерма.
http://www.mladost.co.rs/bug/index_bg.html
http://www.mladost.co.rs/bug/index_bg.html
boqnkov
- специалист
- Мнения: 402
Ето малко добавки към списъка с цените:
имот: ..........лв. (не пиша сумата нарочно)
такси при нотариус: 500 лв.
регистрация на нов собственик за имот и скица от агенция по кадастър: 60 лв.
регистрация на нов собственик на имот в текущата община (за данък на имота): 20 лв.
издаване на виза за проектиране за жилищна сграда (нужна за проекта на къщата): 50 лв.
издаване на предварителен договор от т.нар. Енерго (нужен за проекта на къщата): 100 лв.
издаване на предварителен договор от ВиК (нужен за проекта на къщата): 50 лв.
проект на къщата: .......лв. (отново не пиша сумата, защото е много относително).... да речем: 2500 лв.
разглеждане в общината, одобрение на проект и издаване на разрешение за строеж: 350 лв.
такса присъединяване ВиК: 90 лв.
такса СМР ВиК (без материалите): 130 лв.
такса присъединяване EVN ( с реализация табло и електромер пред имота) :700 лв.
Моля за мнения относно керемиди и тухли Младост.
имот: ..........лв. (не пиша сумата нарочно)
такси при нотариус: 500 лв.
регистрация на нов собственик за имот и скица от агенция по кадастър: 60 лв.
регистрация на нов собственик на имот в текущата община (за данък на имота): 20 лв.
издаване на виза за проектиране за жилищна сграда (нужна за проекта на къщата): 50 лв.
издаване на предварителен договор от т.нар. Енерго (нужен за проекта на къщата): 100 лв.
издаване на предварителен договор от ВиК (нужен за проекта на къщата): 50 лв.
проект на къщата: .......лв. (отново не пиша сумата, защото е много относително).... да речем: 2500 лв.
разглеждане в общината, одобрение на проект и издаване на разрешение за строеж: 350 лв.
такса присъединяване ВиК: 90 лв.
такса СМР ВиК (без материалите): 130 лв.
такса присъединяване EVN ( с реализация табло и електромер пред имота) :700 лв.
Моля за мнения относно керемиди и тухли Младост.
Тема "Строителство на къща - стъпка по стъпка" | Включи се в дискусията:
Сподели форума:
Бъди информиран. Следвай "Направи сам" във Facebook:
Намери изпълнител и вдъхновения за дома. Следвай MaistorPlus във Facebook:
Имаш нужда от подходящ професионалист за дома?
- Преустройство, ремонт и реновиране
- ↳ Вашите ремонти
- ↳ Кухня
- ↳ Баня
- ↳ Дневна
- ↳ Спалня
- ↳ Детска
- ↳ Градина
- ↳ Коридор
- ↳ Тераса и балкон
- Направи сам
- ↳ Направи сам
- ↳ Ремонтирай сам
- ↳ Къде е по-евтино?
- ↳ Дърводелство
- ↳ Ел. инструменти
- ↳ Металообработване
- ↳ Конкурс "Направи сам 2012"
- Строителство
- ↳ Всичко за вилата
- ↳ Къщи
- ↳ Саниране
- ↳ Хидроизолация
- ↳ Пасивни и нискоенергийни сгради
- Сухо строителство
- ↳ Окачени тавани
- ↳ Преградни стени и предстенни обшивки
- ↳ Сухи и повдигнати подове
- ↳ Декоративни елементи - колони, трегери, сводове и др.
- ↳ Всичко за гипскартона и гипсфазера
- Въпроси и Отговори
- ↳ Полезни съвети
- ↳ Автомобили
- ↳ Партньори
- ↳ Боядисване и Декориране
- ↳ Вентилация, климатици и термопомпи
- ↳ Водоснабдяване и канализация.
- ↳ Всичко за ремонта
- ↳ Електротехника
- ↳ Отопление
- ↳ Газификация
- ↳ Електроника и Схеми
- ↳ Газобетон
- ↳ От всичко по малко
- ↳ Компютри и периферия
- ↳ Уеб дизайн, PHP, MySQL, JavaScript, HTML..
- ↳ Мобилни устройства, GSM-и
- ↳ Нека се запознаем
- ↳ Recycle Bin
- Статии
- ↳ Практични решения
- ↳ Качване на снимки
- ↳ Какви статии искате?
- ↳ Готварство, туршии и зимнина
- ↳ Отмора и шеги
- ↳ От нищо нещо
- ↳ Не е за вярване
- ↳ Литература
- ↳ Връзки към Интересни сайтове
- Магазин
- ↳ Препоръки и Мнения за он-лайн магазина
- ↳ Крадeни инструменти !!!
