@nelina_london - ще пробвам утре да свалят цената на 45 лв/ м2, пък каквото стане 
Сега се усещам, че до голяма степен съм подвела момчетата тук, т.к. не уточних, че къщата е с равен бетонов покрив.
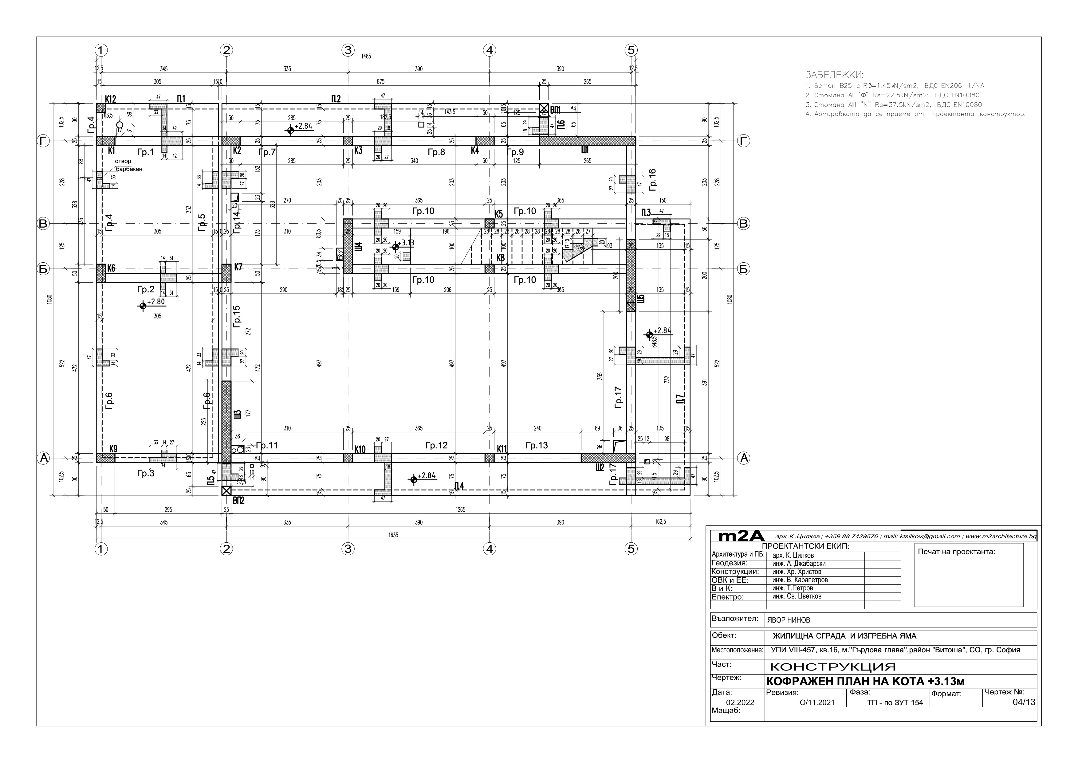
Пускам няколко снимки от конструкцията, въпреки, че точно файла с фундаментите не дава да се прикачи, голям бил…
Офф: трябва да намеря време и да си направя рема за всичките казуси и перипетии покрай тая къща
Сега се усещам, че до голяма степен съм подвела момчетата тук, т.к. не уточних, че къщата е с равен бетонов покрив.
Пускам няколко снимки от конструкцията, въпреки, че точно файла с фундаментите не дава да се прикачи, голям бил…
Офф: трябва да намеря време и да си направя рема за всичките казуси и перипетии покрай тая къща
