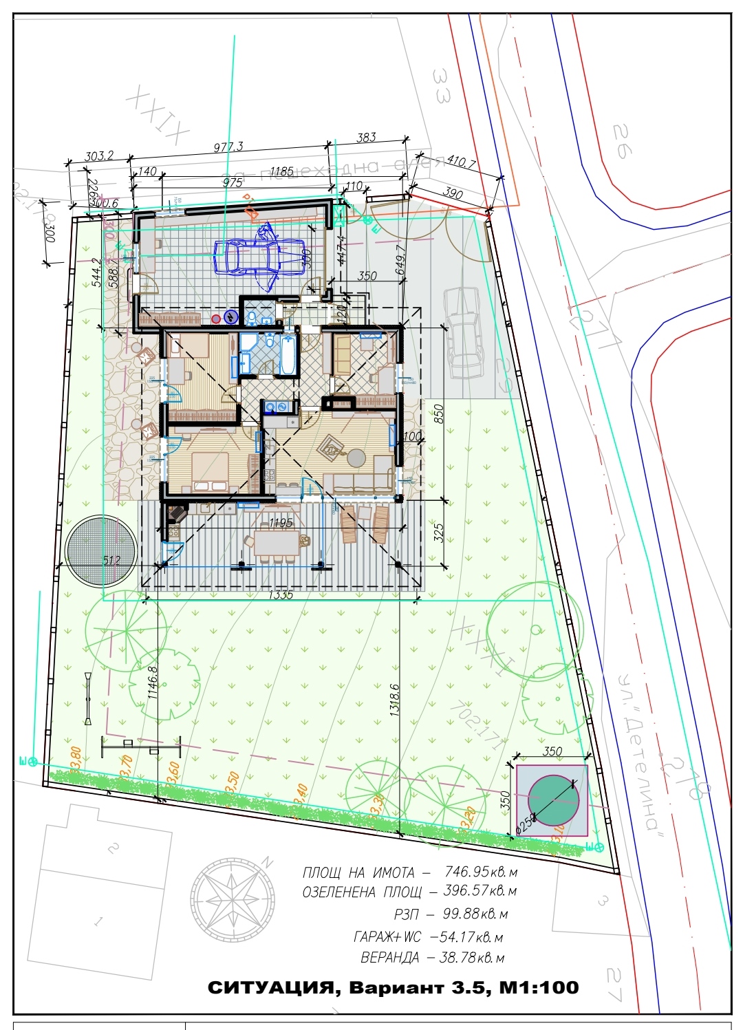
Да имам го предвид и току що се връщам от оглед на място с архитекта за да го коментираме.. Реално пътя и парцела преди мен ще ги насипвам още, за да е плавен захода към входа и тези -65 ще ги намаля до около -30/35 на 3м пред входа, така че да елиминирам риска от пързалката..Реално мога да сваля само нивото на гаража, но не ми се ще заради внасянето на градински инвентар от към горния край на двора и не е удобно да има стъпало от там..
Примерно така дали става или да сваля нивото на къщата с още 10см, понеже колкото я свалям може да спестя и от основите, ако не забия на високи подпочвени нива на водата, но до тях имам повече от 1,2м....?
Примерно така дали става или да сваля нивото на къщата с още 10см, понеже колкото я свалям може да спестя и от основите, ако не забия на високи подпочвени нива на водата, но до тях имам повече от 1,2м....?
