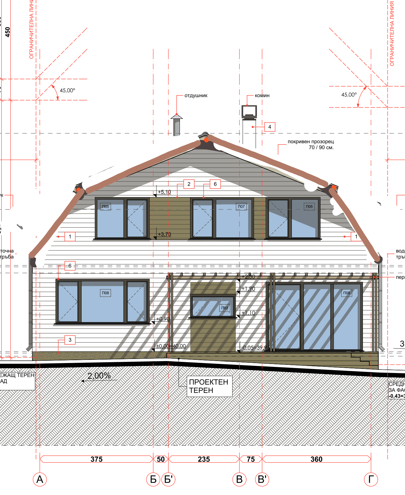
Tsilkov написа: По ЗУТ нищо не пише за 1,50 м надзид.Вероятно се има предвид Наредба 7 към ЗУТ, чл.72(3):
"Жилищните помещения във вилни сгради и в подпокривното пространство на
жилищни сгради трябва да имат светла височина най-малко 2,30 м в 50 на сто
от площта им и най-малко 1,50 м в най-ниската им част."
