• 1
  • 4
  • 5
  • 6
  • 7
  • 8
  • 21
Предимства, недостатъци, цени, материали, планове, пасивни къщи и т.н.
BLUEPUPIL - майстор
1.5.3.2 Приложение на изливни и набивни пилоти за къщи.
Прикачен файл:
1.jpg
Прикачен файл:
2.jpg
2.jpg (112.39 KиБ) Видяна 3893 пъти
Прикачен файл:
3.jpg
Прикачен файл:
4.jpg
BLUEPUPIL - майстор
Прикачен файл:
5.jpg
5.jpg (69.96 KиБ) Видяна 3892 пъти
Прикачен файл:
6.jpg
6.jpg (69.12 KиБ) Видяна 3892 пъти
Прикачен файл:
7.jpg
Прикачен файл:
8.jpg
BLUEPUPIL - майстор
По-горе разгледахме бегло дълбоките фундаменти, с цел да мотивираме и вдъхнем кураж на всички онези, които ще си правят къща. И да ги накараме да повярват, че щом някъде се правят основи, които могат да носят милиони тонове, то съвсем скромната задача, да издумкаш основи, които да носят товар в диапазона 100-500тона си е направо смешна...Следва-"Плоско Фундиране".
Прикачен файл:
DEEP FOUNDATIONS- END.jpg
KingLin - майстор
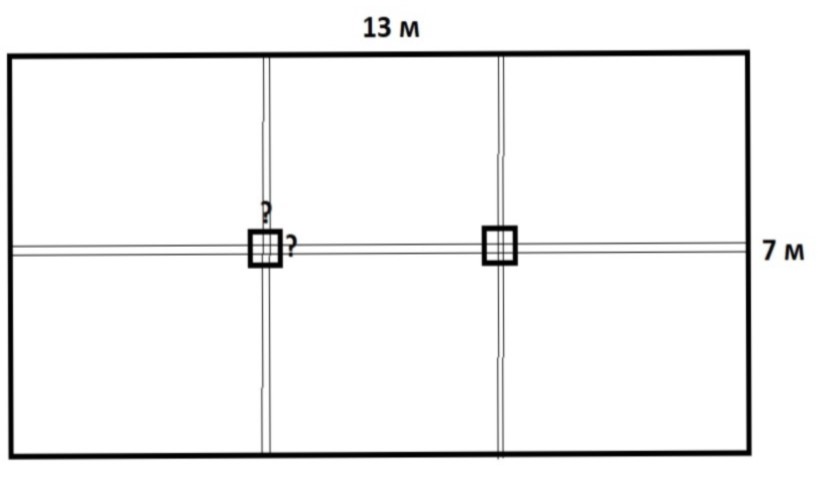
Искам да направя плоча над празно пространство която ще се явява основата за гараж за две коли и натурии покрай тях. Плочата ще е с размер 13 на 7 метра. Помещението под нея (2.50 височина) ще има 1 дълга и две къси стени от бетон а четвъртата стена ще се явява основа на къща. Въпросът ми е каква да бъде армировката и дебелината за такава плоча и дали 2 колони (какви) ще са достатъчни за подпиране?
Аз на база четене на форуми, гледане на живо, предчувствия и т.н. неща без знания смятам да бъде с дебелина 20 см. с двойна скара с клетки 20х20 арматура фи10, като над колоните ще пусна скрити греди с фи20 - две по късата страна и една по дългата. Прав ли съм или се презапасявам излишно?

Прикачен файл

Untitled.jpg
Untitled.jpg (23.14 KиБ) Видяна 3542 пъти
BLUEPUPIL-2 - специалист
Сега, пак ще ми се карат, че насърчавам стр. без конструктивен проект. Аз обаче, имам следната почти безупречна аргументация: Ако, човека твърдо е решил сам да си прави армировката и кофража. Ако това решение е окончателно и необратимо, да го оставим в ръцете на нискоквалифицирани арматуристи, защото голяма част от тези дето разбират нещата не са в БГ, би било пилеене на пари и материали. От гледна точка на глобалната икономическа логика губи не само собственика, но и обществото като цяло демек и моя милост. Съветите, които могат да бъдат дадени от подобни форуми, обаче най-вероятно ще бъдат консервативни и това ще доведе до малко по-висок разход на ст. и бетон. От друга страна, логиката на строящия, че е много по-добре част от парите за проект да отидат за арм. и бетон е много трудно оборима. Та ето ги, отговорните съвети на BLUE-то: 1.Двете средни колони на ниво основи да се привържат към стените с ивични фундаменти- огледален образ, като местоположение на предложените скрити греди. Единични фундаменти под колоните могат да се приложат, само ако сеиз. коефичиент е 0.10 и почвата за фундиране износва кирките, т.е. скали или сбити чакъли. 2.Категорично съм против да се изпълнява безгредова плоча без проект. Гредовата плоча е далеч по-безопасен вариант. 3.Предложените скрити греди се превръщат в пълноразмерни греди с дълбочина, включително и частта влизаща в плочата мин. 1/10 от разстоянието между центровете или вертикалните оси на колоните/стените. 4.Дебелина на гредовата плоча, мин. 1/20 от светлото разстояние между колоните/стените/гредите на по-тясната страна.
BLUEPUPIL-2 - специалист
Ако все пак се настоява за безгредова плоча. За да се избегне съсредоточаването на сили, които могат да бъдат поети само от точно прецизирана армировка, по-безопасното решение е понижение на плочата около колонана.
Прикачен файл:
300.jpg
300.jpg (78.25 KиБ) Видяна 3495 пъти
Руди - майстор
пет юли 06, 2018 2:06 pmKingLin написа:
Искам да направя плоча над празно пространство която ще се явява основата за гараж за две коли и натурии покрай тях. Плочата ще е с размер 13 на 7 метра. Помещението под нея (2.50 височина) ще има 1 дълга и две къси стени от бетон а четвъртата стена ще се явява основа на къща. Въпросът ми е каква да бъде армировката и дебелината за такава плоча и дали 2 колони (какви) ще са достатъчни за подпиране?
Аз на база четене на форуми, гледане на живо, предчувствия и т.н. неща без знания смятам да бъде с дебелина 20 см. с двойна скара с клетки 20х20 арматура фи10, като над колоните ще пусна скрити греди с фи20 - две по късата страна и една по дългата. Прав ли съм или се презапасявам излишно?
Колегата BLUE е прав за това, че с подходящо проектно решение може да се постигне оптимизация/намаляване на материалите.
Но не спомена дали това решение е добро - според мен да. Доста презапасено, но просто и добро.
Дебелината на плочата, а и армировката може да се намали при решенията с греди или капител, които се предложиха,
за сметка на по-сложен кофраж и армировъчни детайли.
KingLin - майстор
Благодаря за съветите. Пода на това помещение мисля да е плоча която да дублира горната. Явно ще отпусна още 10-20 см за височина за да направя трегерите на горната плоча като хората. От написаното разбирам че колони 25х25 са достатъчни.
Руди - майстор
нед юли 08, 2018 10:59 pmKingLin написа:
Благодаря за съветите. Пода на това помещение мисля да е плоча която да дублира горната. Явно ще отпусна още 10-20 см за височина за да направя трегерите на горната плоча като хората. От написаното разбирам че колони 25х25 са достатъчни.
На пода, в зоната на колоните ще ти трябват стъпки (фундаменти),
поне 60 см дълбоки и метър на метър в план, пък настилката може
да е 15 см с една мрежа ф8.
Не стана ясно как ще стъпи плочата на едната дълга стена...
KingLin - майстор
Фундаменти ще има - това за плочата го написах по повод свързването със стените. Трите стени за които говорех са подпорни (разбирайте дебели и с много джилезу :) ) Четвъртата стена още не ми е ясна и ще я мисля като ми дойде проекта на къщата който се готви в момента) защото граничат. Основната цел на мероприятието е да подпра пътя за да не падне в парцела ми и същевременно си обособя мазе/работилница защото под къщата не съм заложил точно поради тази идея.
  • 1
  • 4
  • 5
  • 6
  • 7
  • 8
  • 21

Тема "Как да си направя армировката?" | Включи се в дискусията:


Сподели форума:

Бъди информиран. Следвай "Направи сам" във Facebook:

Намери изпълнител и вдъхновения за дома. Следвай MaistorPlus във Facebook: