• 1
  • 5
  • 6
  • 7
  • 8
  • 9
  • 10
Предимства, недостатъци, цени, материали, планове, пасивни къщи и т.н.
StanZ - специалист
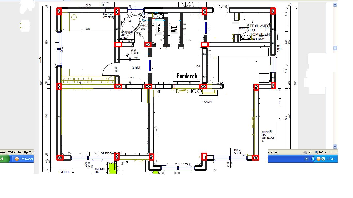
Колеги взех разрешителното и тия дни очаквам и от енерго-то да дойдат да ми закачат тока. И сега съм объркан и раздвоен. Пресметнах всичко още веднъж, ще се наложи да се откажа от втория етаж, колкото и малък да е. Не толкова заради разпределението, а защото ще прескоча сумата за 1ви етап. Всяка помощ за 154 от ЗУТ ще ми е от полза. Преди това да кажа какво съм решил да променя:

Много от предложенията ви ще опитам да приложа.
1. Няма да променям основите и външните размери на къщата (по възможност).
2. Входа от югоизток мисля да е на северозапад (запазих антрето).
3. Разделих къщата на дневна и нощна.
4. На мястото на стълбището малко по удобен коридор и място за по голям шкаф.
5. WC до входа с лесен достъп от дневната.
6. Успях да отделя място за две мокри помещения до двете спални. Едното баня, другото пералня-сушилня и т.н., но не съм решил кое какво ще бъде още.
7. Вече имам избор за директен достъп до кухненския бокс. Как е по добре, да влизам през вратата на кухнята или да сложа още една врата за хола?
8. Имам няколко варианта за дневната. Мога да разменя кухня-трапезария с хола.
9. Не успях с котелното !!! Предложения ?

В общи линии това мисля аз, така ще си помогна със сроковете за строежа и материалите. Ще прикача няколко картинки с няколко варианта за дневната. На единия от вариантите хол-трапезария са заедно и така за кухненския бокс не трябва голямо пространство и може да се отдели котелно в което да се влиза направо от антрето. Не ми се налага да слагам допълнителна външна врата, същевременно близо до входа за обслужване. Може да отнеса критики за котелното, но Трябва да има ... може да не е там, ... идеи?!

Ако се реша на тази стъпка (чл.154) имам следните въпроси. Няма да се прави нов проект? Отново съгласуване с ВиК и Енерго? Комплексен доклад за оценка за съответствие? И друго което не се сещам сега.! Колко време отнема и колко приблизително ще ми струва.

Благодаря!

Прикачен файл

new1.jpg
основни промени
new1.jpg (45.17 KиБ) Видяна 2780 пъти

Прикачен файл

new2.png
първи вариант
new2.png (70.8 KиБ) Видяна 2780 пъти

Прикачен файл

new3.jpg
2ри вариант
new3.jpg (47.7 KиБ) Видяна 2780 пъти

Прикачен файл

new31.jpg 2ри вариан 3д

Прикачен файл

new32.jpg
2ри вариант 3д
new32.jpg (93.74 KиБ) Видяна 2780 пъти
prascho - майстор
и двата варианта са куци :). хайде ще помосля след вечеря.

Втори вариант го изключвам от рас...холът не е добре да е от североизток..По-добре холът да е от юг, кухнята от севроизток.

При вариант едно не ми харесват две-три неща. От юг си поставил някакво затворено "мокро помещение" вместо една огрята и топла спалня. Банята и мокрото е хубаво да бъдат едно до друго. Освен, че ще ползват един комуникационен щранг то в мокрото може да разположиш бойлера /силно препоръчвам/ и ако са в близост ще ти спести водопроводна инсталация /по-къса инсталация по-топла вода, по-малко загуби/. В мокрото е мястото и на пералнята.

Входът правилно отзад. Мда...нещата при теб ще се получат. Още малко трябва да се помисли.
StanZ - специалист
Има доста неща да се оправят. Първия ми вариант ще го покажа сега, от него започнах и там дневната е изцяло на юг и много ми допадна, обаче има проблем. Първо в едната спалня трябва да се влиза директно от хола. Плюса е че "превземам' изцяло бившото антре и част от коридора и дневната става наистина много просторна и с добро изложение. Всъщност съм виждал стаи в които се влиза директно от друга стая, не знам дали мога да го приложа при мен. Минус е че така "изяждам" пералното ... но май нещата отиват да слагам тези уреди в кухнята, предвид намаленото пространство вече. И колоната която остава вътре в дневната централно трябва да търся някакво дизайнерско чудо. Разстоянията на ВиК ще ги оправя, голяма грижа ми е котелното. Ето я най първата ми мисъл, идеи много ама ...:

Прикачен файл

new5.jpg
new5.jpg (51.46 KиБ) Видяна 2752 пъти

Прикачен файл

new4.jpg
new4.jpg (49.63 KиБ) Видяна 2761 пъти
prascho - майстор
без да чета последния ти "пост' ти пращам моят вариант. Съобразен е с колоните.

Тоалетната, мокрото и частта от коридора са по 100см. Имаш три комина. Единият обслужва котела /първи изход/ и кухнята /втори изход/. Втори комин в мокрото /обслужва вентилацията на тоалетната и банята/ и трети декоративен комин за камина в хола.

Разположението на кухнята, хола и трапезарията го обсъждахме.

Прикачен файл

new prascho v1.JPG
prascho - майстор
Препоръчвам ти да няма преходни стаи...Също така по-възможност бойлер и перална в отделно мокро помещение. Не им е мястото в кухнята!!!

П.П. Ако банята ти е малка, може да преместиш лявата стена към спалнята. /до 50 см/

Също така за да не губиш част от територията в коридори може да помислиш и над този втори вариант. Ще имаш едно по-голямо помещение, което може да го ползваш и за склад в котелното.

Прикачен файл

new prascho v2.JPG
prascho - майстор
Ето още една възможност....

Прикачен файл

new prascho v3.JPG
PLD - помощник
StanZ написа:

Ако се реша на тази стъпка (чл.154) имам следните въпроси. Няма да се прави нов проект? Отново съгласуване с ВиК и Енерго? Комплексен доклад за оценка за съответствие? И друго което не се сещам сега.! Колко време отнема и колко приблизително ще ми струва.
Прави се "проект за промяна по време на строителството", но по същество си е цялостен проект, поне по част "Архитектура", другите специалности може да дадат по един лист, че по тяхната специалност не се налага препроектиране, при мен така беше. Сега, дали ще хване дикиш пред Главния архитект ..., не мисля, че някой ще тръгне да се заяжда къде, примерно, ще минат кабелите, когато тая стена си я поместил 50см, ама знае ли човек.

С ВиК и Енерго няма да съгласуваш повторно, щото няма защо.

Ако си имал доклад, ще се съгласуват с надзорника намеренията. И той ще даде един лист кое, защо се налага, как ...

Ако не се променя конструкцията минава с екзекютив /т.е. ще му мислиш към края на строежа/. Не се сещам дали обаче важи и когато се променят фасадите.

Струва пари - одобрението на промяна в проекта си е ... одобрение на нов проект.

При положение, че имаш РС в ръцете си, това, за колко време ще се одобри промяната, може да се разглежда като второстепенен въпрос, като обаче непременно се имат предвид конкретните взаимоотношения във връзка със завършека на чл.154. Още един път - това само ако променяш конструкцията.

Ако имаш надзорник, той е човекът!
prascho - майстор
относно разположението, това е последно от мен. По-добре банята да се разшири към коридора, а не към стаята като си посочил ти. За целта трябва да завъртиш двете колони.

Прикачен файл

new prascho final.JPG
kolcho - специалист
StanZ написа:
Пресметнах всичко още веднъж, ще се наложи да се откажа от втория етаж
Поздравления за разумното решение!
Моят съвет остава същият - откажи се от безумието "втори етаж" / това вече си го направил/, елиминирай този безумен проект, с който си се набутал, намери си кадърен проектант и му задай нещо просто:
- около 130 кв.м. на един етаж;
- три спални / една голяма, мин 14 кв.м. родителска и две по 9-10 за децата/;
- отделна дневна мин. 25 кв.;
- отделен бокс/трапезария мин. 20 кв. с влизане откъм бокса;
- връзка на дневната с трапезарията през портал;
- две бани / голяма, вързана за р.спалня през гардеробно антре и малка, за децата и гостите/ + мокро;
- антре с ниши за гардероби;
- котелно с достъп отвън и от антрето;
- изчистени форми, без никакви джуфки;
..................................
Гарантирам ти, че резултатът ще е в пъти по-добър / като цена и функционалност/ от това недоразумение, което възнамеряваше да строиш!
Основно условие е да спреш архитектурната самодейност, която с пълни сили тече тук / и при която някой напълно сериозно те съветва, например, "не допускай преходи между стаите", а после ти предлага да влизаш в кухнята през....хола :wink: /. След това просто си харесай някой идеен проект в нета, иди при проектант, обсъдете, доизкусурете го и - напред!
Успех!
  • 1
  • 5
  • 6
  • 7
  • 8
  • 9
  • 10

Тема "Започвам нова къща, имам нужда от съвет" | Включи се в дискусията:


Сподели форума:

Бъди информиран. Следвай "Направи сам" във Facebook:

Намери изпълнител и вдъхновения за дома. Следвай MaistorPlus във Facebook: