Здравейте.
Отдавна съм регистриран тука и следя темите с интерес.
Сега отварям моя, защото ще започвам да строя къща, защото ми писна да живея по квартири.
Всички документи са ми готови, остава само техничесият ръководител да подготви документите за "даване на линия" и мога да започвам. Мястото го имам, 525кв.м. с ток и вода. Има дори в дъното стара къща която не пречи и засега остава майсторите да държат инструментите и да се преобличат там, а след време живот и здраве ще я стегна и ще я направя къща за гости /еххх мечти мечти
/
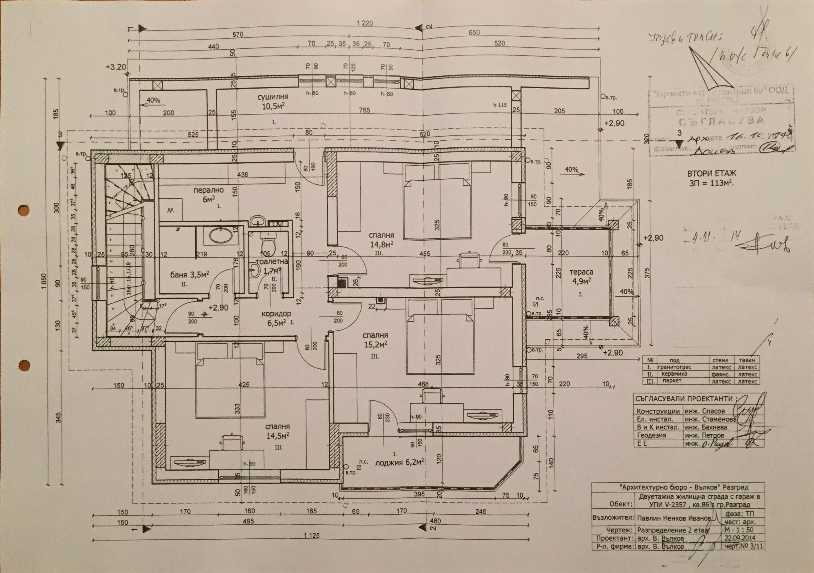
Къщата по план е ЗП 112кв.м, а РЗП 224кв.м. като на първият етаж има и гараж.
Всеки като ми погледне проекта ми казва, че са ми писали много бетон и арматура, както, че имам и много колони.
За цялата къща са ми дадени 92куб.м бетон и 6900кг. арматура. А цялата къща е със 21 колони.
Плочата на кота 2.85м е 14см, а плочата на кота 5.85м. е 12см.
Къщата е без маза.
/Довечера ще кача снимки на целият план, както и на КСС/
Интересува ме, как ще ми излезе по-евтино за да я вдигна? И според Вас колко пари ще са ми нужни за материали за грубият строеж.
Чудя се дали да зидам с Итонг, или със тухлите Винербергер мисля бяха.
С Итонга мисля, че ще е по-скъпо, но по-бързо и лесно, също така, сега те имат направо блокчета с отвори за изливане на колоните, както и коритообразни блокчета за редене на арматура направо.
После се чудя покрива дали да бъде с тези метални керемиди на фирмата Руукки или да сложа Брамак или пък от сръбските керемиди. Или пък има и едни пластмасови.
Също така, бихте ли ми казали според вас грубо колко пари ще ми излезе грубият строеж /основи, зидове, дограма, покрив, да затворя къщата един вид/
Допитал съм се до няколко фирми средната цена при тях, само за труд за груб строеж е 35000лв.
Намерих си строителна бригада, която взема 35лв. на кв.м за всичко. което мисля е най-доброто решение. Техническият ръководител е около 600-800лв.
Благодаря на всички предварително!
Отдавна съм регистриран тука и следя темите с интерес.
Сега отварям моя, защото ще започвам да строя къща, защото ми писна да живея по квартири.
Всички документи са ми готови, остава само техничесият ръководител да подготви документите за "даване на линия" и мога да започвам. Мястото го имам, 525кв.м. с ток и вода. Има дори в дъното стара къща която не пречи и засега остава майсторите да държат инструментите и да се преобличат там, а след време живот и здраве ще я стегна и ще я направя къща за гости /еххх мечти мечти
Къщата по план е ЗП 112кв.м, а РЗП 224кв.м. като на първият етаж има и гараж.
Всеки като ми погледне проекта ми казва, че са ми писали много бетон и арматура, както, че имам и много колони.
За цялата къща са ми дадени 92куб.м бетон и 6900кг. арматура. А цялата къща е със 21 колони.
Плочата на кота 2.85м е 14см, а плочата на кота 5.85м. е 12см.
Къщата е без маза.
/Довечера ще кача снимки на целият план, както и на КСС/
Интересува ме, как ще ми излезе по-евтино за да я вдигна? И според Вас колко пари ще са ми нужни за материали за грубият строеж.
Чудя се дали да зидам с Итонг, или със тухлите Винербергер мисля бяха.
С Итонга мисля, че ще е по-скъпо, но по-бързо и лесно, също така, сега те имат направо блокчета с отвори за изливане на колоните, както и коритообразни блокчета за редене на арматура направо.
После се чудя покрива дали да бъде с тези метални керемиди на фирмата Руукки или да сложа Брамак или пък от сръбските керемиди. Или пък има и едни пластмасови.
Също така, бихте ли ми казали според вас грубо колко пари ще ми излезе грубият строеж /основи, зидове, дограма, покрив, да затворя къщата един вид/
Допитал съм се до няколко фирми средната цена при тях, само за труд за груб строеж е 35000лв.
Намерих си строителна бригада, която взема 35лв. на кв.м за всичко. което мисля е най-доброто решение. Техническият ръководител е около 600-800лв.
Благодаря на всички предварително!
Последна промяна от papalin4o на пон мар 16, 2015 10:07 pm, променено общо 1 път.
