Здравейте,
В момента дообмислям идеен проект на семейна къща и бих искал да чуя коментари от още някой специалист или любител. Работя с архитект, който трябваше да се постарае да покрие мойте изисквания и тези на регулацията на парцела, а те са именно следните:
- Парцел 18x42m, изток-запад, уличката е от изток на 18те метра, т.е. парцелът е по дължина.
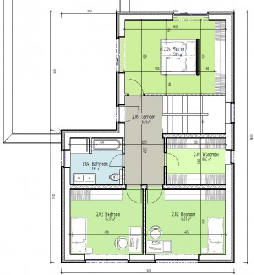
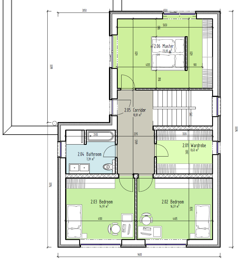
- 5 стаи, 2 етажа, двоен гараж: (3 спални, 1 хол, 1 офис + кухня, 2 бани, склад, котелно и перално помещение)
- По регулация от юг (дясно) трябва да имам 5 метра до съседа, а от север 2 метра. т.е. място за строеж 18-5м = 13м ширина
Изисквания:
- Размер на стаите:
- По възможност хола да е на юг, за да е по светъл и офисът да е долу, за да се ползва на старини за спалня.
- Холът и кухнята да имат обща част, но да могат да се изолират в случай на готвене.
- Холът и кухнята да имат гледка към градината.
- Към хола ще има по-късно закачена и зимна градина.
- Място за маса в хола в случай на събития.
- Котелното да е близо до баните и кухнята, за да не чакам топлата вода. (в плана до котелното/пералното се стига през склада, но не измислихме по-добро решение, което да не води до значително разширение на м2)
С 3D програмка съм си визуализирал варианта, който обмисляме.
Бих искал да знам дали виждате нещо, което може да се подобри или би имало конструктивен или друг проблем, който не сме преценили.
Предварително благодаря за коментарите!
В момента дообмислям идеен проект на семейна къща и бих искал да чуя коментари от още някой специалист или любител. Работя с архитект, който трябваше да се постарае да покрие мойте изисквания и тези на регулацията на парцела, а те са именно следните:
- Парцел 18x42m, изток-запад, уличката е от изток на 18те метра, т.е. парцелът е по дължина.
- 5 стаи, 2 етажа, двоен гараж: (3 спални, 1 хол, 1 офис + кухня, 2 бани, склад, котелно и перално помещение)
- По регулация от юг (дясно) трябва да имам 5 метра до съседа, а от север 2 метра. т.е. място за строеж 18-5м = 13м ширина
Изисквания:
- Размер на стаите:
- Спалните 2х ~15 м2, 1x 17-20м2
- Хол ~28м2,
- Кухня мин 15м2
- Бани: 2 х 6-7м2
- Гараж 36м2
- По възможност хола да е на юг, за да е по светъл и офисът да е долу, за да се ползва на старини за спалня.
- Холът и кухнята да имат обща част, но да могат да се изолират в случай на готвене.
- Холът и кухнята да имат гледка към градината.
- Към хола ще има по-късно закачена и зимна градина.
- Място за маса в хола в случай на събития.
- Котелното да е близо до баните и кухнята, за да не чакам топлата вода. (в плана до котелното/пералното се стига през склада, но не измислихме по-добро решение, което да не води до значително разширение на м2)
С 3D програмка съм си визуализирал варианта, който обмисляме.
Бих искал да знам дали виждате нещо, което може да се подобри или би имало конструктивен или друг проблем, който не сме преценили.
Предварително благодаря за коментарите!
Последна промяна от an-100 на вт апр 04, 2017 4:49 pm, променено общо 1 път.
