Здравейте,
Скоро наближава заветния час, чакан от 6 години, а имено вземането на ПУП ПРЗ. Тъй като по време на чакането идеите за къщата, която ще строим се смениха около стотина пъти(един или два етажа), стигнахме до компромисния вариант - един етаж с използване на таванското помещение. Начертали сме си първия етаж, но тук заседнахме с няколко въпроса относно стълбите. Тъй като смятаме да ползваме втория етаж, но рядко, смятаме да сложим стълба с метална конструкция и ширина около 75-80см.
Untitled.jpg (63.03 KиБ) Видяна 2090 пъти
И така.
Идея 1 - да затворим стълбището и да сложим врата на първия етаж, а под него някакви шкафове(малко тясничко ми изглежда).
Идея 2 - да сложим парапет и да ползваме или някаква врата с конструкция(но пък така ще трябва да има някаква конструкция в средата на помещението) или някаква врата на пода на втория етаж.
Идея 3 -да преместим някъде това стълбище и да разместим малко стаите(но нишо не ми идва на ум).
Ще се радвам да чуя мнения и коментари относно проекта и идеи за стълбите.
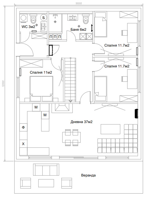
Скоро наближава заветния час, чакан от 6 години, а имено вземането на ПУП ПРЗ. Тъй като по време на чакането идеите за къщата, която ще строим се смениха около стотина пъти(един или два етажа), стигнахме до компромисния вариант - един етаж с използване на таванското помещение. Начертали сме си първия етаж, но тук заседнахме с няколко въпроса относно стълбите. Тъй като смятаме да ползваме втория етаж, но рядко, смятаме да сложим стълба с метална конструкция и ширина около 75-80см.
Прикачен файл:
Untitled.jpg (63.03 KиБ) Видяна 2090 пъти
Идея 1 - да затворим стълбището и да сложим врата на първия етаж, а под него някакви шкафове(малко тясничко ми изглежда).
Идея 2 - да сложим парапет и да ползваме или някаква врата с конструкция(но пък така ще трябва да има някаква конструкция в средата на помещението) или някаква врата на пода на втория етаж.
Идея 3 -да преместим някъде това стълбище и да разместим малко стаите(но нишо не ми идва на ум).
Ще се радвам да чуя мнения и коментари относно проекта и идеи за стълбите.
