А какво ще кажете за идеята да има две легла едно над друго вдясно от вратата. Но конструкциите им да нямат допирни точки.
Вашето лично помещение
Стефан
- майстор
23 мнения в "Да увеличим полезната площ в спалнята"
valyo
- напреднал
- Мнения: 28
Еее Стефане ти съвсем уби романтиката
По-нагоре за гушкане се говереше а ти реши проблема с отделни легла
Все пак става дума за бъдеща родителска спалня (живот и здраве), а не за детска стая 
Иначе направих варианта на който съм се спрял и този който ми предложи Дилдес. Наистина ако намеря по-тесен матрак и не е прекалено тесен ще се отвори доста пространство ..
Иначе направих варианта на който съм се спрял и този който ми предложи Дилдес. Наистина ако намеря по-тесен матрак и не е прекалено тесен ще се отвори доста пространство ..
Прикачен файл
1.gif (6.56 KиБ) Видяна 15895 пъти
Прикачен файл
2.gif (6.17 KиБ) Видяна 15895 пъти
Galski
- специалист
- Мнения: 113
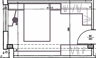
Valyo, тази спалня съвсем спокойно може да се обзаведе с легло макс. 160/200см и да си има и гардероб. Ще ти го нарисувам ;)
Значи слагаш спалнята на стената срещу образуваната ниша, като оставиш поне 50-60см от колоната за минаване. Така от дясно на леглото ще ти остане около 200-220см място. В кьошето отстрани на вратата и до леглото (шкафчето му да речем) правиш "Г" образен гардероб (по поръчка ест.)
В нишата зад вратата също слагаш един гардероб (или пък скрин) - като гледаш да е толкова дълъг колкото навлиза в помещението "Г"-образния.
Под прозореца имаш място за да речем по-тясна тоалетка - жената да се кипри ;)
Нишата може да се използва същи и като направиш някакви етажерки, или да закачиш ТВ-то на нея... Това ми се струва най-рационалното решение в твоя случай!
Ще видя дали може нещо по-авангардно да се получи - има и вариант спалнята да гледа към прозореца, като тогава може да се направи една средно висока стеничка, на която да се опре таблата на леглото, но пък няма място за шкафчета острани, а гардероба да е само на стената до врата отдясно.
Лично аз бих направила описаното по-горе от мен ;)
Успех и после да се похвалиш ;)
Значи слагаш спалнята на стената срещу образуваната ниша, като оставиш поне 50-60см от колоната за минаване. Така от дясно на леглото ще ти остане около 200-220см място. В кьошето отстрани на вратата и до леглото (шкафчето му да речем) правиш "Г" образен гардероб (по поръчка ест.)
В нишата зад вратата също слагаш един гардероб (или пък скрин) - като гледаш да е толкова дълъг колкото навлиза в помещението "Г"-образния.
Под прозореца имаш място за да речем по-тясна тоалетка - жената да се кипри ;)
Нишата може да се използва същи и като направиш някакви етажерки, или да закачиш ТВ-то на нея... Това ми се струва най-рационалното решение в твоя случай!
Ще видя дали може нещо по-авангардно да се получи - има и вариант спалнята да гледа към прозореца, като тогава може да се направи една средно висока стеничка, на която да се опре таблата на леглото, но пък няма място за шкафчета острани, а гардероба да е само на стената до врата отдясно.
Лично аз бих направила описаното по-горе от мен ;)
Успех и после да се похвалиш ;)
Прикачен файл
spalnia_168.gif (10.07 KиБ) Видяна 15890 пъти
dildes
- специалист
- Мнения: 89
А, и другото, което трябва да предвидиш е къде ще сложиш някога живот и здраве детското креватче. От личен опит ти споделям, че поне до 1та годинка, детето е хубаво да спи при вас. Просто на жена ти ще и е по-удобно, защото се става по-няколко пъти през ноща и ако трябва да ходи в друга стая, ще бъде меко казана доста изнервена /разбирай изтощена/. Когато човек прави ремонт е хубаво да помисли за всичко, дори сега да не му е на дневен ред 
Galski
- специалист
- Мнения: 113
dildes написа:А, и другото, което трябва да предвидиш е къде ще сложиш някога живот и здраве детското креватче. ....Абсолютно! Благодаря за напомнянето, dildes!!!
Изобщо не прочетох, че Valyo е написал :"Все пак става дума за бъдеща родителска спалня"....
Та към предложения от мен вариант - просто може да се пренебрегне "Г"-образния гардероб и да се постави там обикновен. Така се получава място и за бъдещо креватче!
Стефан
- майстор
- Мнения: 2259
valyo написа:Еее Стефане ти съвсем уби романтикатаЕее, колеги, Вие съвсем изкривихте темата на колежката.
Emerald написа:Какво пък...-нали е място само за спане...Темата беше за спалня, а не за е-ня
И, все някога ще трябва и да поспите малко.
Иначе, идеята на колежката Galski ми допада.
Последна промяна от Стефан на вт сеп 05, 2006 1:27 pm, променено общо 1 път.
Emerald
- модератор
- Мнения: 1626
Какви интересни дискусии се развихрят докато ме няма!
Вальо, отличен вариант ти е предложила Галски.
Бих се замислила малко за мястото на тоалетката за да освободя пространството под прозореца, но това са подробности.
Galski, добре дошла на нашия форум! Той винаги има нужда от идеи.
Вальо, отличен вариант ти е предложила Галски.
Бих се замислила малко за мястото на тоалетката за да освободя пространството под прозореца, но това са подробности.
Galski, добре дошла на нашия форум! Той винаги има нужда от идеи.
Тема "Да увеличим полезната площ в спалнята" | Включи се в дискусията:
Сподели форума:
Бъди информиран. Следвай "Направи сам" във Facebook:
Намери изпълнител и вдъхновения за дома. Следвай MaistorPlus във Facebook:
Имаш нужда от подходящ професионалист за дома?
- Преустройство, ремонт и реновиране
- ↳ Вашите ремонти
- ↳ Кухня
- ↳ Баня
- ↳ Дневна
- ↳ Спалня
- ↳ Детска
- ↳ Градина
- ↳ Коридор
- ↳ Тераса и балкон
- Направи сам
- ↳ Направи сам
- ↳ Ремонтирай сам
- ↳ Къде е по-евтино?
- ↳ Дърводелство
- ↳ Ел. инструменти
- ↳ Металообработване
- ↳ Конкурс "Направи сам 2012"
- Строителство
- ↳ Всичко за вилата
- ↳ Къщи
- ↳ Саниране
- ↳ Хидроизолация
- ↳ Пасивни и нискоенергийни сгради
- Сухо строителство
- ↳ Окачени тавани
- ↳ Преградни стени и предстенни обшивки
- ↳ Сухи и повдигнати подове
- ↳ Декоративни елементи - колони, трегери, сводове и др.
- ↳ Всичко за гипскартона и гипсфазера
- Въпроси и Отговори
- ↳ Полезни съвети
- ↳ Автомобили
- ↳ Партньори
- ↳ Боядисване и Декориране
- ↳ Вентилация, климатици и термопомпи
- ↳ Водоснабдяване и канализация.
- ↳ Всичко за ремонта
- ↳ Електротехника
- ↳ Отопление
- ↳ Газификация
- ↳ Електроника и Схеми
- ↳ Газобетон
- ↳ От всичко по малко
- ↳ Компютри и периферия
- ↳ Уеб дизайн, PHP, MySQL, JavaScript, HTML..
- ↳ Мобилни устройства, GSM-и
- ↳ Нека се запознаем
- ↳ Recycle Bin
- Статии
- ↳ Практични решения
- ↳ Качване на снимки
- ↳ Какви статии искате?
- ↳ Готварство, туршии и зимнина
- ↳ Отмора и шеги
- ↳ От нищо нещо
- ↳ Не е за вярване
- ↳ Литература
- ↳ Връзки към Интересни сайтове
- Магазин
- ↳ Препоръки и Мнения за он-лайн магазина
- ↳ Крадeни инструменти !!!
