Здравейте,
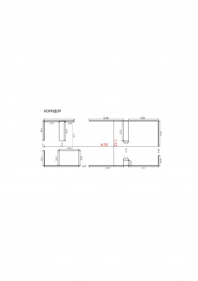
Колеги имам нужда от съвет при изобра на гранитогрес за коридора. Спрях се на размери 60x60 или 30x60.
Притеснява ни това да не би плочките да са много големи като размер за това помещение? Ако изберем по-малък размер - по-добре ли ще е?
Кой вариант на редене и размер ви допада най-много?
Благодаря!
Поздрави.
Колеги имам нужда от съвет при изобра на гранитогрес за коридора. Спрях се на размери 60x60 или 30x60.
Притеснява ни това да не би плочките да са много големи като размер за това помещение? Ако изберем по-малък размер - по-добре ли ще е?
Кой вариант на редене и размер ви допада най-много?
Благодаря!
Поздрави.

