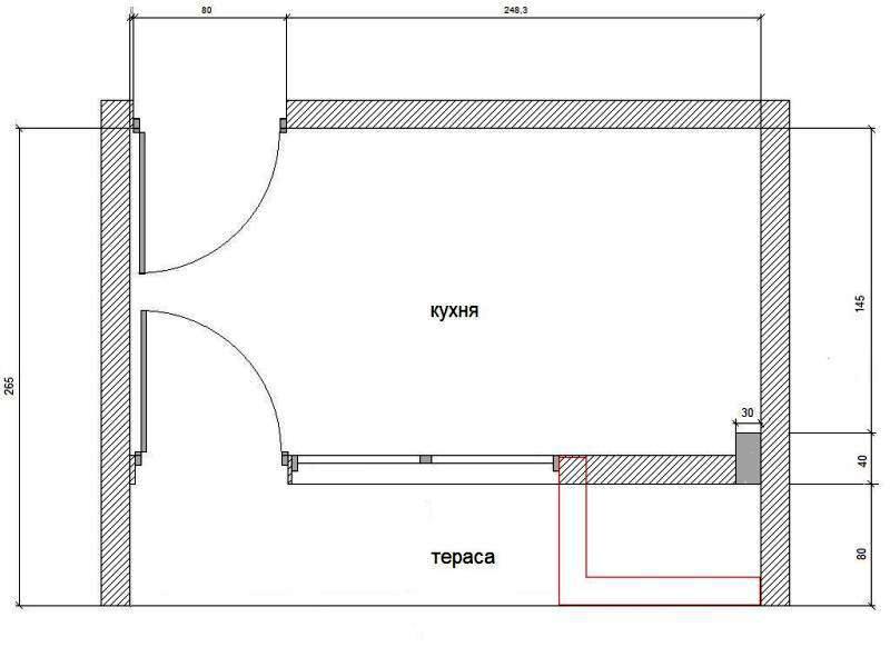
Смятам лятото да направя ремонт на кухнята и реших да си направя план,че да зная какво точно ще ми трябва и как ще изглежда.На първата скица са размерите на кухнята (бокс) в момента.С червено е очертано това което смятам да присвоя от терасата.Плота, фурната,пералнята и хладилника са купени.Пода ще е почти със същия цвят и шарка като този от втората скица.Така,че тези работи не търпят промяна.Плочките на стената съм ги сложил само за декорация на практика смятам да сложа полиран лазерно калиброван гранитогрес 60х60.Още се колебая за цвета и разположението на шкафовете и мивката(позволява преместване по цялата дължина на двете стени)Колебая се дали да не е в ъгъла,но не мога да си представя дали ще е удобно.Очаквам препоръките ви за цветове и разположение.
Прикачен файл
скица 2.jpg (135.17 KиБ) Видяна 6941 пъти
Прикачен файл
скица 1.jpg (44.2 KиБ) Видяна 6941 пъти

