От доста време се чудя дали да "спамя" с една тема, или да наспамя темите на някой друг 
Направил съм си един проект за кухня, но имам няколко въпросчета, които може би някои патил или по-разбиращ ще може да ми разясни
за което благодаря предварително
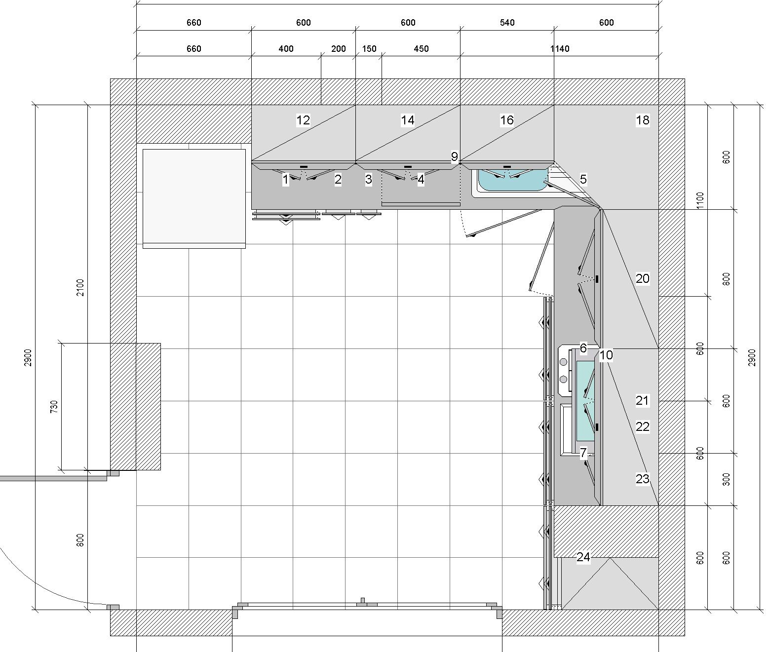
ей това е какво ще представлява самата кухня, на чертеж
Долните шкафове мисля да не са отделни, а да са едно цяло нещо.
Като основата е цяла, или от 2 части заради ъгълът на мивката. Под основата или само крачета, или рамка с крачета. Върху основата страниците и на тях плотът.
Първото ми питане е :
1. Някъде гледах вариант за монтаж на плота, при който страниците са издължени (примерно) с 10мм, а в плота са направени съответните канали, за да могат да влязат страниците, и няма нужда от тези напречни гредички на тавана на шкафчетата.
Има ли някакви причини, поради които не е добра идея този вариант за монтаж, като изключим момента че е по-времеемък, и изисква наличие на определени инструменти (като оберфреза и т.н.)?
При него има ли нужда от дибли, или някакви други сглобки, или само лепило ще е достатъчно
?
За горният ред шкафове също си мислех да се направи с цели основи, а страниците да са малки и между основите. Но след известно четене осъзнавам, че може да има сериозни проблеми от това че материала е МДФ (ПДЧ имах в предвид) и съответно да паднат всичките горни шкафове.
2. Може ли да се ползват дибли и минификс-ове за закрепване на основите за страните на горните шкафове или евровинтта е по-добро решение?
Мислех да си спестя някоя друга страница на горните рафтове, уж да е по-лекичко.
3. Сглобките с минифлекс имат ли някаква по-ниска товароносимост, има ли опасност някой под на горният шкаф да се откърти под тежестта, на някои друга чиния, купа и т.н.?
4. Понеже става дума за кухня и съответно наличие на влага, трябвали при изработването на детайлите всички страни да са се кантират, или да се лакират или боядисат?
5. Относно монтирането на керамичния плот и газовия плот, имали някакви изисквания за нещо като кутия под тях? И ако има такава трябва ли да има някакво „проветрение” (охлаждане), отвори от пред, от зад?
6. На много места четох, че аспиратора трябва да е на 70см от газов котлон, че можел да се запали от високата температура. Този който съм си харесал е с метални филтри. За него ли важи това правило или ... може и да се игнорира?
Хайде стига толкова въпроси, да не прекаляваме от самото начало
Направил съм си един проект за кухня, но имам няколко въпросчета, които може би някои патил или по-разбиращ ще може да ми разясни
за което благодаря предварително
ей това е какво ще представлява самата кухня, на чертеж
Долните шкафове мисля да не са отделни, а да са едно цяло нещо.
Като основата е цяла, или от 2 части заради ъгълът на мивката. Под основата или само крачета, или рамка с крачета. Върху основата страниците и на тях плотът.
Първото ми питане е :
1. Някъде гледах вариант за монтаж на плота, при който страниците са издължени (примерно) с 10мм, а в плота са направени съответните канали, за да могат да влязат страниците, и няма нужда от тези напречни гредички на тавана на шкафчетата.
Има ли някакви причини, поради които не е добра идея този вариант за монтаж, като изключим момента че е по-времеемък, и изисква наличие на определени инструменти (като оберфреза и т.н.)?
При него има ли нужда от дибли, или някакви други сглобки, или само лепило ще е достатъчно
За горният ред шкафове също си мислех да се направи с цели основи, а страниците да са малки и между основите. Но след известно четене осъзнавам, че може да има сериозни проблеми от това че материала е МДФ (ПДЧ имах в предвид) и съответно да паднат всичките горни шкафове.
2. Може ли да се ползват дибли и минификс-ове за закрепване на основите за страните на горните шкафове или евровинтта е по-добро решение?
Мислех да си спестя някоя друга страница на горните рафтове, уж да е по-лекичко.
3. Сглобките с минифлекс имат ли някаква по-ниска товароносимост, има ли опасност някой под на горният шкаф да се откърти под тежестта, на някои друга чиния, купа и т.н.?
4. Понеже става дума за кухня и съответно наличие на влага, трябвали при изработването на детайлите всички страни да са се кантират, или да се лакират или боядисат?
5. Относно монтирането на керамичния плот и газовия плот, имали някакви изисквания за нещо като кутия под тях? И ако има такава трябва ли да има някакво „проветрение” (охлаждане), отвори от пред, от зад?
6. На много места четох, че аспиратора трябва да е на 70см от газов котлон, че можел да се запали от високата температура. Този който съм си харесал е с метални филтри. За него ли важи това правило или ... може и да се игнорира?
Хайде стига толкова въпроси, да не прекаляваме от самото начало
Последна промяна от eraser на пон юли 02, 2012 8:36 pm, променено общо 1 път.
