Всичко за този вид строителство.
Тани
- модератор
7 мнения в "Тънкости при монтажа на дограмата"
estqwerty
- специалист
- Мнения: 253
на WINTeQ съм ходил на презентация беше весело
умряхме от студ , трима човека си играха повече от час и половина докато облепят целия прозорец с лентите и накрая дори нямам спомен успяха ли да го сложат в предвиденото място.
не че не върши работа но е доста пипкава и се монтират се по-малко джамове , ако все пак ако иска този който си плаща защо не.
предполагам ако просто се облепи отвън и отвътре с някаква мембрана ще е доста по-лесно , не по-малко качествено и определено по-бързо.
не че не върши работа но е доста пипкава и се монтират се по-малко джамове , ако все пак ако иска този който си плаща защо не.
предполагам ако просто се облепи отвън и отвътре с някаква мембрана ще е доста по-лесно , не по-малко качествено и определено по-бързо.
marmoz
- специалист
- Мнения: 810
А бе аз незнам що са толкоз много видове на поста -виншни че вътрешни че ала бала ,ама ще ви кажа че като жулим зимни градини,отвън изцяло ги облепяме с ботил лепенки /битум с алуминиево фолио/,като в/у стените застъпват поне 10-15 см.
П.П.При нас основният проблем е да няма теч,че появи ли се става МАЗАЛО за ремонт................
П.П.При нас основният проблем е да няма теч,че появи ли се става МАЗАЛО за ремонт................
VLADO66
- майстор
- Мнения: 9346
Ако имате нерви да изгледате цялото
http://www.youtube.com/watch?v=8DdYzEu1l24
marmoz
- специалист
- Мнения: 810
Еи VLADO66 ,много ме накефи това клипче,не бях го гледал
Няма да коментирам какви са амаьори всички от клипа ...........
,но понеже съм ПРОСТ
,ми стана интересно за този "magik stiks"
1.Първо ми е интересно ко толкоз хващат с него,дъли са го направили като хората или дъли в стаята има някакви други течения,налягания,подналягания и разни всеобразни
2.Ако тоя дето върти тая пръчица вземе та пръдне
,как ли ще се раздвижи въздуха /пушека/
3.Аз че съм прост,прост съм, ама те да си мислят "на простичкия му даи цветничко,да се радва и мисли че сме мнооо хаи-тек" е па чак толкоз прост не съм
.Аман от търговски шмекерии за повишаване на продуктовата цена 
Няма да коментирам какви са амаьори всички от клипа ...........
1.Първо ми е интересно ко толкоз хващат с него,дъли са го направили като хората или дъли в стаята има някакви други течения,налягания,подналягания и разни всеобразни
2.Ако тоя дето върти тая пръчица вземе та пръдне
3.Аз че съм прост,прост съм, ама те да си мислят "на простичкия му даи цветничко,да се радва и мисли че сме мнооо хаи-тек" е па чак толкоз прост не съм
marmoz
- специалист
- Мнения: 810
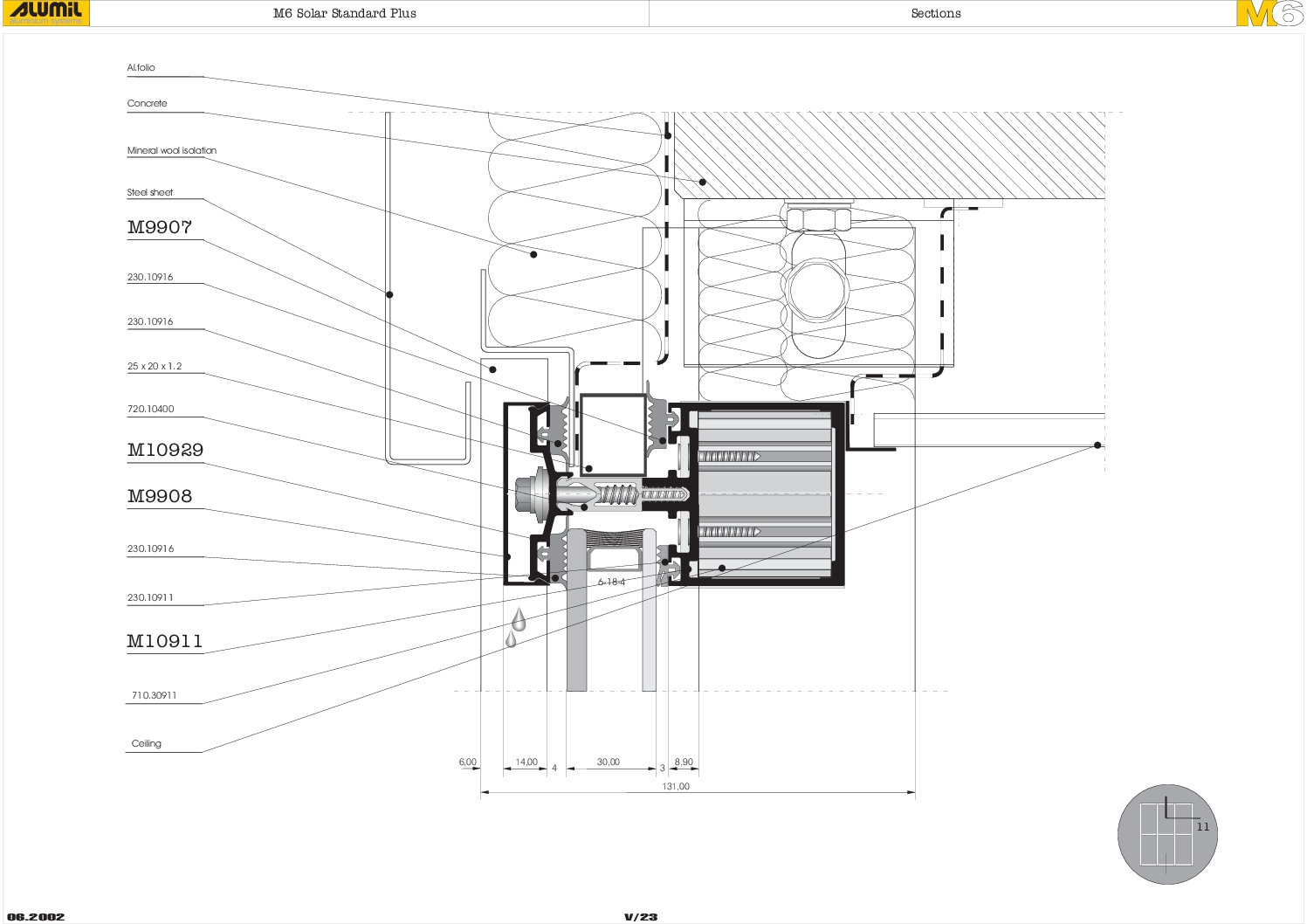
Пуска страница/вид/ от фасадно завършване на Алумил /няма да ви казвам от коя година е измислено ,на каталог и се практикува/, надали "пасивните дограмджии" ще сътворят нещо много по-добро
Следваики принципите е приложимо в/у всякъкъв вид дограма.
П.П.Ако мислите че вода се спира по лесно от въздух ............... ще замълча
Следваики принципите е приложимо в/у всякъкъв вид дограма.
П.П.Ако мислите че вода се спира по лесно от въздух ............... ще замълча
Тема "Тънкости при монтажа на дограмата" | Включи се в дискусията:
Сподели форума:
Бъди информиран. Следвай "Направи сам" във Facebook:
Намери изпълнител и вдъхновения за дома. Следвай MaistorPlus във Facebook:
Имаш нужда от подходящ професионалист за дома?
- Преустройство, ремонт и реновиране
- ↳ Вашите ремонти
- ↳ Кухня
- ↳ Баня
- ↳ Дневна
- ↳ Спалня
- ↳ Детска
- ↳ Градина
- ↳ Коридор
- ↳ Тераса и балкон
- Направи сам
- ↳ Направи сам
- ↳ Ремонтирай сам
- ↳ Къде е по-евтино?
- ↳ Дърводелство
- ↳ Ел. инструменти
- ↳ Металообработване
- ↳ Конкурс "Направи сам 2012"
- Строителство
- ↳ Всичко за вилата
- ↳ Къщи
- ↳ Саниране
- ↳ Хидроизолация
- ↳ Пасивни и нискоенергийни сгради
- Сухо строителство
- ↳ Окачени тавани
- ↳ Преградни стени и предстенни обшивки
- ↳ Сухи и повдигнати подове
- ↳ Декоративни елементи - колони, трегери, сводове и др.
- ↳ Всичко за гипскартона и гипсфазера
- Въпроси и Отговори
- ↳ Полезни съвети
- ↳ Автомобили
- ↳ Партньори
- ↳ Боядисване и Декориране
- ↳ Вентилация, климатици и термопомпи
- ↳ Водоснабдяване и канализация.
- ↳ Всичко за ремонта
- ↳ Електротехника
- ↳ Отопление
- ↳ Газификация
- ↳ Електроника и Схеми
- ↳ Газобетон
- ↳ От всичко по малко
- ↳ Компютри и периферия
- ↳ Уеб дизайн, PHP, MySQL, JavaScript, HTML..
- ↳ Мобилни устройства, GSM-и
- ↳ Нека се запознаем
- ↳ Recycle Bin
- Статии
- ↳ Практични решения
- ↳ Качване на снимки
- ↳ Какви статии искате?
- ↳ Готварство, туршии и зимнина
- ↳ Отмора и шеги
- ↳ От нищо нещо
- ↳ Не е за вярване
- ↳ Литература
- ↳ Връзки към Интересни сайтове
- Магазин
- ↳ Препоръки и Мнения за он-лайн магазина
- ↳ Крадeни инструменти !!!