Здравейте майстори,
Ще строя нова къща в с.Герман до София. След дългогодишни мъки го докарах до етапа да подавам документи за разрешително за строеж (т.е имам виза за проектиране). Целта е да започна някъде февруари-март в зависимост от времето. Преди няколко дни получих идеен проект от архитекта и бих искал съвет за няколко детайла по които имаме спорове с него.
(Offtopic: Регистрацията в този форум си е като кандидатстване в комсомола или за кредит - чакаш толкова време, че накрая почти се отказваш да пишеш. /End rant)
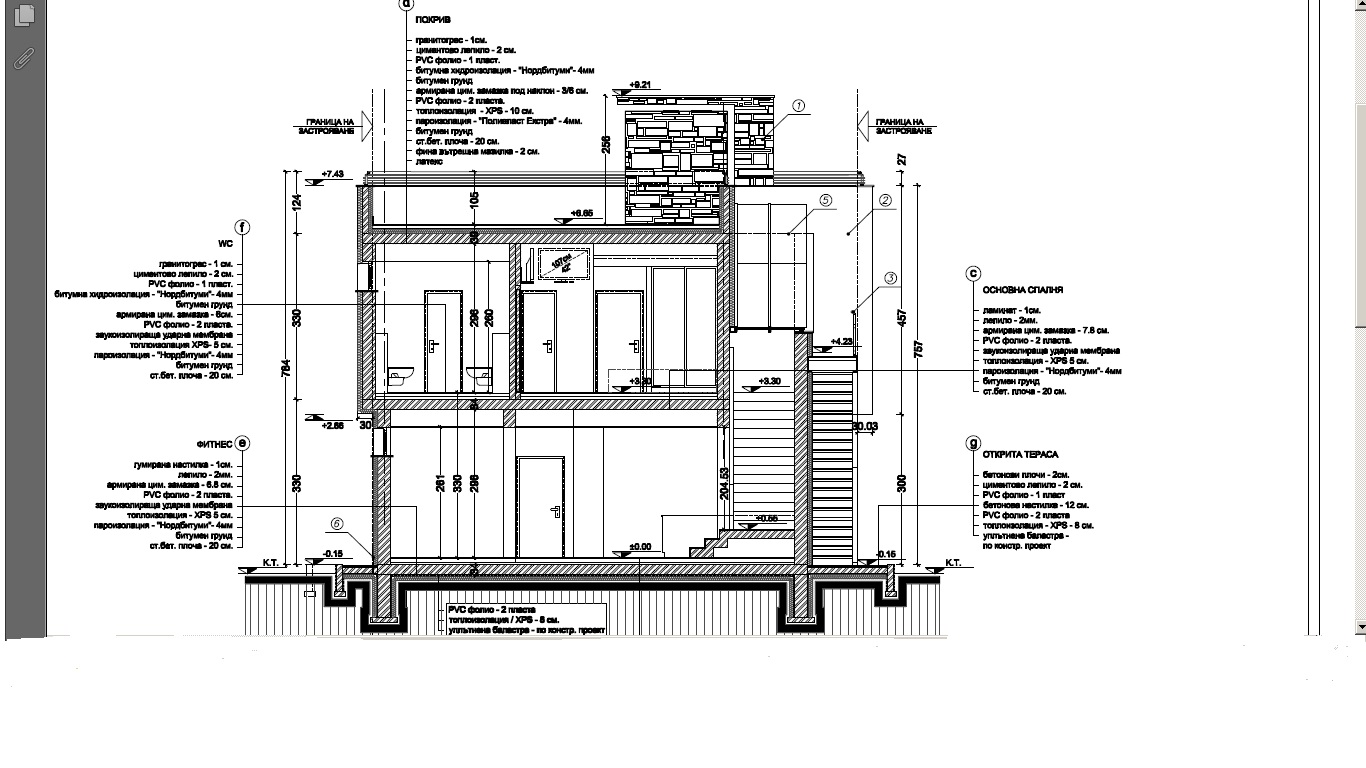
1. Свързването на външните пътеки с плочата - там се съгласи да ги раздели с XPS.
2. Парапета на покрива - така направен според мен играе ролята на радиатор, който компрометира цялата термоизолация. Но така било по "немските книги" и отказа да го промени. Ако не ми харесва - да съм правел, каквото искам. Освен това се слага изолация,
която нищо не изолира, а това са си изхвърлени пари.
3. Подовите покрития - нявсякъде има 7-8 см армирана замазка, над вътрешна изолация. Това според мен е напълно излишно, прави термомост към стената и изолацията под замазката не върши никаква работа. Греша ли? Освен това само като погледна колко неща трябва да наслагам, ме заболява главата (джоба по-точно). Кое от всички тези неща е наистина необходимо.
4. Подово покритие на покрива. Аз смятам да го правя с естествена трева, но това ще стане по-късно, по финансови съображения. Докъде в целия този куп от материали мога да спра?
5. Горе-долу 3/4 от фасадата е покрита с каменна облицовка, която стига до 6м височина на места. Това като направих груби сметки и ми се зави свят - сигурно ще стигне 200лв/м2 стена - тухли, изолация, камък. Та се замислих защо са ми тези тухли. Поразрових интернета и гледам, че масово се позват панели от EPS/PU с различна облицовка(SIP - Structural insulating Panel) - OSB,фибростъкло,метал и т.н. Какво мислите за варианта да се "зида" директно 30см EPS, залепен гипскартон отвътре и нещо (какво?/направо камъка?) отвън? Какви са нормативните изисквания към стени на къща? В петък имам среща с конструктора по този въпрос, но се притиснявам, че ще получа отговор от типа "бе то така се прави"
Ще строя нова къща в с.Герман до София. След дългогодишни мъки го докарах до етапа да подавам документи за разрешително за строеж (т.е имам виза за проектиране). Целта е да започна някъде февруари-март в зависимост от времето. Преди няколко дни получих идеен проект от архитекта и бих искал съвет за няколко детайла по които имаме спорове с него.
(Offtopic: Регистрацията в този форум си е като кандидатстване в комсомола или за кредит - чакаш толкова време, че накрая почти се отказваш да пишеш. /End rant)
1. Свързването на външните пътеки с плочата - там се съгласи да ги раздели с XPS.
2. Парапета на покрива - така направен според мен играе ролята на радиатор, който компрометира цялата термоизолация. Но така било по "немските книги" и отказа да го промени. Ако не ми харесва - да съм правел, каквото искам. Освен това се слага изолация,
която нищо не изолира, а това са си изхвърлени пари.
3. Подовите покрития - нявсякъде има 7-8 см армирана замазка, над вътрешна изолация. Това според мен е напълно излишно, прави термомост към стената и изолацията под замазката не върши никаква работа. Греша ли? Освен това само като погледна колко неща трябва да наслагам, ме заболява главата (джоба по-точно). Кое от всички тези неща е наистина необходимо.
4. Подово покритие на покрива. Аз смятам да го правя с естествена трева, но това ще стане по-късно, по финансови съображения. Докъде в целия този куп от материали мога да спра?
5. Горе-долу 3/4 от фасадата е покрита с каменна облицовка, която стига до 6м височина на места. Това като направих груби сметки и ми се зави свят - сигурно ще стигне 200лв/м2 стена - тухли, изолация, камък. Та се замислих защо са ми тези тухли. Поразрових интернета и гледам, че масово се позват панели от EPS/PU с различна облицовка(SIP - Structural insulating Panel) - OSB,фибростъкло,метал и т.н. Какво мислите за варианта да се "зида" директно 30см EPS, залепен гипскартон отвътре и нещо (какво?/направо камъка?) отвън? Какви са нормативните изисквания към стени на къща? В петък имам среща с конструктора по този въпрос, но се притиснявам, че ще получа отговор от типа "бе то така се прави"


