• 1
  • 2
Всичко свързано с тоците ми е слабост, опитайте се да ме затрудните.
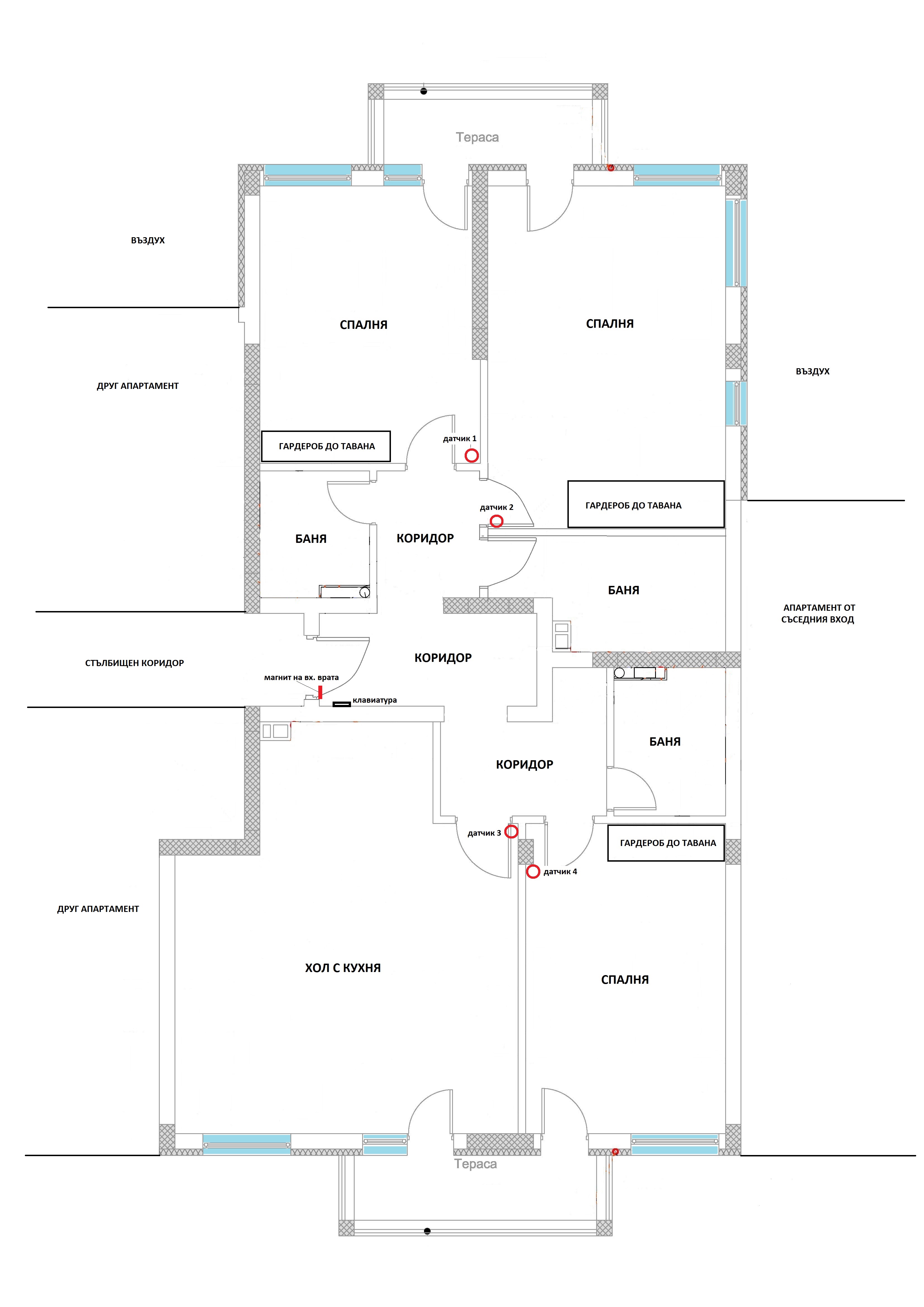
Здравейте колеги, може ли да ми кажете дали съм обозначил правилно местата на обемните датчици за СОТ, магнита на вх. врата и на клавиатурата, а централата съм измислил къде да я сложа, но от съображения за сигурност не съм я обозначил :-D :) . Понеже дойде време да ремонтираме апартамента и мисля да си прекарам и кабели за СОТ ( аз само кабелите ще си прекарвам, самото подвързване, избор на системата и т.н. ще си извикам професионалисти). С електроинсталацията ще се оправя - преди съм работил като електротехник, но за СОТ системите нямам много добри знания. От това което прочетох тук във форума достигнах до следните заключения:
1. Пускам си отделен кабел - "Сот/алармен кабел 6x0.22мм" от централата до всеки от обемните датчици.
2. Отделен кабел от централата до клавиатурата.
3. Отделен кабел от централата (за всеки случай) до магнита на вратата.
4. Отделен кабел от централата до една от терасите отвън - за външна сирена (пак за всеки случай и несъм го обозначил на коя тераса е пак от съображение за сигурност :lol: )
5. От разпределителното таблото до централата мостов проводник 3x1,5мм за захранването и.
Ако нещо съм пропуснал или не е така, моля да ме коригирате!
Благодаря предварително за помощта!
Прикачен файл:
razpredelenie SOT.jpg
turbocharged - специалист
Най-добре е да питаш техник от СОТ който си решил да ползваш.
Може и да съкратиш кабелите без да загубиш нищо. На 6 чифтов кабел се свързват 2 датчика. Кабела влиза в първия датчик после излиза и отива към другия. Магнита се връзва към клавиатурата. Осигури кабел от клавиатурата до магнита и от клавиатурата до централата.
Друг вариант е да окабелиш с LAN кабел по твоята схема вместо с алармен.
Така може един ден да смениш ПИР датчиците с такива с камери.
petrov7111 - специалист
Ако ще се връзваш на Сот с патрули, не е зле да помислиш и за радиопредавател - някъде на скрито, не в антрето. Пусни си и един кабел UTP до рутера. Кабелите наистина можеш да ги съкратиш, да речем по 1 за 2 датчика. Мука -до клавиатурата.
Аха разбрах, значи първи и втори датчик с един кабел влез излез и 3 и 4 датчик пак така. Магнита (мука) директно в клавиатурата и от клавиатурата в централата. Това ще ми спести доста кабел наистина. :) И един лан кабел за евентуална връзка с интернет от ценралата до рутера. Само да попитам останал съм с впечатлението, че радиопредавателя е вътре в централата и от нея стърчи една антена или се лъжа? Централата определено не ми е в коридорите :) . Иначе за камерите идеята е добра и това ми е минавало през мисълта, но аз имам една дето е с вградено wi-fi (без кабели, само ток и трябва разбира се) и я гледаме през телефона - в спалнята на бебока ни е - ползваме я като бебефон. Аз пак такива камери си мислих да сложа в детските стаи на децата - да ги гледаме какви щуротии правят докато са ни малки. :) :lol: Иначе датчиците добре ли съм им измислил местата и се чудя дали нетрябва да сложа и един датчик в коридора - този малкия горния коридор (където са датчик 1 и 2) в ъгъла до вратата на банята , да обхваща диагонално и другите коридори или е излишно!
Благодаря много за напътствията! Много са ми полезни! Лек и спорен ден на всички!
petrov7111 - специалист
Добре са ти разположени датчиците, сложи и един в коридора (входа). Ако си на нисък етаж, добре е да се монтират магнитни дат. на прозорците. Всяка нормална аларма има нощен режим, с който можеш да си вкл. периферните магн. датчици, а вие да си спите спокойно. На двуосовите прозорци се монтират от долу, за да могат да се отварят само от горе и да влиза въздух, без да се задействат датчиците. Някои предаватели могат да се монтират в централата (особено когато не е пуснат кабел за това), но е по-добре да се скрие някъде, но и да има достъп за обслужване.
Мисля, че нямам нужда на прозорците да слагам магнити защото съм на 3 етаж. За предавателя тогава ще пусна един кабел от централата до друго място в апартамента. Иначе къде точно имаш предвид в коридора(входа) да сложа датчик - над входната врата някъде или срещу нея?
petrov7111 - специалист
Или срещу нея, напр. в някой от ъглите, или над някоя от двете врати, където е сигурно, че няма да има мебел.
Благодаря много за помоща! :) Вече имам идеята как ще стане!
stamenov1 - специалист
Когато слагаш повече от един датчик на кабел, то контактите им за задействане са включват последователно, а не успоредно. Така всичките датчици от клона отговарят на една зона на алармата. по същия начин са и кабелите за 24 часовата защита на кабелите и датчиците. но всички такива кабели отиват само в 24 часовата зона.
Може да предвидиш и кабел, за външна бронирана сирена, ако искаш.
Nimi - специалист
stamenov1 написа:
Когато слагаш повече от един датчик на кабел, то контактите им за задействане са включват последователно, а не успоредно. Така всичките датчици от клона отговарят на една зона на алармата. по същия начин са и кабелите за 24 часовата защита на кабелите и датчиците. но всички такива кабели отиват само в 24 часовата зона.
Може да предвидиш и кабел, за външна бронирана сирена, ако искаш.
Подвързването зависи от централата. Почти всички съвременни централи позволяват двойно и даже тройно балансиране на зоните. Това в аварийни случай позволява 8 зони и 4 тампера по 6 жилен кабел.
Последователно подвързване на датчиците само ако надвишават зоните на централата!

4 кабела са напълно достатъчни както те посъветваха до сега. По чертежа! Връзката към рутера е препоръчтилна.
  • 1
  • 2

Тема "Окабеляване за СОТ" | Включи се в дискусията:


Сподели форума:

Бъди информиран. Следвай "Направи сам" във Facebook:

Намери изпълнител и вдъхновения за дома. Следвай MaistorPlus във Facebook: