Здравейте на всички. Искам да започна с това, че съм нов във форума и ще приема всякакви критики и препоръки от Ваша страна.
Предстои ми изграждане на локално парно и поради липса на средства няма да бъде възложено на фирма. Самото изпълнение не ми е проблем (имам някакъв опит в тази насока) ,но относно проекта ще се надявам на помощ и съвети от Ваша страна.
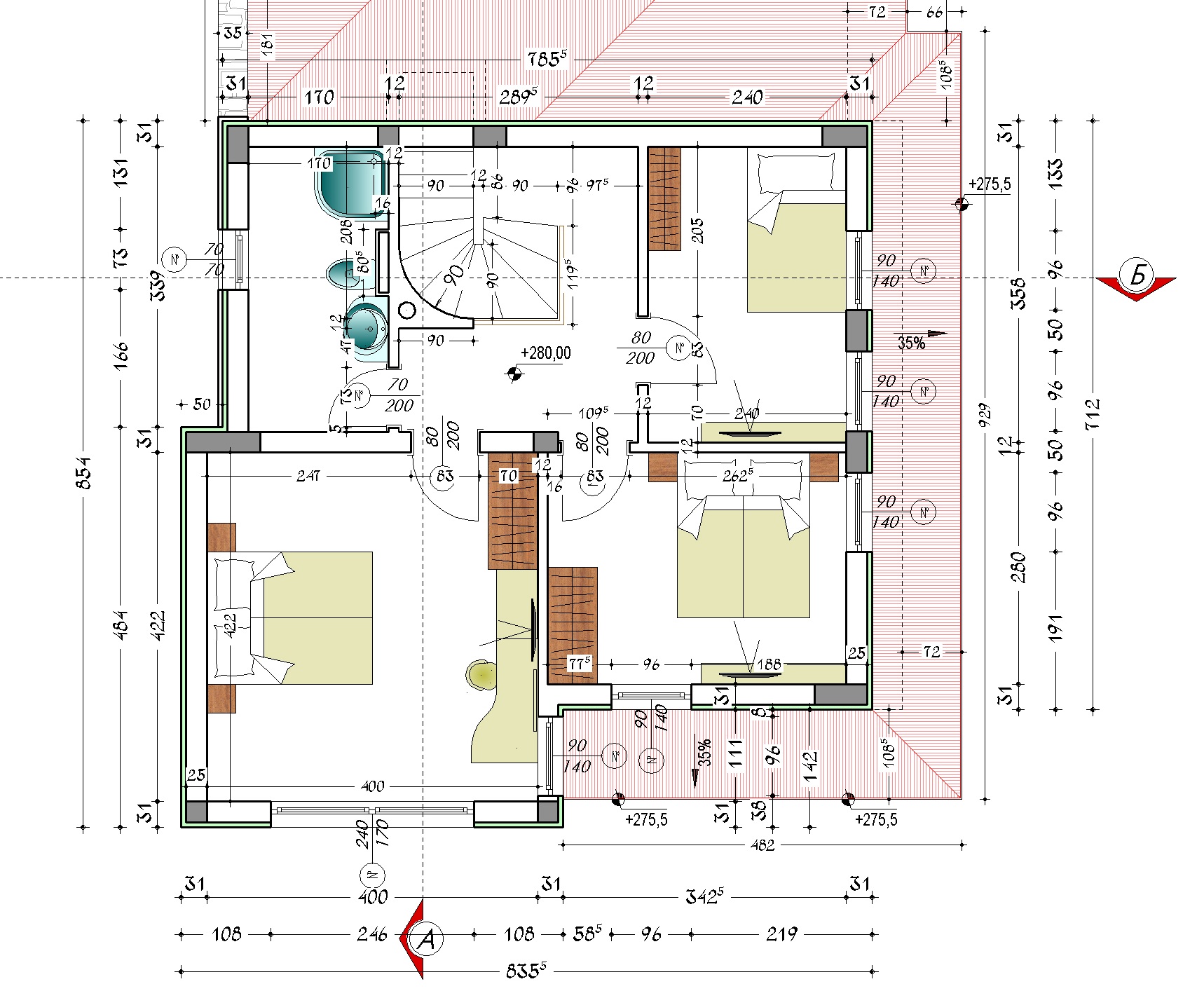
Става въпрос за къща на два етажа. По-долу ще приложа снимки. Външна изолация с фибран , нова PVC дограма, от вътре гипс-картон без вата.
Може би е важно да се отбележи , че къщата се намира на около 1500 метра надморска височина в полите на Родопите.
Камината, с която мисля да реализирам парното е тази http://www.prity-bg.com/products/produc ... oductid=82
Примерни киловати на помещенията:
1 Етаж:
Хол 100м3 ~ 7,41kw
Спалня 31,2м3 ~ 2,34kw - радиатор 2,54kw
Баня 11,05 ~0,825kw
WC 5,74м3 ~ 0.43kw - радиатор 2,54kw
Антре 21,45м3 ~ 1,6kw - радиатор 1,8kw
2 Етаж:
Голяма Спалня 43,68 ~ 3,27kw - радиатор 3,27kw
Спалня 26м3 ~ 1,95kw - радиатор 2.18kw
Спалня 22,36м3 ~ 1,67kw - радиатор 1,8kw
Баня 15,02м3 ~ 1,12kw
Бойлер
Въпроси:
1. Добре ли са тези киловати за помещенията както и мощността на радиаторите за тях?
2. В хола, където ще е камината добре ли ще е да сложа конвектор за по-бързо стопляне или да добавя два радиатора (чух изказване , че този конвектор ще дръпне всичкото топло от водната ризата)?
3. В баните възможно ли е да навия само тръба на пода и колко трябва да бъде като метраж?
4. Бихте ли ми предложили някаква програма за чертане на такъв тип схеми , за да е по-нагледен крайния резултат.
Благодаря предварително на всички за отделеното време!!!
Предстои ми изграждане на локално парно и поради липса на средства няма да бъде възложено на фирма. Самото изпълнение не ми е проблем (имам някакъв опит в тази насока) ,но относно проекта ще се надявам на помощ и съвети от Ваша страна.
Става въпрос за къща на два етажа. По-долу ще приложа снимки. Външна изолация с фибран , нова PVC дограма, от вътре гипс-картон без вата.
Може би е важно да се отбележи , че къщата се намира на около 1500 метра надморска височина в полите на Родопите.
Камината, с която мисля да реализирам парното е тази http://www.prity-bg.com/products/produc ... oductid=82
Примерни киловати на помещенията:
1 Етаж:
Хол 100м3 ~ 7,41kw
Спалня 31,2м3 ~ 2,34kw - радиатор 2,54kw
Баня 11,05 ~0,825kw
WC 5,74м3 ~ 0.43kw - радиатор 2,54kw
Антре 21,45м3 ~ 1,6kw - радиатор 1,8kw
2 Етаж:
Голяма Спалня 43,68 ~ 3,27kw - радиатор 3,27kw
Спалня 26м3 ~ 1,95kw - радиатор 2.18kw
Спалня 22,36м3 ~ 1,67kw - радиатор 1,8kw
Баня 15,02м3 ~ 1,12kw
Бойлер
Въпроси:
1. Добре ли са тези киловати за помещенията както и мощността на радиаторите за тях?
2. В хола, където ще е камината добре ли ще е да сложа конвектор за по-бързо стопляне или да добавя два радиатора (чух изказване , че този конвектор ще дръпне всичкото топло от водната ризата)?
3. В баните възможно ли е да навия само тръба на пода и колко трябва да бъде като метраж?
4. Бихте ли ми предложили някаква програма за чертане на такъв тип схеми , за да е по-нагледен крайния резултат.
Благодаря предварително на всички за отделеното време!!!
