Здравейте,
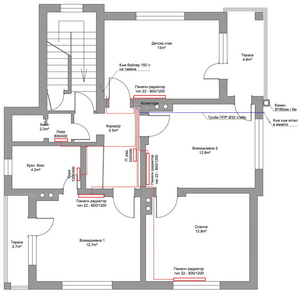
През предстоящото лято ще се заема да изграждам локално парно на втори етаж от двуетажна къща с котел на твърдо гориво в мазето. Засега етажа няма топлоизолация, но в близките една две години се предвиждам да се направи външна. Външните стени са 30см зидария плюс мазилка. Засега съм стигнал до следните изчисления и разпределение.
izch.jpg (50.85 KиБ) Видяна 9807 пъти
Радиаторите няма да са под прозорците за да си спестя доста къртене, единствено в спалнята ще е под прозореца, но там съм правил ремонт и заложих чакащи тръби.
Имам следните въпроси:
1. Котел - Според моите изчисления (незнам дали са верни) котела трябва да е максимум 18kW, предвиждам горивото да са дърва. Избрал съм котел Bisolid saver w 25 kW. Притеснява ме по-голямата мощност от необходимото, но това е най-малкия котел на дърва от бункерен тип. Очаквам коментари и предложения.
2. Тръби – От котела до колектора предвиждам стабилизирани ППР ф32, като трасето ще се 12м, като 4м ще е вертикален участък. Правилен ли ми е избора на тръби и най-вече диаметъра?
3. Разширителен съд – Системата ще затворена с 25л РС. Малък или голям ще се този РС?
4. Помпа – Каква помпа?
Благодаря предварително.
През предстоящото лято ще се заема да изграждам локално парно на втори етаж от двуетажна къща с котел на твърдо гориво в мазето. Засега етажа няма топлоизолация, но в близките една две години се предвиждам да се направи външна. Външните стени са 30см зидария плюс мазилка. Засега съм стигнал до следните изчисления и разпределение.
Прикачен файл:
izch.jpg (50.85 KиБ) Видяна 9807 пъти
Имам следните въпроси:
1. Котел - Според моите изчисления (незнам дали са верни) котела трябва да е максимум 18kW, предвиждам горивото да са дърва. Избрал съм котел Bisolid saver w 25 kW. Притеснява ме по-голямата мощност от необходимото, но това е най-малкия котел на дърва от бункерен тип. Очаквам коментари и предложения.
2. Тръби – От котела до колектора предвиждам стабилизирани ППР ф32, като трасето ще се 12м, като 4м ще е вертикален участък. Правилен ли ми е избора на тръби и най-вече диаметъра?
3. Разширителен съд – Системата ще затворена с 25л РС. Малък или голям ще се този РС?
4. Помпа – Каква помпа?
Благодаря предварително.
