няма смисъл да го изсмуквам да го обработвам и после пак да вкарвам същият въздух. през цялото време ще се изсмуква и нагнетява. това е идеята винаги въздуха да е пресен. конвенторите ще се грицата да обработвам самият въздух вътре. звучи малко налудничиво ама нали трябва да има и малко луди хора.
Всичко свързано с въздушния поток, който дишаме.
denuchi
- специалист
93 мнения в "вентилация в дома"
filmatoplo
- майстор
- Мнения: 17842
Питам щото някои вентилации ги пускат само да пречистят въздуха и ги спират в някои заведения и кухни .Но със сигурност отоплението на Метро и Била е като твоето . 
denuchi
- специалист
- Мнения: 646
в почти очвсички магазини от този род е такова. е с леки коркции на начина на работа. при мен е изцяло на външен въздух а в тези магазини външният въздух е само няколко процента. в КАРФУРА гр. Бургас са 8 бр. машини и за всяка външният въздух е 10-15 %. всичко останало е рецеркулация. един огромен конвектор.
filmatoplo
- майстор
- Мнения: 17842
Една такава климатична касета с 2 вентилатора ли се прави , с еднакви дебити ли са ВТУ .Лятото със или без охлаждане тоест може и без ,само вентилация .Мисля че намекна и за фреонова пита освен водна .Источника каква ТП ще е въздух-вода или .Какво ще бъде разпределението от касетата към стаите .
denuchi
- специалист
- Мнения: 646
разбира се че трябва да са два иначе се губи смисъла от цялата работа. вентилаторите са два еднакви по модел и тип. лятото ще има студена вода и ако е нужно трипътният вентил ще пропуска вода колкото му е нужно. а по въпроса за фреоновия топлообменник ще се захранва от един климати обикновен една 12. към всяка стая ще отива въздух колкото е нужно за 5 кратен обмен. ще се регулира от няколко клати, ръчни и с ел. задвижки
denuchi
- специалист
- Мнения: 646
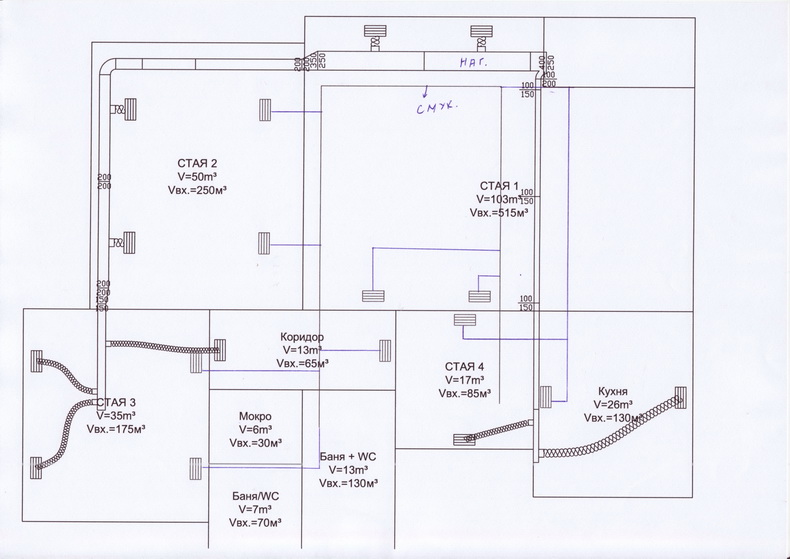
и с малко закъснение. няколко картинки. едната е блоковата схема и устройствата към рекуператора. а другата разположението на стаите и въздуховодите. начертан е само нагнетателният нагледно а смукателният е просто с една черта. когато реша какви ще бъдат решетките и дали ще свалям целият таван, ще се нарисува и смукателният с по голяма точност. както и местата на ПЖР и клапите за регулиране. Последно стана така.
Прикачен файл
shema_3.jpg (85.15 KиБ) Видяна 5271 пъти
Прикачен файл
blokova shema.jpg (71.83 KиБ) Видяна 7032 пъти
Прикачен файл
proekt.jpg (95.24 KиБ) Видяна 7032 пъти
Последна промяна от denuchi на нед апр 10, 2011 2:07 pm, променено общо 1 път.
denuchi
- специалист
- Мнения: 646
това от снимките е само като външен вид.като идея (начин) на работа. при мен е доста по голям и с други вентилатори. а ето и това което излезе от програмата за рекуператора. за отопление и охлаждане.
има някакъв коефицент за ефективност, нещо като КПД.
п.с. несъм го изчислявал аз.
има някакъв коефицент за ефективност, нещо като КПД.
п.с. несъм го изчислявал аз.
Прикачен файл
ohlajdane.jpg (74.87 KиБ) Видяна 6975 пъти
Прикачен файл
otoplenie.jpg (73.48 KиБ) Видяна 6975 пъти
Тема "вентилация в дома" | Включи се в дискусията:
Сподели форума:
Бъди информиран. Следвай "Направи сам" във Facebook:
Намери изпълнител и вдъхновения за дома. Следвай MaistorPlus във Facebook:
Имаш нужда от подходящ професионалист за дома?
- Преустройство, ремонт и реновиране
- ↳ Вашите ремонти
- ↳ Кухня
- ↳ Баня
- ↳ Дневна
- ↳ Спалня
- ↳ Детска
- ↳ Градина
- ↳ Коридор
- ↳ Тераса и балкон
- Направи сам
- ↳ Направи сам
- ↳ Ремонтирай сам
- ↳ Къде е по-евтино?
- ↳ Дърводелство
- ↳ Ел. инструменти
- ↳ Металообработване
- ↳ Конкурс "Направи сам 2012"
- Строителство
- ↳ Всичко за вилата
- ↳ Къщи
- ↳ Саниране
- ↳ Хидроизолация
- ↳ Пасивни и нискоенергийни сгради
- Сухо строителство
- ↳ Окачени тавани
- ↳ Преградни стени и предстенни обшивки
- ↳ Сухи и повдигнати подове
- ↳ Декоративни елементи - колони, трегери, сводове и др.
- ↳ Всичко за гипскартона и гипсфазера
- Въпроси и Отговори
- ↳ Полезни съвети
- ↳ Автомобили
- ↳ Партньори
- ↳ Боядисване и Декориране
- ↳ Вентилация, климатици и термопомпи
- ↳ Водоснабдяване и канализация.
- ↳ Всичко за ремонта
- ↳ Електротехника
- ↳ Отопление
- ↳ Газификация
- ↳ Електроника и Схеми
- ↳ Газобетон
- ↳ От всичко по малко
- ↳ Компютри и периферия
- ↳ Уеб дизайн, PHP, MySQL, JavaScript, HTML..
- ↳ Мобилни устройства, GSM-и
- ↳ Нека се запознаем
- ↳ Recycle Bin
- Статии
- ↳ Практични решения
- ↳ Качване на снимки
- ↳ Какви статии искате?
- ↳ Готварство, туршии и зимнина
- ↳ Отмора и шеги
- ↳ От нищо нещо
- ↳ Не е за вярване
- ↳ Литература
- ↳ Връзки към Интересни сайтове
- Магазин
- ↳ Препоръки и Мнения за он-лайн магазина
- ↳ Крадeни инструменти !!!